









Preview text:
BÀI TẬP VỀ NHÀ MÔN ỨNG DỤNG GIS VÀ VIỄN THÁM TRONG MÔI TRƯỜNG
Câu 1. Các đối tượng nào cần sử dụng GIS? Bạn hãy kể năm ứng dụng của GIS trong ngành môi trường.
Câu 2. Cho lớp Hãy biểu diễn lớp dữ liệu Raster sau đây: A A B B B B B B B A A B B B B B B B A A B B B B B B B A A A A A B B B A C C C C B B B A C C C C B B B B C C C C B B B B C C C C
a) Hãy biểu diễn lớp dữ liệu Raster trên theo phương pháp mã hóa cây tứ phân.
b) Hãy biểu diễn lớp dữ liệu Raster trên theo phương pháp mã hóa theo dòng.
c) Hãy biểu diễn lớp dữ liệu Raster trên theo phương pháp mã hóa theo dòng cải biên.
a) Biểu diễn lớp dữ liệu Raster theo phương pháp mã hóa cây tứ phân:
- Góc phần tư thứ 0: 000A, 001A, 002B, 003A, 010B, 011B, 012A, 013B, 02B, 030A, 031A, 032B, 033A
-Góc phần tư thứ 1: 10B, 11B, 120B, 121B, 122A, 123A, 130B, 131B, 132A, 133A
-Góc phần tư thứ 2: 20B, 210B, 211A, 212B, 213A, 22B, 23B
-Góc phần tư thứ 3: 30C, 31C, 32C, 33C
b) Biểu diễn lớp dữ liệu Raster theo phương pháp mã hóa theo dòng:
- Mã hóa theo dòng: 2A, 7B, 2A, 7B, 2A, 7B, 5A, 3B, 1A, 4C, 3B, 1A, 4C, 4B, 4C, 4B, 4C
c) Biểu diễn lớp dữ liệu Raster theo phương pháp mã hóa theo dòng cải biên:
- Mã hóa theo dòng cải biên: 2A, 11B, 2A, 3B, 2A, 4B, 5A, 6B, 1A, 8C, 1A, 7B, 8C, 4B
Câu 3. Lớp dữ liệu Raster thể hiện đặc điểm lớp phủ đất tại một khu vực có giá trị như sau: 1 1 1 2 2 2 2 2 1 1 1 2 2 2 2 2 1 1 5 5 5 5 2 2 1 1 5 5 5 5 2 2 1 1 5 5 5 5 4 4 1 1 3 3 4 4 4 4 3 3 3 3 4 4 4 4 3 3 3 3 4 4 4 4
Biết lớp dữ liệu Raster trên có độ phân giải không gian là 30 x 30 m và giá trị trong các ô lưới
của lớp dữ liệu Raster trên thể hiện thông tin về lớp phủ đất tại khu vực nghiên cứu (KVNC), cụ thể như sau: 1 - Nền xi măng. 2 - Nền đất. 3 - Nhà ở. 4 - Thực vật. 5 - Mặt nước. Hãy tính:
- Tổng diện tích toàn bộ KVNC.
- Tổng diện tích của nền xi măng và nhà ở tại KVNC.
- Diện tích mặt nước tại KVNC.
- Diện tích thảm thực vật tại KVNC.
Để tính các thông tin liên quan đến diện tích của lớp phủ đất tại Khu vực nghiên cứu (KVNC), ta
cần biết độ phân giải không gian của lớp dữ liệu Raster và giá trị tương ứng với mỗi ô lưới.
Trong trường hợp này, độ phân giải không gian là 30 x 30 m và giá trị trong các ô lưới được mô tả như sau: 1 - Nền xi măng 2 - Nền đất 3 - Nhà ở 4 - Thực vật 5 - Mặt nước
Diện tích ô lưới = 30 m x 30 m = 900 m2
Tổng diện tích KVNC = 15 x 900 m2 + 18 x 900 m2 + 8 x 900 m2 + 14 x 900 m2 + 8 x 900 m2
= 13,500 m2 + 16,200 m2 + 7,200 m2 + 12,600 m2 + 7,200 m2 = 56,700 m2
Tổng diện tích của nền xi măng và nhà ở tại KVNC = 15 x 900 m2 + 8 x 900 m2 = 13,500 m2 + 7,200 m2 = 20,700 m2
Diện tích mặt nước tại KVNC = 8 x 900 m2 = 7,200 m2
Diện tích thảm thực vật tại KVNC = 14 x 900 m2 = 12,600 m2
Câu 4. Một ảnh số dạng Raster có tất cả ba kênh ảnh, mỗi kênh ảnh có kích thước 5 x 5. Hãy
tách dữ liệu ảnh số trên thành ba kênh ảnh riêng biệt. 1 8 4 5 8 3 1 4 6 3 9 7 7 8 1 6 2 9 2 1 7 8 3 4 7 2 8 5 1 7 3 6 6 2 1 8 5 4 2 7 8 5 1 8 7 7 9 4 1 6 8 2 6 6 4 4 3 8 8 9 6 7 6 4 5 7 9 5 7 8 1 6 8 9 8
a) Biết ảnh số trên được lưu theo định dạng BIP.
b) Biết ảnh số trên được lưu theo định dạng BIL.
a) Định dạng BIP (Band Interleaved by Pixel) có nghĩa là các giá trị pixel của cùng vị trí trên các
kênh ảnh khác nhau được lưu trữ liên tiếp trong bộ nhớ. Trong trường hợp này, ảnh số có tất cả
ba kênh ảnh với kích thước 5 x 5. Để tách dữ liệu ảnh số thành ba kênh ảnh riêng biệt, ta sẽ lấy
lần lượt các giá trị pixel tại cùng vị trí trên các kênh ảnh và tạo thành một kênh ảnh riêng biệt. Kênh ảnh 1: 1 6 3 7 6 8 2 6 9 7 4 9 6 4 6 5 2 2 1 4 8 7 1 6 5 Kênh ảnh 2: 8 2 6 8 7 4 1 4 3 8 5 7 2 6 9 8 1 7 4 7 3 8 8 5 7 Kênh ảnh 3: 3 7 8 2 9 1 7 8 8 5 8 2 5 9 8 1 6 4 5 8 4 9 1 6 8
b) Định dạng BIL (Band Interleaved by Line) có nghĩa là các giá trị pixel của cùng vị trí trên các
kênh ảnh khác nhau được lưu trữ dọc theo từng dòng của ảnh. Trong trường hợp này, ảnh số có
tất cả ba kênh ảnh với kích thước 5 x 5. Để tách dữ liệu ảnh số thành ba kênh ảnh riêng biệt, ta sẽ
lấy lần lượt các giá trị pixel tại cùng vị trí trên các kênh ảnh và tạo thành một kênh ảnh riêng biệt. Kênh ảnh 1: 1 8 3 7 6 6 2 6 9 7 4 9 6 4 6 5 2 2 1 4 8 7 1 6 5 Kênh ảnh 2: 4 5 8 6 7 8 3 4 7 8 5 2 7 8 1 1 4 6 5 8 6 5 8 1 6 Kênh ảnh 3: 3 1 8 1 4 7 7 2 6 9 8 8 5 4 1 2 6 9 8 6 9 7 8 5 8
Câu 5. Cho bảng thuộc tính của một lớp dữ liệu đơn vị hành chính tỉnh có dạng như sau: Dien_Tic AQI_Inde Ten_DVHC Loai_DVHC h Dan_So x Cong_Nghiep Thành phố Hồ Chí Minh Thành phố 2095,6 7681700 250 TRUE Long An Tỉnh 4492,4 1458200 234 TRUE Đồng Tháp Tỉnh 3377,0 1676300 155 FALSE Tiền Giang Tỉnh 2508,3 1692500 210 TRUE Bến Tre Tỉnh 2357,7 1258500 160 FALSE Vĩnh Long Tỉnh 1504,9 1033600 138 TRUE Trà Vinh Tỉnh 2341,2 1015300 127 FALSE Cần Thơ Thành phố 1409,0 1214100 189 TRUE An Giang Tỉnh 3536,7 2153700 180 FALSE
1. Xác định kết quả của phép truy vấn sau:
NOT [Loai_DVHC] LIKE ‘Thành phố’
2. Xác định kết quả của phép truy vấn sau:
[Dan_So] > 1500000 AND [Dien_Tich] > 2500
3. Xác định kết quả của phép truy vấn sau:
[Cong_Nghiep] = ‘TRUE’ AND [AQI_Index] < 200
4. Xác định kết quả của phép truy vấn sau:
[Ten_DVHC] LIKE ‘*nh*’ AND [Cong_Nghiep] = ‘TRUE’
(Sinh viên chỉ cần nêu tên các tỉnh thỏa mãn điều kiện truy vấn) 1. - Long An - Đồng Tháp - Tiền Giang - Bến Tre - Vĩnh Long - Trà Vinh - An Giang 2. - Thành phố Hồ Chí Minh - Long An - Đồng Tháp - Tiền Giang - Bến Tre - An Giang 3. - Thành phố Hồ Chí Minh - Long An - Tiền Giang - Cần Thơ 4. - Thành phố Hồ Chí Minh - Bến Tre
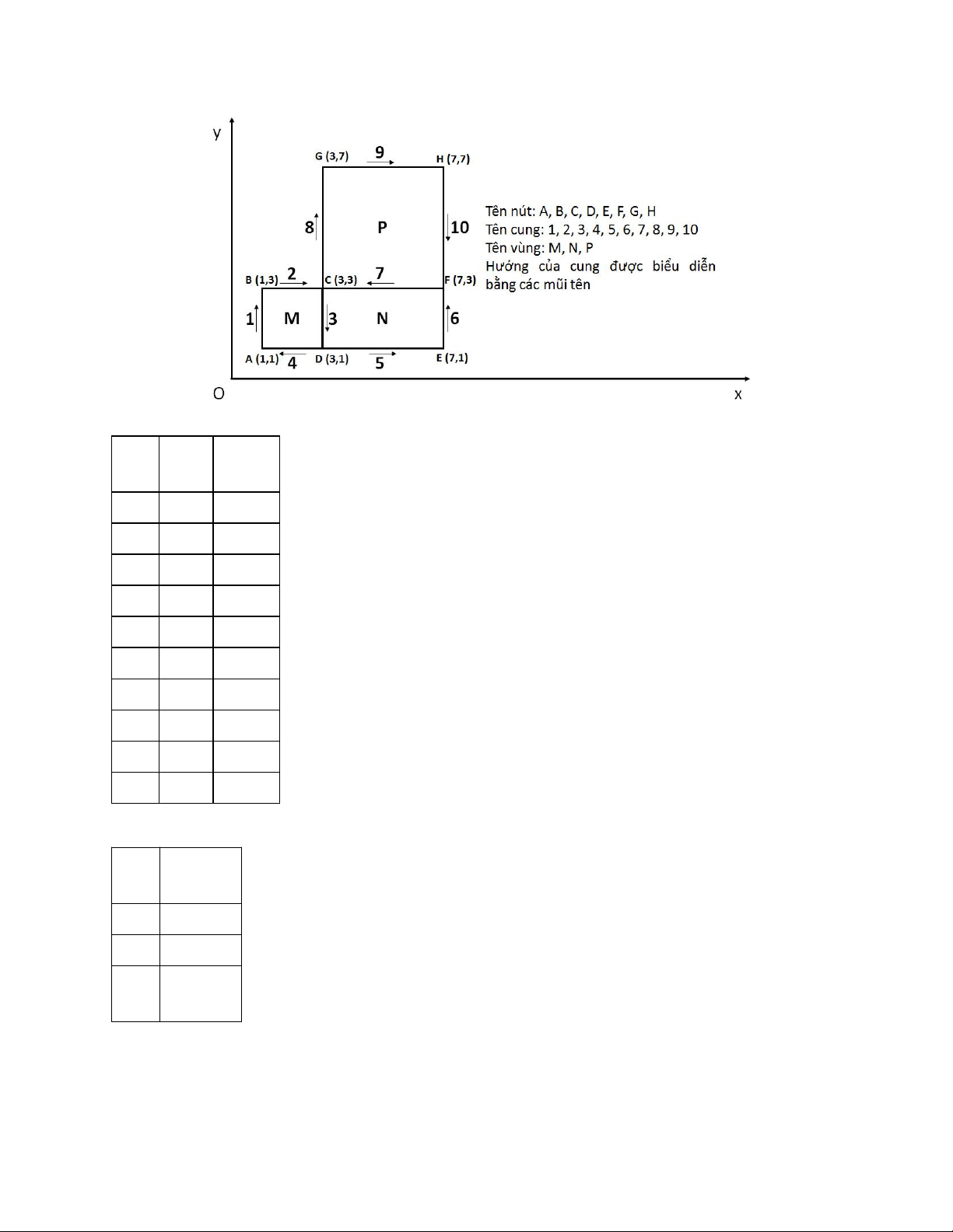
Câu 6. Hãy biểu diễn mối quan hệ Cung - Nút, Vùng - Cung và Trái - Phải của lớp dữ liệu
Vector có cấu trúc Topology sau đây:
- Mối quan hệ topology cung - nút: Cung Nút đi Nút đến 1 A B 2 B C 3 C D 4 D A 5 D E 6 E F 7 F C 8 C G 9 G H 10 H F
- Mối quan hệ topology vùng - cung: Vùng Cung M 1, 2, 3, 4 N 3, 5, 6, 7 P 7, 8, 9, 10
- Mối quan hệ topology trái - phải: Cung Vùng trái Vùng phải 1 Không gian M 2 Không gian M 3 N M 4 Không gian M 5 N Không gian 6 N Không gian 7 N P 8 Không gian P 9 Không gian P 10 Không gian P
Câu 7. Thực hiện quét (scan) một bản đồ kích thước 100 x 100 cm với độ phân giải 300 DPI
(Dots Per Inch) với hai chế độ trắng đen và màu. Hãy tính:
a) Kích thước tập tin số tạo thành (Megabyte - MB) khi quét với chế độ trắng đen.
b) Kích thước tập tin số tạo thành (Megabyte - MB) khi quét với chế độ màu.
Biết 1 in = 2,54 cm và 1 MB = 1.0242 Byte = 1.048.576 Byte.
Để tính kích thước tập tin số tạo thành khi quét bản đồ, chúng ta cần biết kích thước của bản đồ
và độ phân giải của quét.
a) Kích thước tập tin số khi quét với chế độ trắng đen:
Kích thước theo chiều rộng: 100 cm x 300 DPI / 2.54 cm/inch = 11811 pixel
Kích thước theo chiều cao: 100 cm x 300 DPI / 2.54 cm/inch = 11811 pixel
Kích thước tập tin = 11811 x 11811 x 8 bit = 1,398,458,088 bit
Kích thước tập tin (MB) = 1,398,458,088 bit / 1,048,576 = 1.334 MB
b) Kích thước tập tin số khi quét với chế độ màu:
Kích thước tập tin (MB) = 3 x 1.334 MB = 4.002 MB
Câu 8. Thực hiện quét chế độ trắng đen một bản đồ kích thước 100 x 100 cm thu được một tập
tin số có kích thước 300 MB. Hãy xác định độ phân giải ảnh được chọn khi tiến hành quét. 1 MB = 1,048,576 byte
300 MB = 300 x 1,048,576 byte = 314,572,800 byte
Kích thước tập tin số = (Kích thước theo chiều rộng) x (Kích thước theo chiều cao) x (Độ sâu màu)
Kích thước theo chiều rộng = (100 cm) x (300 DPI) / (2.54 cm/inch) = 11811 pixel
Kích thước theo chiều cao = (100 cm) x (300 DPI) / (2.54 cm/inch) = 11811 pixel
314,572,800 byte = (11811 pixel) x (11811 pixel) x (1 bit)
Độ phân giải = 314,572,800 / (11811 x 11811) = 224 DPI
Câu 9. Cho ba lớp dữ liệu Raster A, B, C sau đây: 69 91 76 78 53 80 64 57 79 90 82 78 71 65 96 80 64 68 83 50 82 88 70 72 61 64 79 100 90 68 74 72 80 90 70 90 88 60 77 89 78 82 54 64 88 72 74 78 A B C
1. Tính kết quả của phép chồng lớp Raster sau: D1 = (A + 5)/C
2. Tính kết quả của phép chồng lớp Raster sau: D2 = ((C - A)/B)*10
3. Tính kết quả của phép chồng lớp Raster sau: D3 = A > 70 AND C < 90
4. Tính kết quả của phép chồng lớp Raster sau: D4 = Max (A, B, C)
Để tính kết quả của các phép chồng lớp Raster, chúng ta sẽ thực hiện các phép toán tương ứng
với từng phép chồng lớp. Dưới đây là kết quả của từng phép chồng lớp:
1. Phép chồng lớp D1 = (A + 5)/C:
D1 = [74, 96, 81, 83, 76, 70, 101, 85, 66, 69, 84, 105, 93, 65, 82, 94]
2. Phép chồng lớp D2 = ((C - A)/B)x10:
D2 = [38, 10, 27, 35, 24, 21, 19, 44, 2, 24, 14, 18, 10, 24, 18, 24]
3. Phép chồng lớp D3 = A > 70 AND C < 90:
D3 = [False, True, True, True, True, False, True, True, False, False, True, False, False, False, True, True]
4. Phép chồng lớp D4 = Max(A, B, C):
D4 = [79, 91, 82, 78, 82, 88, 96, 80, 90, 90, 79, 100, 88, 72, 77, 89]
Lưu ý: Kết quả của lớp D1 và D2 là dạng số thập phân, được làm tròn đến đơn vị đơn giản nhất.
Kết quả của lớp D3 là dạng Boolean (True/False). Kết quả của lớp D4 là giá trị lớn nhất trong
từng điểm ảnh của A, B, và C.
Câu 10. Trên một bản đồ, hai địa điểm A và B cách nhau một khoảng cách là 10 cm. Khoảng
cách của hai địa điểm này trên thực địa là 50 km.
a) Tính tỉ lệ của bản đồ trên.
b) Tính độ chính xác, xác định vị trí điểm của bản đồ trên.
c) Một khu đất hình thang có các kích thước đo trên bản đồ như sau: đáy lớn 10 cm, đáy bé 6 cm,
chiều cao 5 cm. Tính diện tích khu đất trên thực địa.
a. Khoảng cách trên bản đồ là 10 cm và khoảng cách trên thực địa là 50 km (50,000 m).
Tỉ lệ = 10 cm / 50,000 m = 1/5000
b. Sai số tương đối = Tỉ lệ x Khoảng cách trên thực địa = (1/5000) x 50,000 m = 10 m
c. Tỉ lệ diện tích = (Tỉ lệ)2 = (1/5000)2 = 1/25,000,000
Diện tích khu đất trên thực địa = Diện tích trên bản đồ x Tỉ lệ diện tích
Diện tích trên bản đồ = (Đáy lớn + Đáy bé) x Chiều cao / 2 = (10 cm + 6 cm) x 5 cm / 2 = 80 cm2
Diện tích khu đất trên thực địa = 80 cm2 x 1/25,000,000 = 0.0000032 km2