



Preview text:
ĐỀ 1 Câu 1 (3,0đ):
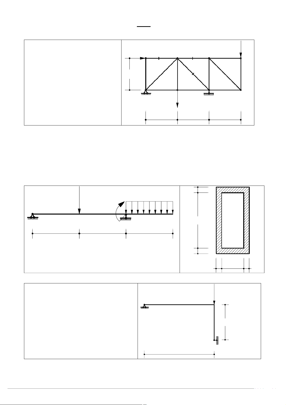
Cho dàn chịu lực như hình vẽ, các thanh có P
cùng diện tích A. Yêu cầu:
1. Xác định lực dọc & ứng suất trong các thanh đánh dấu (theo P). 2m N3
2. Kiểm tra bền với các thanh N1 đánh dấu. N22P
Biết: []=18kN/cm2; P=30kN, a=2m, A=4cm2. aa a
Câu 2 (4,5đ):
Cho dầm chịu lực, có mặt cắt ngang như hình vẽ dưới đây, biết: M=3qa2; P=2qa; [ ]=16kN/cm2;
a=2m; q=0,18kN/cm. Yêu cầu:
1. Xác định các phản lực tại gối tựa.
2. Vẽ biểu đồ mômen (Mx) và lực cắt (Qy) cho hệ theo q, a.
3. Hãy xác định kích thước mặt cắt ngang [b] theo điều kiện bền của phân tố ở trạng thái ứng suất
đơn và trượt thuần túy. qM P 2b 8b aaa 2b 2b 2b 2b
Câu 3 (2,5đ):
Cho hệ chịu tải như hình vẽ: Biết EI = const. P Yêu cầu:
1. Vẽ biểu đồ mô men (Mx).
2. Xác định chuyển vị đứng tại C. 3 m C 3 m ĐỀ 2 Câu 1 (3,0đ):
Cho kết cấu chịu lực như hình vẽ. BC, DK là
dầm cứng, các thanh 1, 2, 3 được làm từ một
loại vật liệu. Yêu cầu 1A2A : a q M
1. Xác định lực dọc và ứng suất trong các thanh (theo q,a, A). AB
2. Xác định diện tích mặt cắt ngang 3A a
thanh: 1,2,3 theo điều kiện bền. Pq
Biết: []=16kN/cm2; q=10kN/m; a=2m; P=3qa; M=4qa2. Ca D aa
Câu 2 (4,5đ):
Cho dầm chịu lực, có mặt cắt ngang như hình vẽ dưới đây, biết: M=3qa2; P=2qa; [ ]=16kN/cm2;
a=2m; q=0,18kN/cm. Yêu cầu:
1. Xác định các phản lực tại gối tựa.
2. Vẽ biểu đồ mômen (Mx) và lực cắt (Qy) cho hệ theo q, a.
3. Hãy xác định kích thước mặt cắt ngang [b] theo điều kiện bền của phân tố ở trạng thái ứng suất
đơn và trượt thuần túy. q 2b MP 4b 4b aa a 4b 2b 2b 6b 2b
Câu 3 (2,5đ):
Cho hệ chịu tải như hình vẽ: Biết EI = const. P Yêu cầu:
3. Vẽ biểu đồ mô men (Mx).
4. Xác định chuyển vị đứng tại C. 3 m C 3 m ĐỀ 3 Câu 1 (3,0đ):
Cho dàn chịu lực như hình vẽ, các
thanh có cùng diện tích A. Yêu cầu: 2P P N1 N2
1. Xác định lực dọc & ứng suất trong
các thanh đánh dấu (theo P). 2m
2. Xác định diện tích mặt cắt ngang của N3
các thanh dàn theo điều kiện bền của các thanh đánh dấu.
Biết: []=20kN/cm2; P=30kN, a=2m. 2P a a a
Câu 2 (4,5đ):
Cho dầm chịu lực, có mặt cắt ngang như hình vẽ dưới đây, biết: M=3qa2; P=2qa; [ ]=16kN/cm 2;
a=2m; q=0,18kN/cm. Yêu cầu:
1. Xác định các phản lực tại gối tựa.
2. Vẽ biểu đồ mômen (Mx) và lực cắt (Qy) cho hệ theo q, a.
3. Hãy xác định kích thước mặt cắt ngang [b] theo điều kiện bền của phân tố ở trạng thái ứng suất
đơn và trượt thuần túy. q P b M 10b aaa b b 4b b
Câu 3 (2,5đ):
Cho hệ chịu tải như hình vẽ: Biết EI = const. P Yêu cầu:
5. Vẽ biểu đồ mô men (Mx).
6. Xác định chuyển vị đứng tại C. 3 m C 3 m