








Preview text:
NHỮNG TIÊU CHUẨN CƠ BẢN ĐỂ THÀNH LẬP BẢN VẼ KỸ THUẬT 1. Khổ giấy •
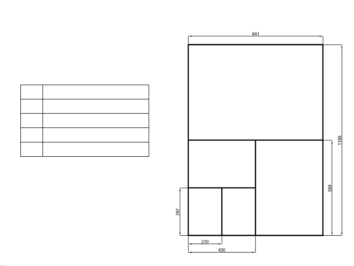
Có 5 khổ giấy chính, từ A0 ~ A4. •
Kích thước khổ giấy theo tiêu chuẩn: (đơn vị: mm) A4 210 x 297 A1 A3 297 x 420 A2 420 x 594 A1 594 x 841 A0 841 x 1189 A3 A2 A4 Khung bản vẽ c Khổ giấy c (mm) d (mm) A4 5 25 A3 5 25 d Tờ giấy vẽ c A2 5 25 Khung bản vẽ A1 10 30 ( Nét liền đậm) A0 10 30
Khung tên ( Nét liền đậm)
4. Người kiểm tra ký tên c 1. Ghi tên bản vẽ
2. Ghi trị số tỷ lệ của bản vẽ
5. Ghi tên người vẽ, trường lớp
3. Ghi ngày hoàn thành bản vẽ
6. Ghi số thứ tự của bản vẽ TỶ LÊ. (1) (2) NGÀY VẼ (3) BÀI SỐ (5) KIỂM TRA (4) (6) 2. Tỷ lệ •
Tỷ lệ bản vẽ là tỷ số giữa kích thước đo trên bản vẽ và kích thước thật của vật thể. Tỷ lệ thu nhỏ (1:X)
1:2 ; 1:2,5 ; 1:5 ; 1:10 ; 1:20 ; 1:25 ; 1:50 ; 1:100 ; 1:200 ;
1:400 ; 1:500 ; 1:1000 ; 1:2000 ; 1:5000 ; 1:10n Tỷ lệ nguyên hình 1:1 Tỷ lệ phóng to (X:1)
2:1 ; 2,5:1; 4:1 ; 5:1 ; 10:1 ; 20:1 ; 40:1 ; 50:1 ; 100:1 •
Kích thước được ghi trong bản vẽ là kích thước thật của vật thể và không phụ
thuộc vào tỷ lệ của bản vẽ. : a a
Kích thước vẽ (trên giấy)
Kích thước thật (ngoài thực tế) 3. Các nét vẽ Chiều Tên nét vẽ Cách vẽ Ứng dụng rộng nét Đường bao thấy Nét liền đậm b
Đường bao mặt cắt rời Khung bản vẽ, khung tên Đường dóng Nét liền mảnh b/3 Đường kích thước
Nét kí hiệu trên mặt cắt Nét đứt b/2
Đường bao khuất, cạnh khuất Nét chấm Đường trục đối xứng b/3 gạch mảnh Đường tâm đường tròn Nét cắt
1,5b ÷ 2b Đánh dấu vị trí mặt phẳng cắt
Đường cắt lìa vật thể có bề mặt cong Nét lượn sóng b/3
Đường phân cách giữa hình cắt và hình chiếu Nét dích dắc b/3
Đường cắt lìa hình biểu diễn Nét hai chấm
Đường bao phần lân cận, vị trí giới b/3 gạch mảnh hạn
b = 0,25 ; 0,35 ; 0,5 ; 0,7 ; 1 ; 1,4 ; 2 mm (lựa chọn phù hợp với kích thước, loại bản vẽ)
Thứ tự ưu tiên nét vẽ (khi có 2 hay nhiều nét khác loại trùng nhau)
- Đường bao thấy (nét liền đậm).
- Đường bao khuất (nét đứt).
- Mặt phẳng cắt (nét cắt).
- Trục đối xứng, đường tâm đường tròn (nét chấm gạch mảnh).
- Đường dóng (nét liền mảnh). Chú ý
- Chiều rộng của cùng 1 loại nét vẽ không được thay đổi trên cùng 1 bản vẽ
- Nét chấm gạch mảnh được bắt đầu và kết thúc bằng nét gạch
- Nét đứt phải vẽ chạm vào đường bao của hình biểu diễn
- Chỗ gặp nhau của 2 nét đứt phải vẽ các nét gạch cắt nhau
- Tâm của vòng tròn, cung tròn xác định bằng giao điểm của 2 gạch
trong nét chấm gạch mảnh 4. Chữ và số •
Khổ chữ: là chiều cao của chữ (ký hiệu: h)
Khổ chữ thông dụng: h = 2,5; 3,5; 5; 7; 10; 14; 20; 28; 40 (mm) • Kiểu chữ -
Chữ khổ đứng: b = 3/10h (b: chiều rộng chữ)
Chỉ dùng để ghi tên bản vẽ, các đề mục lớn. -
Chữ khổ vuông: b = 6/10h (chữ in hoa) b = h (chữ in thường)
Dùng ghi tên bản vẽ, đề mục lớn, con số kích thước, thuyết minh kỹ thuật.
Kiểu chữ in hoa, khổ vuông, nét đều
Kiểu chữ in thường, khổ vuông, nét đều
Kiểu chữ in hoa, khổ đứng, nét đều 5. Ghi kích thước •
Các thành phần của kích thước: -
Đường dóng: giới hạn phần của vật thể cần ghi kích thước. -
Đường kích thước: biểu thị đoạn (góc) cần ghi kích thước. -
Con số kích thước: biểu thị giá trị thực của kích thước cần ghi. -
Đường dẫn: biểu thị những chi tiết cần ghi chú. 10 27 D10x2 lỗ R16 13 43 • Quy ước chung: -
Đường kích thước không nên đặt quá gần nhau hoặc quá gần hình biểu diễn. -
Nếu có nhiều đường kích thước song song nhau thì kích thước ngắn để trong,
kích thước dài để ngoài. -
Các kích thước dùng đơn vị là mm, nhưng không ghi đơn vị sau con số kích thước. -
Con số kích thước luôn ghi phía trên, vào khoảng giữa và cách đường kích thước 1 ÷ 1,5 mm. -
Con số được đặt sao cho chúng có thể được đọc từ dưới lên và từ bên phải của bản vẽ. 30
Khoảng cách bằng ít nhất
2 lần chiều cao chữ 30 30 16 35 11 34 30
Khoảng cách bằng ít nhất 1 lần chiều cao chữ.