



















Preview text:
lOMoAR cPSD| 59256994
TRƯ Ờ NG Đ Ạ I H Ọ C KI Ế N TRÚC TP.HCM KHOA XÂY D Ự NG Đ ÁN Ồ MÔN H ỌC: T C U THÉP 2 K Ế Ấ
GVHD: T h.S Tr ầ n Qu ố c Hùng
SVTH : Nguy ễ n Tư ờ ng V y MSSV : 18520 100440 L ớ p : XD18/A5
Tp. H ồ Chí Minh, tháng 8 năm 202 1 lOMoAR cPSD| 59256994
TRƯỜNG ĐẠI HỌC KIẾN TRÚC TP.HCM
GVHD: Th.S TRẦN QUỐC HÙNG PHỤ LỤC
CHƯƠNG 1: SỐ LIỆU THIẾT KẾ VÀ LỰA CHỌN VẬT LIỆU ..... ..... .. ....... ..... ..... ...... ...... ...... ...... ..... 1
1.1. SỐ LIỆU THIẾT KẾ: ..... .... ...... ........ ...... ...... ...... ...... ......... ..... ...... ...... ...... ...... ......... ..... ...... ...... 1
1.2. CÁC THÔNG SỐ VÀ LỰA CHỌN VẬT LIỆU . ... .. ...... ...... ..... .. ... ...... ..... .. ...... ..... .. ...... ...... .... 1
CHƯƠNG 2: XÁC ĐỊNH KÍCH THƯỚC KHUNG NGANG ..... .... .... ...... ....... .. ...... ...... ..... .. ...... ..... ... . 2
2.1. KÍCH THƯỚC CẦU TRỤC PHÙ HỢP ..... .... ...... .... .. ......... ..... ...... ...... ...... ...... ........ ...... ...... ...... 2
2.2. KÍCH THƯỚC CỦA PHƯƠNG NGANG ..... .... .... ...... ...... ...... ...... ..... .. ... .... ...... ...... ...... ..... ...... 4
2.2.1. Xác định kích thước cột ..... .... ...... ...... ..... .. ...... ........ ...... ...... ...... ...... ...... ........ ...... ...... ...... .... 4
2.2.2. Xác định kích thước theo phương ngang ..... .... .... ...... ...... ...... ...... ..... ... .. ........ ...... ...... ...... .... 5
2.2.3. Kích thước dàn vì kèo và cửa mái ..... .... .... ........ .... ... ...... ...... ..... .. ...... ..... .. ...... ..... ...... ...... ... 7
2.3. BỐ TRÍ HỆ GIẰNG . ... .. ...... ...... ..... .. ... ...... ..... .. ...... ..... .. ...... ...... ..... ... .. ........ ...... ...... ...... ...... 8
2.3.1. Hệ giằng mái ..... ........ .. ...... ..... .. ... ...... ..... .. ... .... ...... ...... ...... ..... ...... ...... ...... ...... ......... ..... ... 9
2.3.2. Hệ giằng cột ..... .... .... .... ... .. ...... ..... ...... ...... ...... ...... ...... ........ ...... ...... ...... ...... ......... ..... ...... . 10
CHƯƠNG 3. TẢI TRỌNG TÁC DỤNG LÊN KHUNG NGANG ..... .... ...... ...... .... ...... ...... ..... ...... ...... ... 11
3.1. TĨNH TẢI ..... .... .... ...... .. ...... ..... .. ... ...... ..... .. ... .... ...... ...... ...... ..... ...... ...... ...... ...... ......... ..... ..... 11 SVTH: NGUYỄN TƯỜNG VY lOMoAR cPSD| 59256994
TRƯỜNG ĐẠI HỌC KIẾN TRÚC TP.HCM
GVHD: Th.S TRẦN QUỐC HÙNG
3.1.1. Tải trọng lớp hoàn thiện mái, tải trọng bản thân tấm tole, xà gồ và giằng ..... .... ...... ...... ..... .. . 11
3.1.2. Tải trọng lớp hoàn thiện biên tường ..... .... .... .. .... ...... ...... ...... ...... ..... ...... ......... ...... ...... ...... . 12
3.1.3. Tải trọng bản thân dầm cầu trục ..... .... .... .. ...... ......... ..... ...... ...... ...... ...... ........ ...... ...... ...... .. 13
3.1.4. Tải trọng cửa mái ... . .. ......... ..... ...... ...... ...... ...... ......... ..... ...... ...... ...... ...... ........ ...... ...... ...... 13
3.2. HOẠT TẢI ..... .... .... .. .... ...... ...... ...... ...... ..... ...... ......... ...... ...... ...... ..... ...... .... .. ...... ...... ...... ....... 13
3.2.1. Hoạt tải mái ..... .... .... .... ... .. ...... ..... ...... ...... ...... ...... ...... ........ ...... ...... ...... ...... ......... ..... ...... . 13
3.2.2. Hoạt tải cầu trục ..... .... ...... ...... ..... .. ...... ...... ..... .. ...... ..... ...... ...... ...... ...... ......... ..... ...... ...... . 14
3.3. TẢI TRỌNG GIÓ ..... .... ...... ........ ...... ...... ...... ...... ......... ..... ...... ...... ...... ...... ......... ..... ...... ...... .... 17
CHƯƠNG 4: MÔ HÌNH VÀ TÍNH TOÁN NỘI LỰC BẰNG PHẦN MỀM SAP2000 ..... .... ...... ........ .. ... 22
4.1. KHAI BÁO TIẾT DIỆN ..... ........ ...... ...... ...... ...... ........ ...... ...... ...... ...... ...... ........ ...... ...... ...... ...... 22
4.2. KHAI BÁO TẢI TRỌNG ..... .... .... ...... ...... ...... .... ...... ...... ...... ..... .. ... ...... .... ... ...... ..... .. ...... ...... 22
4.2.1. Tĩnh tải ..... .... .... ...... .... ... ...... ...... ...... ......... ..... .. ...... ..... ...... ...... ...... ...... ......... ..... ...... ...... . 22
4.2.2. Hoạt tải sửa chữa mái ..... .... .... ...... ...... ...... ....... .... .. ...... ...... ......... ..... ... .. ........ ...... ...... ...... 24
4.2.3. Hoạt tải cầu trục ..... .... ...... ...... ..... .. ...... ...... ..... .. ...... ..... ...... ...... ...... ...... ......... ..... ...... ...... . 26
4.2.4. Hoạt tải gió ..... .... ...... .... .. ......... ..... ...... ...... ...... ...... ........ ...... ...... ...... ...... ......... ..... ...... ...... . 30
4.3. KẾT QUẢ NỘI LỰC ... .... ...... ...... ...... ..... ...... ... ..... ..... ...... ...... ...... ...... ...... ........ ...... ...... ...... .... 32 SVTH: NGUYỄN TƯỜNG VY lOMoAR cPSD| 59256994
TRƯỜNG ĐẠI HỌC KIẾN TRÚC TP.HCM
GVHD: Th.S TRẦN QUỐC HÙNG
4.2.1. Tĩnh tải ..... .... .... ...... .... ... ...... ...... ...... ......... ..... .. ...... ..... ...... ...... ...... ...... ......... ..... ...... ...... . 32
4.2.2. Hoạt tải 1 (HT1) ..... .... ...... ........ ...... ...... ...... ...... ......... ..... ...... ...... ...... ...... ......... ..... ...... ...... . 34
4.2.3. Hoạt tải 2 (HT2) ..... .... ...... ........ ...... ...... ...... ...... ......... ..... ...... ...... ...... ...... ......... ..... ...... ...... . 36
4.2.4. Hoạt tải cả mái (HT CA MAI) ..... .... .... ...... ....... .. ...... ...... ..... .. ...... ..... .. .... ...... ...... ...... ...... . 38
4.2.5. Gió trái (GIOT) ..... .... .... .. ...... ......... ..... ...... ...... ...... ...... ........ ...... ...... ...... ...... ......... ..... ...... 40
4.2.6. Gió phải (GIOP) ..... .... ...... ........ ...... ...... ...... ...... ......... ..... ...... ...... ...... ...... ......... ..... ...... ...... 42
4.2.7. Áp lực đứng cầu trục (Dmax_T) ..... .... ...... ...... ..... .. ...... ...... ..... ...... ...... ...... ...... ........ ...... ...... . 44
4.2.8. Áp lực đứng cầu trục (Dmax_P) ..... .... ...... .......... .... ...... ...... ...... ...... ...... ..... .. ...... ..... .. ... ...... . 46
4.2.9. Lực hãm ngang của cầu trục (T_Tr) ..... .... .... .. .... ...... ...... ...... ...... ..... ...... ......... ...... ...... ...... 48
4.2.10. Lực hãm ngang của cầu trục (T_Ph) ..... .... ...... .... .. ......... ..... ...... ...... ...... ...... ........ ...... ...... . 50
4.2.11. Sơ đồ khớp ..... .... ...... ........ ...... ...... ...... ...... ...... ........ ...... ...... ...... ...... ...... ........ ...... ...... ...... 52
CHƯƠNG 5: TỔ HỢP NỘI LỰC THIẾT KẾ ..... .... .... ...... ...... ...... ...... ..... ...... ......... ...... ...... ..... .. ... .... 52
5.1. ĐỊNH NGHĨA CÁC LOẠI TẢI TRỌNG ..... .... .... ...... ...... ...... ...... ..... .. ... .... ...... ...... ...... ..... ...... 52
5.2. ĐỊNH NGHĨA CÁC LOẠI TỔ HỢP ..... .... ....... .. ........ ...... ...... ...... ...... ...... ........ ...... ...... ...... ...... 53
5.3. BẢNG TỔ HỢP NỘI LỰC ..... ........ ...... ...... ....... .. ......... ..... ...... ...... ...... ...... ......... ..... ...... ...... ..... 53 SVTH: NGUYỄN TƯỜNG VY lOMoAR cPSD| 59256994
TRƯỜNG ĐẠI HỌC KIẾN TRÚC TP.HCM
GVHD: Th.S TRẦN QUỐC HÙNG
5.4. KIỂM TRA CHUYỂN VỊ CỦA KHUNG ..... .... .... ...... ...... ...... ...... ..... .. ... .... ...... ...... ...... ..... ...... 54
CHƯƠNG 6: THIẾT KẾ TOLE LỢP MÁI VÀ XÀ GỒ ..... .... ...... ........ ...... ........ ........ ...... ...... ...... ...... .. 55
6.1. THIẾT KẾ TOLE ..... .... ...... ........ ...... ...... ...... ...... ......... ..... ...... ...... ...... ...... ......... ..... ...... ...... .... 55
6.1.1. Trọng lượng bản thân tole ..... .... .... ...... ...... ...... ........ ...... ...... ...... ...... ...... ........ ...... ...... ...... .. 56
6.1.2. Tải trọng gió: ..... ........ .. ...... ..... .. ... ...... ..... .. ... .... ...... ...... ...... ..... ...... ...... ...... ...... ......... ..... 57
6.1.3. Hoạt tải sửa chữa mái ..... .... .... ...... ...... ...... ....... .... .. ...... ...... ......... ..... ... .. ........ ...... ...... ...... 57
6.1.4. Thiết kế tiết diện tole ..... .... ...... ...... ..... .. ...... ...... ..... .. ...... ..... ...... ...... ...... ...... ......... ..... ...... . 58
6.2. THIẾT KẾ XÀ GỒ.... .... ........ ...... ...... ...... ...... ...... ........ ...... ...... ...... ...... ...... ........ ...... ...... ...... .... 61
6.2.1. Trọng lượng bản thân xà gồ ..... .... .... ...... .......... .. ...... ..... .. ... ...... ..... .. ... .... ...... ...... ...... ..... . 62
6.2.2. Tải trọng bản thân tole truyền vào: ..... .... ...... ... .... ...... ...... ...... ..... ...... ...... ...... ...... ........ ...... 63
6.2.3. Tải trọng gió: ..... ........ .. ...... ..... .. ... ...... ..... .. ... .... ...... ...... ...... ..... ...... ...... ...... ...... ......... ..... 63
6.2.4. Hoạt tải ..... .... .... .. .. .... ...... ...... ...... ..... .. .......... .... .. ...... ...... ........ ...... ... ..... ..... ...... ...... ...... . 63
6.2.5. Thiết kế xà gồ ..... .... .... ...... ...... ...... ...... ..... .. ... .... ...... ...... ...... ..... ...... ...... ...... ...... ........ ...... . 64
CHƯƠNG 7: THIẾT KẾ CỘT ..... .... ...... ...... ..... .. ... .... ...... ...... ...... ..... ...... ...... ...... ...... ......... ..... ...... .. 68
7.1. XÁC ĐỊNH CHIỀU DÀI TÍNH TOÁN CỦA CỘT ..... .... .... .. ...... ......... ..... .. ...... ..... .. ... ...... ..... . 68
7.1.1. Chiều dài tính toán trong mặt phẳng khung ... . .. ......... ..... ...... ...... ...... ...... ......... ..... ...... ...... . 68 SVTH: NGUYỄN TƯỜNG VY lOMoAR cPSD| 59256994
TRƯỜNG ĐẠI HỌC KIẾN TRÚC TP.HCM
GVHD: Th.S TRẦN QUỐC HÙNG
7.1.2. Chiều dài tính toán ngoài mặt phẳng khung ... . .. ......... ..... ...... ...... ...... ...... ......... ..... ...... ...... . 69
7.2. THIẾT KẾ TIẾT DIỆN CỘT TRÊN ..... ........ ... .. ........ ...... ...... ...... ...... ...... ........ ...... ...... ...... ...... 70
7.2.1. Nội lực thiết kế ..... .... .... ...... ...... ...... ...... ..... ... .. ........ ...... ...... ...... ...... ...... ........ ...... ...... ...... . 70
7.2.2. Thiết kế tiết diện .... ..... ..... .. ...... ..... ...... ...... ...... ...... ......... ..... ...... ...... ...... ...... ........ ...... ...... . 70
7.2.3 Đặc trưng hình học ..... .... ... ...... ...... ..... .. ...... ..... .. ...... ...... ..... ...... ...... ...... ...... ........ ...... ...... . 72
7.2.4. Kiểm tra bằng cặp nội lực thiết kế ..... .... .... ...... .... .. ...... ...... ........ ...... ... ..... ..... ...... ...... ...... .. 73
7.2.5. Kiểm tra bằng cặp nội lực (2) Nmax, Mtu ..... ..... .. ...... ........ ...... ...... ...... ...... ......... ..... ...... ...... .. 77
7.3. THIẾT KẾ TIẾT DIỆN CỘT DƯỚI (RỖNG) . ... .. ...... ...... ..... .. ... ...... ..... .. ...... ..... .. ...... ...... ..... 84
7.3.1. Nội lực thiết kế ..... .... .... ...... ...... ...... ...... ..... ... .. ........ ...... ...... ...... ...... ...... ........ ...... ...... ...... . 84
7.3.2. Chọn tiết diện nhánh ..... .... ...... ...... ..... ...... ........ ........ ...... ...... ...... ...... ...... ........ ...... ...... ...... . 84
7.3.3. Xác định hệ thanh bụng ..... .... ...... ...... ..... .. ... .... ...... ...... ...... ..... ...... ...... ...... ...... ......... ..... ... 91
7.3.4. Kiểm tra ổn định tổng thể toàn cột theo trục ảo x-x ..... .... .... ...... ...... ...... .... ...... ...... ...... ..... .. 94
7.3.5. Tính liên kết thanh giằng vào nhánh cột ..... .... .... ...... ...... ...... ...... ..... .. ... .... ...... ...... ...... ..... . 96
7.4. THIẾT KẾ CHI TIẾT CỘT ..... .... .... ...... ...... ...... ........ ...... ...... ...... ...... ...... ........ ...... ...... ...... ...... 97
7.4.1. Nối phần cột trên với phần cột dưới: ..... .... ...... .... ...... ...... ...... ..... ...... ...... ...... ...... ........ ...... .. 97 SVTH: NGUYỄN TƯỜNG VY lOMoAR cPSD| 59256994
TRƯỜNG ĐẠI HỌC KIẾN TRÚC TP.HCM
GVHD: Th.S TRẦN QUỐC HÙNG
7.4.2. Chân cột và liên kết cột với móng ..... .... .... ...... .... ...... ...... ...... ...... ...... ..... .. ...... ..... .. ... ...... 101
CHƯƠNG 8: THIẾT KẾ DÀN VÌ KÈO ..... .... .... .. .. .... ...... ...... ...... ..... .. .......... .... .. ...... ...... ........ ...... 114
8.1. SƠ ĐỒ VÀ KÍCH THƯỚC CHÍNH CỦA DÀN.... .... ...... ...... ...... ..... ...... ...... ...... ...... ........ ...... .. 114
8.2. TẢI TRỌNG VÀ NỘI LỰC TÁC DỤNG LÊN DÀN ..... ..... .. ... ...... ..... ...... .. ...... ..... .. ... ...... ..... 114
8.2.1. Tải trọng tác dụng lên dàn ..... .... .... .. ...... .......... ...... ...... ........ ...... ...... ...... ...... ...... ........ ...... 114
8.2.2. Nội lực tác dụng lên dàn ..... .... ...... ...... ..... .. ...... ........ ...... ...... ...... ...... ...... ........ ...... ...... ...... 115
8.3. XÁC ĐỊNH TIẾT DIỆN CÁC THANH DÀN ...... .... ... .. ...... ..... ...... ...... ...... ...... ......... ..... ...... ... 115
8.3.1. Chiều dài tính toán các thanh.... .... ...... ...... ...... .... ...... ...... ..... ...... ...... ...... ...... ........ ...... ...... 115
8.3.2. Cấu tạo thanh dàn và nút dàn ..... .... .... ...... ...... .... .. ...... ........ ...... ...... ...... ...... ......... ..... ...... 115
8.3.3. Tiết diện thanh cánh dưới ..... .... .... ...... ...... ...... .... .. ........ ...... ...... ...... ...... ......... ..... ...... ...... 117
8.3.4. Tiết diện thanh cánh trên ..... .... .... ...... ...... ...... .... ...... ...... ...... ..... ...... ...... ...... ...... ........ ...... 118
8.3.5. Thanh bụng xiên .... ..... ..... .. ...... ..... ...... ...... ...... ...... ......... ..... ...... ...... ...... ...... ........ ...... ...... 121
8.3.6. Thanh bụng đứng .. .. .. ...... ...... ..... .. ...... ..... ... .. ......... ..... ...... ...... ...... ...... ........ ...... ...... ...... 124
8.3.7. Thanh bụng phân nhỏ ..... .... ...... ...... ..... .. ... ...... ........ ...... ...... ...... ...... ...... ........ ...... ...... ...... 126
8.3.8. Thanh cửa mái ..... .... .... ...... ...... ...... ...... ..... ... .. ........ ...... ...... ...... ...... ...... ........ ...... ...... ...... 126
8.4. TÍNH TOÁN CÁC CHI TIẾT CỦA DÀN ..... ..... .. ...... ........ ...... ...... ...... ...... ......... ..... ...... ...... ... 128
8.4.1. Yêu cầu chung ..... .... .... ...... ...... ...... ...... ..... ...... ......... ...... ...... ..... .. ... ...... .... .. ........ ...... ...... 128 SVTH: NGUYỄN TƯỜNG VY lOMoAR cPSD| 59256994
TRƯỜNG ĐẠI HỌC KIẾN TRÚC TP.HCM
GVHD: Th.S TRẦN QUỐC HÙNG
8.4.2. Nút không có nối thanh cánh ..... .... .... ...... ....... .. ...... ...... ..... .. ...... ..... ... .. ........ ...... ...... ...... 128
8.4.3. Nút có nối thanh cánh ..... .... ...... ...... ..... ...... .. .... ...... ...... ...... ...... ...... ..... .. ...... ..... .. ... ...... . 135
8.4.4. Nút nối dàn ở công trường ..... .... .... ...... ...... ...... ........ ...... ...... ...... ...... ...... ........ ...... ...... ...... 139
8.4.5. Nút liên kết dàn với cột ..... .... .... ...... ...... ...... ...... ..... .. ...... ..... ...... ...... ...... ...... ......... ..... ...... 146 SVTH: NGUYỄN TƯỜNG VY lOMoAR cPSD| 59256994 TRƯỜNG
ĐẠI HỌC KIẾN TRÚC TP.HCM GVHD: Th.S TRẦN QUỐC HÙNG
CHƯƠNG 1: SỐ LIỆU THIẾT KẾ VÀ LỰA CHỌN VẬT LIỆU
1.1. SỐ LIỆU THIẾT KẾ:
Thiết kế khung ngang của nhà công nghiệp một tầng, một nhịp với các số liệu như sau: - Nhịp khung: L = 30 (m) - Bước cột: B = 6m
- Sức nâng cầu trục: Q = 75/20 (T) (nhà có 2 cầu trục, làm việc ở chế độ trung bình)
- Cao trình đỉnh ray: Hr = +12.00 (m)
- Độ dốc mái: i = 10%; mái lợp tole
- Chiều dài nhà: A = 102 (m) - Vùng gió: III-A
- Khu vực xây dựng công trình thuộc địa hình B
1.2. CÁC THÔNG SỐ VÀ LỰA CHỌN VẬT LIỆU
- Vật liệu thép CCT38 theo TCVN 4575 – 2012 có cường độ: o Cường độ kéo nén tính toán: f
= 230 (MPa) o Cường độ chịu cắt tính toán: 𝑓𝑣 = 0.58 × 𝛾 𝑓𝑚𝑦 = 0.58 × = 127 (𝑀𝑃𝑎) o
Cường độ kéo đứt tiêu chuẩn: fu = 380 (MPa) o Cường độ ép mặt: 𝑓𝑐 = 𝛾𝑓𝑚𝑢 = = 362 (𝑀𝑃𝑎)
- Dùng que hàn N42 theo TCVN 4575 – 2012 ta được số liệu sau:
o Cường độ kéo đứt tiêu chuẩn: fwun = 410 (MPa)
o Cường độ tính toán: fwf = 180 (MPa)
fws = 0.45×fu = 0.45×380 = 170 (MPa) SVTH: NGUYỄN TƯỜNG VY 1 lOMoAR cPSD| 59256994 TRƯỜNG
ĐẠI HỌC KIẾN TRÚC TP.HCM GVHD: Th.S TRẦN QUỐC HÙNG o Phương pháp hàn tay.
- Dùng Bulong cấp độ bền 5.8 tra bảng 9 trong TCVN 4575 – 2012 ta được số liệu sau: Cường độ tính toán Trạng thái làm việc Ký hiệu Cấp độ bền (MPa) Cắt fvb 200 5.8 Kéo ftb 200
- Liên kết đỉnh cột với dàn: liên kết nút cứng
- Liên kết chân cột với móng BTCT: Liên kết ngàm trong mặt phẳng khung ngang
- Độ dốc i = 10% → Góc ngiêng α = 5.7110
CHƯƠNG 2: XÁC ĐỊNH KÍCH THƯỚC KHUNG NGANG
2.1. KÍCH THƯỚC CẦU TRỤC PHÙ HỢP
Từ số liệu thiết kế nhà L = 30 (m); sức nâng cầu trục Q = 75/20 T (nhà có 2 cầu trục, làm việc ở
chế độ trung bình), ta có nhịp cầu trục:
𝐿𝑘 = 𝐿 − 2𝜆 = 30 − 2 × 0.75 = 28.5(𝑚)
Với λ: Khoảng cách từ trục ray đến trục định vị của cột, ta chọn sơ bộ λ = 0.75 (m) (Sức trục ≤ 75 T)
Tra phụ lục VI- bảng VI.2- trang 138 sách “Thiết kế kết cấu nhà công nghiệp” của Đoàn Định
Kiến, ta được thông số cầu trục như sau: SVTH: NGUYỄN TƯỜNG VY 2 lOMoAR cPSD| 59256994 TRƯỜNG
ĐẠI HỌC KIẾN TRÚC TP.HCM GVHD: Th.S TRẦN QUỐC HÙNG Sức lực Nhịp Kích thước gabarit chính Loại Áp lực Trọng Nhịp ray bánh xe lượng Lk lên ray L k Móc Móc H F Lt T J B Xe Cầu chính phụ B con trục 1 P1 P2 T m T T m 75
20 28.5 4000 400 250 4400 4430 4400 8990 KP- 38 39 34 135 28.5 100 SVTH: NGUYỄN TƯỜNG VY 3 lOMoAR cPSD| 59256994 TRƯỜNG
ĐẠI HỌC KIẾN TRÚC TP.HCM GVHD: Th.S TRẦN QUỐC HÙNG
2.2. KÍCH THƯỚC CỦA PHƯƠNG NGANG
2.2.1. Xác định kích thước cột
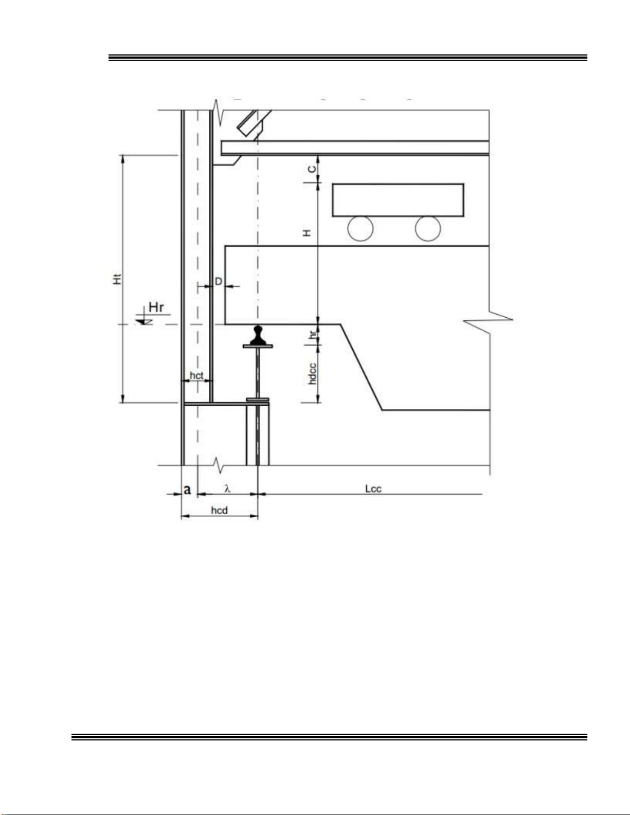
- Cao trình đỉnh ray: Hr = 12 (m)
- Khe hở an toàn giữa cầu trục và vì kèo:
𝐶ℎọ𝑛 𝐶 = 400 (𝑚𝑚)
- Sơ bộ kích thước dầm cầu chạy: SVTH: NGUYỄN TƯỜNG VY 4 lOMoAR cPSD| 59256994 TRƯỜNG
ĐẠI HỌC KIẾN TRÚC TP.HCM GVHD: Th.S TRẦN QUỐC HÙNG 1 1 1 1 ℎ = ( ÷ ) × 𝐵 = ( ÷ ) × 6000 = (600 ÷ 750) 10 8 10 8 Chọn hdcc = 750 (mm)
- Chiều cao từ mặt ray đến mép dưới dàn:
𝐻2 = (𝐻𝑐 + 100) + 𝑓 = (4000 + 100) + 300 = 4500 (𝑚𝑚) Trong đó:
• Hc : Kích thước gabarit của cầu trục, từ mặt ray đến điểm cao nhất của xe con cầu trục; Hc = 4000 (mm)
• f: khe hở phụ, xét độ võng của kết cấu, việc bố trí thanh giằng; f = 300 (mm)
- Chiều cao của xưởng, từ nền nhà đến đáy vì kèo:
H = H1 + H2 = 12000 + 4500 = 16500 (mm)
- Chiều cao cột dưới (từ nền nhà tới đáy dầm cầu chạy):
𝐻𝑐𝑑 = 𝐻𝑟 − ℎ𝑑𝑐𝑐 − ℎ𝑟𝑎𝑦 + ℎ𝑚 = 12000 − 750 − 200 + 600 = 11650 (𝑚𝑚) Trong đó:
• Hr: Cao trình đỉnh ray; Hr = 12 (m)
• hray: Chiều cao tổng cộng của ray và đệm; hray = 200 (mm)
• hm: Chiều sâu chôn móng; hm = 0.6 (m)
- Chiều cao cột trên (từ đáy dầm cầu chạy tới mép dưới dàn vì kèo):
𝐻𝑐𝑡 = 𝐻2 + ℎ𝑟𝑎𝑦 + ℎ𝑑𝑐𝑐 = 4500 + 200 + 750 = 5450 (𝑚𝑚) SVTH: NGUYỄN TƯỜNG VY 5 lOMoAR cPSD| 59256994 TRƯỜNG
ĐẠI HỌC KIẾN TRÚC TP.HCM GVHD: Th.S TRẦN QUỐC HÙNG
2.2.2. Xác định kích thước theo phương ngang
- Khoảng cách từ trục định vị đến mép ngoài cột: a = 250 mm (áp dụng cho nhà có cầu trục với Q ≤ 75T)
- Chọn sơ bộ chiều cao dàn: 1 1 1 1 ℎ𝑑𝑎𝑛 = ( ÷ ) × 𝐿 = ( ÷
) × 30000 = (2000 ÷ 3000) (𝑚𝑚) 15 10 15 10 Chọn hdàn = 1,5 (m)
- Sơ bộ tiết diện cột trên (chọn cột đặc): 1 1 1 1 ℎ𝑡 = ( ÷ ) × 𝐻𝑐𝑡 = ( ÷ ) × 5450 = (454 ÷ 545) 12 10 12 10 Chọn ht = 500 (mm)
+ Bề rộng bản cánh tiết diện cột: 1 1 1 1
𝑏𝑓 = ( ÷ ) × ℎ = ( ÷ ) × 500 = (100 ÷ 250) 2 5 2 5 Chọn bf = 250 (mm) + Chiều dày bản bụng: 1 1 1 1 𝑡𝑓 = ( ÷ ) × 𝑏 = ( ÷ ) × 250 = (7,8 ÷ 8,3) 30 32 30 32 Chọn tf = 8 (mm) + Chiều dày bản cánh: SVTH: NGUYỄN TƯỜNG VY 6 lOMoAR cPSD| 59256994 TRƯỜNG
ĐẠI HỌC KIẾN TRÚC TP.HCM GVHD: Th.S TRẦN QUỐC HÙNG 𝑡𝑤 ≥ 𝑏 Chọn tw = 12 (mm)
Vậy tiết diện cột trên đã sơ bộ là I500x250x8x12
- Để cầu trục làm việc an toàn theo phương dọc nhà, khoảng cách λ từ trục ray đến trục định vị
phải thoản mãn điều kiện (khoảng cách từ tim ray đến trục định vị): 𝜆 ⇒ Thỏa
- Chiều cao tiết diện cột dưới: ⇒ Thỏa • Chọn hd = 1000 (mm)
2.2.3. Kích thước dàn vì kèo và cửa mái
- Chọn sơ bộ chiều cao dàn:
ℎ0 = (÷) × 𝐿 = (÷) × 30000 = (2000 ÷ 3000)𝑚𝑚
• Chọn h0 = 2200 (mm) = 2.2 (m)
- Độ dốc i = 10% ⟶ α = 5.7110 , ta tính
được chiều cao của thanh đứng giữa dàn: 𝐿
ℎ𝑔𝑖ữ𝑎 𝑑à𝑛 = ℎ0 + × 10% = 2.2 + × 10% = 3.7(𝑚) 2 SVTH: NGUYỄN TƯỜNG VY 7 lOMoAR cPSD| 59256994 TRƯỜNG
ĐẠI HỌC KIẾN TRÚC TP.HCM GVHD: Th.S TRẦN QUỐC HÙNG
- Kích thước cửa mái: o Sơ bộ chiều rộng cửa mái:
𝐿𝑐𝑚 = ( ÷ ) × 𝐿 = ( ÷ ) × 30 = (10 ÷ 15)𝑚 • Chọn Lcm = 12 (m)
Chiều cao cửa mái: h = 1.5 (m) SVTH: NGUYỄN TƯỜNG VY 8 lOMoAR cPSD| 59256994 TRƯỜNG
ĐẠI HỌC KIẾN TRÚC TP.HCM GVHD: Th.S TRẦN QUỐC HÙNG 2.3. BỐ TRÍ HỆ GIẰNG
Hệ giằng là bộ phận kết cấu liên kết các khung ngang lại tạo thành hệ kết cấu không gian, có các tác dụng:
- Bảo đảm sự bất biến hình theo phương dọc nhà và độ cứng không gian cho nhà;
- Chịu các tải trọng tác dụng theo phương dọc nhà, vuông góc với mặt phẳng khung như gió
thổi lên tường đầu hồi, lực hãm cầu trục, động đất...xuống móng.
- Bảo đảm ổn định (hay giảm chiều dài tính toán ngoài mặt phẳng) cho các cấu kiện chịu nén
của kết cấu: thanh dàn, cột,...
- Tạo điều kiện thuận lợi, an toàn cho việc dựng lắp, thi công. Hệ giằng bao gồm hai nhóm: hệ
giằng mái và hệ giằng cột. 2.3.1. Hệ giằng mái
2.3.1.1. Hệ giằng cánh trên -
Giằng trong mặt phẳng cánh trên gồm các thanh chéo chữ thập trong mặt phẳng cánh
trên và các thanh chống dọc nhà. Tác dụng chính của chúng là bảo đảm ổn định cho cánh trên
chịu nén của dàn, tạo những điểm cố kết không chuyển vị ra ngoài mặt phẳng dàn -
Thanh giằng chữ thập được bố trí ở 2 đầu nhà và khoảng giữa nhà. Khoảng cách giữa
chúng không quá 50 – 60 m -
Thanh chống dọc nhà dùng để cố định những nút quan trọng của nhà. Thường khoảng 6m bố trí 1 thanh SVTH: NGUYỄN TƯỜNG VY 9 lOMoAR cPSD| 59256994 TRƯỜNG
ĐẠI HỌC KIẾN TRÚC TP.HCM GVHD: Th.S TRẦN QUỐC HÙNG
2.3.1.2. Hệ giằng cánh dưới -
Giằng trong mặt phẳng cánh dưới được đặt tại các vị trí có giằng cánh trên. Nó cùng với
giằng cánh trên tạo nên các khối cứng không gian bất biến hình. Hệ giằng cánh dưới tại đầu hồi
nhà dùng làm gối tựa cho cột hồi, chịu tải trọng gió lên tường hồi, nên gọi là dàn gió -
Trong nhà công nghiệp có Q ≥ 10T hoặc có chế độ làm việc nặng, để tăng độ cứng cho
nhà, cần có thêm hệ giằng cánh dưới theo phương dọc nhà. Hệ giằng đảm bảo sự làm việc cùng
nhau của các khung, truyền tải trọng cục bộ tác dụng lên một khung sang các khung lân cận. Hệ
giằng dọc được bố trí dọc 2 hàng cột biên và tại một số hàng cột giữa, cách nhau 60 – 90m theo phương bề rộng nhà SVTH: NGUYỄN TƯỜNG VY 10 lOMoAR cPSD| 59256994 TRƯỜNG
ĐẠI HỌC KIẾN TRÚC TP.HCM GVHD: Th.S TRẦN QUỐC HÙNG 2.3.2. Hệ giằng cột
- Hệ giằng cột đảm bảo độ cứng dọc nhà và ổn định cho cột. Do khung được tính theo phương
ngang nên độ cứng dọc nhà rất bé, có thể coi như liên kết khớp với móng. Vì vậy muốn khối
nhà đứng vững cần phải cấu tạo một miếng cứng bất biến hình để cột khác tựa vào. Thông
thường các thanh giằng chéo nối 2 cột giữa nhà hoặc giữa 2 khe nhiệt độ để tạo thành miếng cứng
- Hệ giằng cột bố trí thành 2 khối : giằng cột trên và giằng cột dưới. Các thanh giằng cột trên
được bố trí ở trục cột, các thanh giằng cột dưới bố trí ở nhánh cột
- Ngoài ra, ở đầu hồi và đầu khối nhiệt độ còn bố trí giằng cột trên để nhận lực gió đầu hồi và
lực hãm dọc của cầu trục, các lực này truyền xuống móng qua hệ giằng cột dưới
- Khi nhà dài hơn 120m, để đảm bảo độ cứng dọc dùng 2 hệ giằng đối xứng qua trục nhà
- Khi bố trí hệ giằng cột cần chú ý : khoảng cách từ đầu hồi đến hệ giằng gần nhất khoảng 75m,
khoảng cách 2 hệ giằng khoảng 50m SVTH: NGUYỄN TƯỜNG VY 11 lOMoAR cPSD| 59256994 TRƯỜNG
ĐẠI HỌC KIẾN TRÚC TP.HCM GVHD: Th.S TRẦN QUỐC HÙNG
- Khi bước cột không quá 12m, hệ giằng cấu tạo chữ thập là đơn giản nhất. Góc nghiêng hợp lý
giữa thanh giằng với phương ngang là 35 ÷ 55
CHƯƠNG 3. TẢI TRỌNG TÁC DỤNG LÊN KHUNG NGANG 3.1. TĨNH TẢI
- Tĩnh tải bao gồm trọng lượng bản thân kết cấu và các tải trọng hoàn thiện, bao che. Trọng
lượng bản thân kết cấu sẽ được phần mềm tự động tính toán khi ta giải nội lực. Hệ số vượt tải là 1.05
- Độ dốc mái i = 10% (α=5.7110)
3.1.1. Tải trọng lớp hoàn thiện mái, tải trọng bản thân tấm tole, xà gồ và giằng
- Tải trọng do mái tole, xà gồ mái: 𝑔𝑚𝑡𝑐 = 0.2(𝑘𝑁⁄𝑚2) ; hệ số vượt tải n = 1.1
𝑔𝑡𝑜𝑙𝑒𝑡𝑐,𝑥à 𝑔ồ = 0,15(𝑘𝑁⁄𝑚2)
𝐵𝑎𝑜 𝑔ồ𝑚: { 𝑔𝑡𝑐 𝑛𝑔 = 0,05 (𝑘𝑁⁄𝑚2) 𝑔𝑖ằ - Tải trọng tính toán:
𝑔𝑚𝑡𝑡 = 𝑛 × 𝑔𝑚𝑡𝑡 = 1.1 × 0.2 = 0.22(𝑘𝑁⁄𝑚2)
- Tải trọng tính toán quy về tải trọng phân bố đều trên diện tích mặt bằng: 𝑔𝑡𝑐 SVTH: NGUYỄN TƯỜNG VY 12