



















Preview text:
VADUNICAD
Học AutoCAD Mechanical QUY 13 TRÌNH Bước
Vẽ hộp giảm tốc
Sỡ Hữu Ngay Công Thức Vẽ HỘP GIẢM TỐC Trong 3 Ngày NGUYỄN VĂN BÉ
QUY TRÌNH 13 BƯỚC VẼ HỘP GIẢM TỐC
Chào bạn, tôi là Văn Bé đây!
Tôi không biết vì sao bạn lại ở đây và đang đọc quyển sách
này của tôi, nhưng tôi biết chắc rằng bạn là người rất ham học
hỏi và khao khát tìm cho mình một công thức để học tập hiệu quả hơn.
Rất có thể đây là lần đầu tiên bạn chúng ta gặp nhau nên bạn
cho tôi vài phút để giới thiệu về bản thân mình nhé.
Tôi tên họ đầy đủ là Nguyễn Văn Bé, hiện tại tôi đang sinh
sống và làm việc tại Tp. HCM, công việc hiện tại của tôi là Kỹ sư Cơ khí. Ngoài công việc
chính thì tôi còn có nghề tay trái kinh doanh. Tôi cũng là Founder của HỌC VIỆN
AUTOCAD ONLINE nơi chia sẽ kiến thức về AutoCAD Mechanical và Cơ khí và
VADUNI.COM trang thương mại điện tử về các khóa học trực tuyến.
Bạn biết không tôi không phải là chuyên gia hay nhà đào tạo gì cả, tôi chỉ là một
người bình thường như bạn thôi, nhưng được cái là tôi có những trải nghiệm thực tế (có thể
là nhiều hơn bạn hoặc ít hơn) cộng với niềm đam mê là chia sẻ kiến thức đến cho mọi người
nên hôm nay tôi và bạn mới duyên gặp nhau. Hãy xem tôi như một người bạn của bạn,
chúng ta cùng nhau trao dồi và học tập lấn nhau để cùng nhau tiến bộ hơn nhé.
Liên hệ với tôi: Youtube: Facebook: Email: mecadpro@gmail.com Website: www.vaduni.com
VÌ SAO TÔI VIẾT QUYỂN SÁCH NÀY
Tôi cũng từng giống như bạn, cũng từng là một cậu sinh viên nên tôi biết được rằng
cuộc sống của đời sinh viên như thế nào. Tôi cũng từng giống bạn, cũng từng tìm tiềm kiếm
tài liệu khắp nơi mỗi khi làm đồ án nên tôi biết được rằng nó vất vả đến thế nào. Nhưng nhờ
những lần tự mình tiềm kiếm và tự mình học tập như vậy nên hôm nay tôi mới coa cái để chia sẻ cho bạn đây.
Đùa thôi, tôi không muốn bạn phải mất quá nhiều thời gian để tự mình học một kỹ
năng nào đó. Tôi biết được cảm giác này nên tôi quyết định phải làm một cái gì đó để giup
bạn, để bạn không giống như tôi lúc trước, tự mình mài mò. Và đó là lý do bạn có trên tay quyển sách này.
Thay vì bạn tự mình ngồi suy nghĩ thì ở đây tôi chỉ đường cho bạn, việc còn lại của
bạn rấtđơn giản đó là chỉ cần độc hết quyển sách này rồi áp dụng thôi. Tôi đã liệt kê ra rất
chi tiết từng bước bạn phải làm gì để vẽ HỘP GIẢM TỐC nên việc bạn bạn hoàn thành nó
trong 3 ngày là hoàn toàn bình thường. Nào hãy bắt tay ngay đi. 1
QUY TRÌNH 13 BƯỚC VẼ HỘP GIẢM TỐC
QUY TRÌNH VẼ HỘP GIẢM TỐC
BƯỚC 1: TỔNG HỢP LẠI TẤT CẢ CÁC SỐ LIỆU TRONG PHẦN
THUYẾT MINH THÀNH NHỮNG BẢNG SỐ LIỆU CỤ THỂ.
Vì sao chúng ta cần phải tổng hợp lại tất cả các số liệu này, đó là vì trong quá trình
vẽ nếu như các bạn vừa vẽ vừa tra những số liệu này từ bản thuyết minh của mình thì nó sẽ
mất rất nhiều thời gian và công sức. Do đó việc tổng hợp lại tất cả các số liệu này thành
những bảng từ 1 đến 2 trang sẽ giúp bạn tiết kiệm được thời gian hơn.
Dưới đây là tất cả các bảng số liệu mà bạn không phải tổng hợp lại trước khi vẽ hộp giảm tốc.
Bảng 1.1 Bảng phân phối tỉ số truyền và công suất Thông số Trục động cơ Trục 1 Trục 2 Trục 3 Trục tang I 3,15 3.47 3.47 1 n (vòng/phút) 1450 460,3 132,7 38,2 38,2 N (kW) 3,30 3,14 3,03 2,92 2,90 Mooment xoắn 21734,5 65146 218059,5 730000 725000 Mx (N.mm)
Bảng 1.2 Bảng các thông số của bộ truyền cấp chậm Moodun m 3 Số răng bánh nhỏ Z1 34 Số răng bánh lớn Z2 118
Đường kính vòng chia bánh nhỏ D1 102
Đường kính vòng chia bánh lớn D2 354 Khoảng cách trục A 228 Chiều rộng bảnh răng 92
Đường kính vòng đỉnh bánh nhỏ De1 108
Đường kính vòng đỉnh bánh lơn De2 360
Đường kính vòng chân bánh nhỏ De1 94,5
Đường kính vòng chân bánh lớn De2 346,5
Bảng 1.3 Bảng các thông số của bộ truyền cấp nhanh Moodun m 3 Góc nghiêng β 13º10 Số răng bánh nhỏ Z1 33 Số răng bánh lớn Z2 115
Đường kính vòng chia bánh nhỏ D1 102
Đường kính vòng chia bánh nhỏ D2 354 Khoảng cách trục A 228 2
QUY TRÌNH 13 BƯỚC VẼ HỘP GIẢM TỐC
Bảng 1.4 Bảng các thông số của bộ truyền bánh răg nón
Bảng 1.5: Bảng kích thước của trục THÔNG SỐ Trục 1 Trục 2 Trục 3 Đường kính trục lắp bánh răng D 1 = 32mm D2 = 45mm D3 = 55mm Đường kính trục lắp ổ d lăn 1 = 30mm d2 = 35mm d3 = 50mm
Bảng 1.6. Bảng các kích thước của then THÔNG SỐ b h t t1 k l Trục 1 10mm 8mm 4,5mm 3,6mm 4,2mm 60mm Trục 2 14mm 9mm 5mm 4,1mm 5mm 60mm Trục 3 16mm 10mm 5mm 5,1mm 6,8mm 60mm 3
QUY TRÌNH 13 BƯỚC VẼ HỘP GIẢM TỐC
Bảng 1.7: Bảng kích thước các phần tử cấu tạo vỏ hộp Tên gọi Công thức Giá trị (mm) Chiều dày: - Thân hộp δ δ = 0,03.aw + 3 > 6mm δ = 10 - Nắp hộp δ δ δ 1 1 = 0,9.δ 1 = 9 Gân tăng cứng: - Chiều dày e e = (0,8 ÷ 1).δ e = 9 - Chiều cao h h < 58mm h = 40mm - Độ dốc khoảng 2o Đường kính: - Bulông nền d1
d1 > 0,04.aw + 10 > 12mm d1 = 20 - Bulông cảnh ổ d d 2 d2 = (0,7 ÷ 0,8).d1 2 = 16 d3 = 12
- Bulông ghép bích nắp và thân d3 d3 = (0,8 ÷ 0,9).d2 d4 = 8 (tăng - Vít ghép nắp ổ d số lượng vít) 4 d4 = (0,6 ÷ 0,7).d2 d5 = 8
- Vít ghép nửa nắp cửa thăm d5 d5 = (0,5 ÷ 0,6).d2
Mặt bích ghép nắp và thân:
- Chiều dày bích thân hộp S3 S3 = (1,4 ÷ 1,8).d3 S3 = 21
- Chiều dày bích nắp hộp S S 4 S4 = (0,9 ÷ 1).S3 4 = 21 K3 = 46
- Bề rộng bích nắp và thân K3 K3 ≈ K2 – (3 ÷ 5) 4
QUY TRÌNH 13 BƯỚC VẼ HỘP GIẢM TỐC Kích thước gối trục:
- Chọn các kích thước tiêu chuẩn:
Trục 1: D = 72, D2 = 90, D3 = 115
D4 = 22, h = 8, Z = 4, d4 = M6
Trục 2: D = 80, D2 = 100, D3 = 125,
D4 = 26, h = 8, Z = 4, d4 = M6
Trục 3: D = 90, D2 = 110, D3 = 135,
D4 = 42, h = 8, Z = 4, d4 = M6
- Tâm lỗ bulông cạnh ổ E2 và C E ≈ 1,6.d 2 2 E2 = 26
(k là khoảng cách từ tâm bulông đến C ≈ D3/2 C = 40 mép lỗ) (k ≥ 1,2.d2) k = 20 R2 ≈ 1,3.d2 R2 = 21
Bề rông mặt ghép bulông cạnh ổ K2 - Chiều cao h K2 = E2 + R2 + (3 ÷ 5) K2 = 50
h xác định theo kết cấu, phụ thuộc vào tâm lỗ bulông và kích thước mặt tựa. Mặt đế hộp
- Chiều dày: khi không có phần lồi S1 S1 = (1,3 ÷ 1,5).d1 S1 = 26
- Khi có phần lồi: Dd, S1 và S2
Dd xác định theo đường kính dao khoét. S1 = (1,4 ÷ 1,7).d1 S1 = 30
- Bề rộng mặt đế hộp, K1 và q S2 = (1 ÷ 1,1).d1 S2 = 20 K1 ≈ 3.d1 K1 = 60 q ≥ K1 + 2.δ q = 80
Khe hở giữa các chi tiết:
- Giữa bánh răng và thành trong hộp Δ ≥ (1 ÷ 1,2).δ Δ = 10
- Giữa đỉnh bánh răng lớn và đáy hộp Δ Δ 1 ≥ (3 ÷ 5).δ và phụ 1 = 40
- Giữa mặt bên và các bánh răng với
thuộc loại hộp giảm tốc, nhau lượng dầu bôi trơn trong hộp. Δ = 10 Δ ≥ δ Số lượng bulông nền Z
Z = (L + B)/(200 ÷ 300) 3,11 ≤ Z ≤ (L, B là chiều dài và 4,67 chiều rộng của hộp) Chọn Z = 4 5
QUY TRÌNH 13 BƯỚC VẼ HỘP GIẢM TỐC
Bảng 1.8. Bảng dung sai lắp ghép Trục 1 Trục 2 Trục 3 Kiểu lắp Dung sai Dung sai Dung sai giữa Kiểu lắp (μm) Kiểu lắp Kiểu lắp (μm) (μm) Ổ + 15 + 18 + 18 lăn – trục Ø30k6 Ø35k6 Ø50k6 + 2 + 2 + 2 + 9 + 9 + 10 Vỏ hộp – ổ lăn Ø72k6 Ø80K7 Ø90K7 -21 – 21 – 25 + 25 + 25 𝐻7 0 + 30 Ø45 0 𝑘6 + 18 0 Bánh răng – 𝐻7 + 2 𝐻7 trục Ø32 Ø55 𝑘6 + 25 𝑘6 + 18 𝐻7 0 + 21 Ø45 + 2 𝑘6 + 18 + 2 + 2 + 21 Bánh đai – 𝐻7 0 trục Ø28 𝑘6 + 18 +2
BƯỚC 2: TỔNG HỢP LẠI TẤT CẢ CÁC SƠ ĐỒ TÍNH TRỤC.
Tiếp theo bạn cần phải tổng hợp lại tất cả các sơ đồ tính toán trực ở trong bản thuyết
minh, mục đích là giúp cho các bạn kiểm soát được chuổi kích thước tốt hơn và tiết kiệm
được nhiều thời gian hơn trong quá trình vẽ.
Hình 2.1: Sơ đồ trục 1 6
QUY TRÌNH 13 BƯỚC VẼ HỘP GIẢM TỐC
Hình 2.2: Sơ đồ trục 2
Hình 2.3: Sơ đồ trục 3 Các thông số khác: -
Khoảng cách từ thành trong của hộp đến mặt bên của ổ lăn: k2= 10 mm. -
Khoảng cách từ mặt mút của chi tiết quay ngoài hộp đến nắp ổ: k3= 10 mm. -
Khe hở giữa bánh răng và thành trong của hộp:k2= 10 mm. -
Khoảng cách giũa các chi tiết quay: k1= 10 mm. - Chiều rộng ổ: B = ? mm. -
Chiều cao của nắp và đầu bulông: hn= ? mm. -
Chiều rộng bánh đai: C = ? mm. -
Chiều rộng bánh răng : D = ? mm. -
Chiều dài mayo của khớp nối: L = 2.d = 2.35= ? mm 7
QUY TRÌNH 13 BƯỚC VẼ HỘP GIẢM TỐC
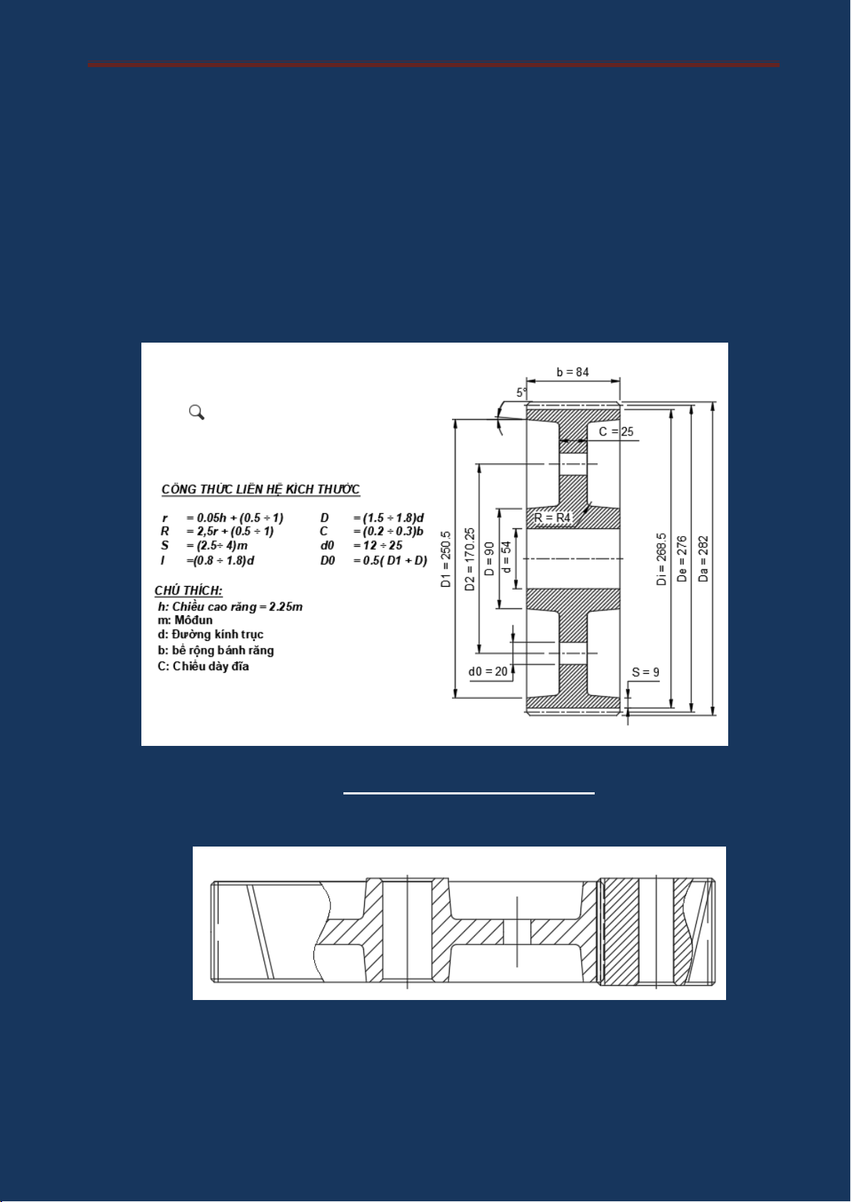
BƯỚC 3: VẼ CÁC BỘ TRUYỀN CẤP NHANH VÀ CẤP CHẶM.
Ở bước này bạn lần lượt vẽ các bộ truyền bánh răng trụ và bộ truyền bánh răng nón
(Nếu có). Sau đó lắp chúng lại thành cụm với nhau ( có thể dùng lệnh Block để kháo các bộ truyền lại).
Nếu bạn đang dùng phần mềm AutoCAD Mechanical thì việc vẽ bộ truyền bánh răng
sẽ rất nhanh chóng, bạn chỉ cần mất một vài phút để vẽ. Còn nếu bạn đang sử dụng phần
mềm AutoCAD thường thì bạn có thể sử dụng bản vẽ bánh răng mẫu dưới đây.
Link Download file CAD: http://vnurl.net/CHAADKeb7GV
Ví dụ: Bộ truyền bánh răng cấp nhanh 8
QUY TRÌNH 13 BƯỚC VẼ HỘP GIẢM TỐC
Ví dụ: Bộ truyền bánh răng cấp chậm
Ví dụ: Bộ truyền bánh răng nón
BƯỚC 4: LẮP GHÉP CÁC BỘ TRUYỀN THEO SƠ ĐỒ TRỤC.
Sau khi bạn đã vẽ xong tất cả các bộ truyền và lắp ghép chúng thành cụm lại với
nhau rồi thì chúng ta tiếp tục đi qua bước tiếp theo.
Trong bước này bạn hãy lắp các bộ truyền lại với nhau theo sơ đồ tính toán trục
(Theo đúng kích thước bạn đã tính toán trên sơ đồ). Bước này rất quan trọng, do đó bạn phải
làm thật sự cẩn thận và chi tiết, các thông số kích thước phải chính xác với nhau. Có một số
truyền hợp khi bạn lắp ghép các bộ truyền lại theo sơ đồ tính toán trục mà thấy nó chưa hộp
lý thì có thể trọng quá trình tính toán bạn đã tính nhầm một phần nào đó, hãy quay xem thật kỹ một lần nữa nhé.
Phải đảm bảo rằng các thông số mà bạn vừa tính ra ở các bước trên điều do bạn tự
làm chứ không phải COPPY từ bài của người khác. Vì sao tôi lại liệt kê đến phần này? Vì
có một số bạn thật sự chỉ đi COPPY bài của người khác về rồi để y chang như vậy và các
bạn đó không hiểu được ý nghĩa thật sự của các con số đó là gì, vậy thì làm sao có thể vẽ được.
Nên việc đầu tiên là bạn phải nắm thật vững kiến thức ở trên, nó sẽ giúp cho bạn tiết
kiệm được thời gian hơn rất nhiều và cũng giúp cho bạn có thể vượt qua được môn đồ án
khi bạn đi bảo vệ. Đó là một số chú ý tôi muốn chia sẻ với bạn trước khi bạn thực hiện bước
này. Để hiểu rõ hơn thì bạn hãy xem ví dụ bên dưới nhé. 9
QUY TRÌNH 13 BƯỚC VẼ HỘP GIẢM TỐC
Hình 4: Lắp ghép các bộ truyền theo sơ đồ tính toán trục
Sau khi bạn lắp ghép ghép các bộ truyền lại với nhau giống như hình trên và tất cả
các kích thước tính toán đều đúng so với bản vẽ của bạn thì chúng ta sẽ đi sang bước tiếp theo.
BƯỚC 5: THIẾT KẾ TRỤC.
Khi bạn đã lắp ghép các bộ truyền lại với nhau xong thì bây giờ chúng ta sẽ bắt đầu
thiết kế kết cấu cho từng trục. Việc của bạn bây giờ là hãy xem lại tất cả các kích thước liên
quan đến trục mà bạn đã tổng hợp lại ở bước số 1, đến đây bạn đã biết được lý do vì sao
bạn cần phải tổng hợp lại tất cả các số liệu này chưa?
Sau khi bạn đã xem lại tất cả các số liệu đó và kiểm tra lại một lần nữa, nếu nó đã
chính xác rồi thì bây giờ chúng ta sẽ bắt tay vào thiết kế trục cho bản vẽ của mình.
Việc thiết kế này khá đơn giản cho nên bạn có thể xem ví dụ ở bên dưới để hiểu rõ
hơn kết cấu của từng trục.
Hình 5: Thiết kế trục 10
QUY TRÌNH 13 BƯỚC VẼ HỘP GIẢM TỐC
BƯỚC 6: LẮP Ổ LĂN & VẼ SƠ BỘ THÂN HỘP.
Sau khi bạn đã thiết kế xong kết cấu từng trục thì bây giờ chúng ta sẽ đi sang bước
tiếp theo là ổ lăn vào từng trục.
Trước khi làm việc này thì bạn hãy tổng hợp lại tất cả các số liệu của ổ lăn mà bạn đã
tính trong bài thuyết minh thành một bảng. Việc này sẽ giúp cho bạn tiết kiệm được rất nhiều thời gian.
Bảng 6: Thông số ổ lăn THÔNG SỐ d(mm) D(mm) C(kN) C0(kN) B(mm) Kí hiệu Trục 1 30 72 40 29.9 20.75 7306 Trục 2 35 80 48.1 35.3 22.75 7307 Trục 3 50 90 27.5 20.2 20 210
Tiếp theo là vẽ tiếp bạc chắn dầu, ở đây bạn có thể xem kích thước cũng như bản vẽ
mẫu ở dưới đây. Đây là một chi tiết tuy nhỏ nhưng có vỏ đấy, có nhiều bạn không biết vẽ
bạc chắn dầu như thế nào và thường hay vẽ sai phần này. Do đó mình đã vẽ mẫu cho bạn,
bạn chỉ cần Download nó về và sử dụng thôi, tuyệt vời lắm đúng không nào.
Hình 6.1: Bạc chắn dầu
Kế tiếp, bạn xem lại bảng thống kê số liệu ở bước số 1 để xem lại các số liệu của
thân hộp để chuẩn bị cho bước tiếp theo. Sau khi bạn đã xem lại xong bảng số liệu này rồi
và xác định được các thông số của thân hộp thì chúng ta bắt đầu vẽ sơ bộ phần thân hộp.
Sau đó bạn tiếp tục lắp các ổ lăn vào từng trục (nếu bạn dùng phần mềm AutoCAD
Mechanical thì việc lấy ổ lăn trong thư viện ra rất nhanh, còn nếu bạn đang dùng AutoCAD
thường thì bạn có thể tải bộ thư viện ổ lăn này về để sử dụng). Khí lắp ổ lăn bạn chú ý là lắp
đúng chiều ( đối với ổ bi đỡ chặn) và ngay tâm ổ.
Sau cùng là lắp bạc chắn dầu vào từng trục và hiệu chỉnh lại kích thước sao cho phù
hợp (do bản vẽ đã được Block nên khi chỉnh sữa lại thì bạn phải phá Block và tạo một Block
mới). Đây là một thủ thuật rất hay mà rất ít người chia sẻ cho bạn. 11
QUY TRÌNH 13 BƯỚC VẼ HỘP GIẢM TỐC
Hình 6.2: Bản vẽ sơ bộ thân hộp
BƯỚC 7: LẮP NẮP Ổ LĂN & VẼ BULONG CẠNH Ổ.
Trong bước này mình sẽ chia sẻ cho bạn cách vẽ nắp ổ như thế nào và một số kích
thước liên quan khác để giúp bạn có thể vẽ được những con bu lông cạnh ổ. Ở phần này có
một số bạn không để ý thường vẽ sai rất nhiều, do đó khi bạn vẽ đến bước này thì phải
chuẩn bị những số liệu thật là chính xác và hiểu rõ được ý nghĩa của từ số liệu đó, nếu
không thì bạn sẽ rất dễ bị sai.
Có một số số liệu quan trọng như sau:
E2 = 26: Khoảng cách từ tâm bulong cạnh ổ đến thành trong của hộp (Không tính chiều dày hộp)
k ≥ 1,2.d2 = 20: Là khoảng cách từ tâm bulông đến mép lỗ
K2 = E2 + R2 + (3 ÷ 5) = 50: Bề rộng mặt ghép bulông cạnh ổ C ≈ D3/2 = 40
Các thông số của nắp ổ và ống lót:
Có 2 loại nắp ổ: Nắp ổ kín và nắp ổ thủng để cho trục xuyên qua. Chiều dài cơ
bản của mặt trụ định tâm thường được lấy từ 5 – 7 mm. Các kích thước nắp ổ bạn xem lại bảng 1.7.
Ống lót: Dùng để lắp ổ lăn, dùng trong hộp giảm tốc CÔN –TRỤ, chiều dày
ống δ = C.D (D: là đường kính trong của ống lót, C: Hệ số phụ thuộc đường kính lỗ). 12
QUY TRÌNH 13 BƯỚC VẼ HỘP GIẢM TỐC
Bảng 7: Hệ số chiều dày ống lót D (mm) 20 ÷ 50 50 ÷ 80 80 ÷ 120 120 ÷ 170 C 0.15 ÷ 0.2 0.12 ÷ 0.15 0.1 ÷ 0.12 0.08 ÷ 0.1 Chiều dày: δ = 6 ÷ 8
Các kích thước còn lại của ống lót bạn có thể tham khảo trong quyển sách
“Tính toán hệ dẫn động cơ khí tập 2 – trang 44”
Hình 7.1: Bản vẽ ống lót
Hình 7.2: Bản vẽ nắp ổ 13
QUY TRÌNH 13 BƯỚC VẼ HỘP GIẢM TỐC
Hình 7.3: Bản vẽ lắp nắp ổ & Bulong cạnh ổ
BƯỚC 8: VẼ SƠ BỘ HÌNH CHIẾU ĐỨNG.
Sau khi bạn đã vẽ được hình chiếu bằng như hình 7.3 thì chúng ta sẽ đi sang bước
thứ 8. Ở bước này chúng ta bắt đầu vẽ sơ bộ hình chiếu đứng từ việc dóng các đường dóng
từ hình chiếu bằng. Cách này sẽ giúp bạn vẽ rất nhanh và cực kỳ chính xác, bạn có thể sử
dụng lệnh Xline hay chức năng vẽ đường dóng trong AutoCAD Mechanical để làm việc này.
Hình 8.1: Bản vẽ sơ bộ hình chiếu đứng 14
QUY TRÌNH 13 BƯỚC VẼ HỘP GIẢM TỐC
Tiếp theo, chúng ta vẽ tiếp nắp thăm, lưới lọc dầu và Bulong vòng (vòng móc). Tới
đây bạn hãy xem lại các kích thước của nắp thăm mà bạn đã tính trong bài thuyết minh và
tổng hộp chúng thành một bảng.
Bảng 8.1: Kích thước nắp thăm A B A1 B1 C C1 K R Vít Số lượng 150 100 190 140 75 - 120 12 M8 x 22 4
Kích thước vòng móc
Chiều dày vòng móc: s = (2 ÷ 3).δ = 30 (mm)
Đường kính lỗ: d= (3 ÷ 4).δ = 35 (mm)
Hình 8.2: Bản vẽ vòng móc
Tiếp tục chúng ta lắp que thăm dầu và nút tháo dầu cho hình chiếu đứng luôn nhé.
Các kích thước của nút tháo dầu và que thăm dầu bạn có thể tham khảo trong sách nhé. Còn
ở đây tôi đã vẽ cho bạn bản vẽ mẫu, bạn chỉ cần Download file bản vẽ này về và sử dụng
thôi. Rất tuyệt vời đúng không nào!
Hình 8.3: Bản vẽ sơ bộ hình chiếu đúng sau khi lắp nắp thăm 15
QUY TRÌNH 13 BƯỚC VẼ HỘP GIẢM TỐC
BƯỚC 9: VẼ SƠ BỘ HÌNH CẠNH.
Trong bước này, chúng ta sẽ thực hiện chức năng vẽ hình chiếu thức 3 trong
AutoCAD Mechanical, tính năng này sẽ giúp cho bạn vẽ hình chiếu cạnh rất nhanh. Còn
nếu như bạn đang sử dụng AutoCAD thường thì bạn phải vẽ thủ công, việc này làm bạn tốn
khá nhiều thời gian. Do đó, từ đầu tôi đã nhắc, nhắc lại là nếu bạn đang học Cơ khí thì bạn
phải sử dụng AutoCAD Mechanical và phải sử dụng được thành thạo phần mềm này, đó là
việc bắt buộc nếu như bạn muốn kỹ năng và tốc độ vẽ của mình nần lên một Level mới.
Hình 9.1: Tính năng vẽ đường dóng trong AutoCAD Mechanical
Hình 9.2: Bản vẽ sơ bộ hình chiếu cạnh 16
QUY TRÌNH 13 BƯỚC VẼ HỘP GIẢM TỐC
BƯỚC 10: HOÀN THÀNH HÌNH CHIẾU ĐỨNG.
Khi bạn đã vẽ xong hình chiếu đứng, lúc này bạn lại dùng chức năng vẽ đường dóng
trong AutoCAD Mechanical để dóng ngược lại từ hình chiếu cạnh.
Bên cạnh đó lúc này bạn hãy xem lại chế độ bôi trơn của hộp giảm tốc của mình,
trong đó có các thông số mức dầu cao nhất và mức dầu thấp nhất. Tùy vào từng trường hộp
thì các thông số này sẽ khác nhau và có nhiều cách tính toán khác nhau. Có trường hợp bạn
phải dùng bánh răng phụ để bôi trơn cho hộp giảm tốc. Do đó, đây cũng là một phần rất
quan trọng trong việc thiết kế hộp giảm tốc của mình.
Bạn có thể xem lại phần lý thuyết tại trang 97 của quyển sách “Tính toán hệ dẫn
động cơ khí tập 2”
Và một phần nữa là trong phần này bạn hãy để ý đến cách vẽ ở nút tháo dầu, xem
nếu như kết cấu như vậy thì có thể tháo được hết mức dầu trong hộp giảm tốc ra hay không?
Đây cũng là một trong những câu hỏi mà bạn có thể gặp được trong lúc đi phản biện đồ án.
Bạn có thể tham khảo bản vẽ mấu dưới đây.
Hình 10: Bản vẽ hình chiếu đứng hoàn chỉnh
Như vậy là bạn đã hoàn thành xong hình chiếu đứng của mình rồi, bây giờ hãy ăn
mừng chiến thắng đầu tiên đi nào. Hãy tự thưởng cho mình một ly Café sau bao ngày cố
gắng đi, tôi nghĩ điều này rất cho bạn đấy, lấy năng lượng để hoàn thành nốt phần còn lại
nào. Đến đây bạn đã thấy tuyệt vờ chưa? Còn gì sung sướng hơn có người chỉ đường cho
bạn từng bước thế này, bạn thấy đấy ở ngoài kia chẵng có ai làm như vây đâu. Hãy cảm ơn
tiềm thức của mình khi nó đã đưa bạn đến với quyển sách này. 17
QUY TRÌNH 13 BƯỚC VẼ HỘP GIẢM TỐC
BƯỚC 11: HOÀN THÀNH HÌNH CHIẾU BẰNG.
Đây là bước rất dễ rồi, bạn chỉ cần dùng tính năng vẽ đường dóng giống như trên là
được thôi. Bây giờ bạn chỉ cần lắp những con bulong nắp ổ vào nữa là xong nhé.
Bạn có thể tham khảo bản vẽ mẫu ở dưới đây:
Hình 11: Bản vẽ hình chiếu bằng hoàn chỉnh
Đến đây là chúng ta đã đã hoàn thành xong cả 3 hình chiếu của hộp giảm tốc rồi, rất
tuyệt vời đúng không nào, nhưng khoan còn một bước nữa thì mới hoàn tất nhé.
Đó là đánh số thứ tự vào ghi kích thước cho hộp giảm tốc của mình, bây giờ mình sẽ
hướng dẫn cho bạn cách đánh số thứ tự động và ghi kích thước tự động trong phần mềm AutoCAD Mechanical nhé.
Bạn sẽ WOW khi biết đến tính năng này, nếu bạn không dùng AutoCAD
Mechanical này thì rất là tiếc. Tính năng này sẽ giúp cho bạn tăng tốc độ khoảng 5 lần so
với cách thông thường, bạn sẽ tiết kiệm được đống thời gian.
Không để bạn phải chờ lâu nữa, bây giờ bạn hãy xem thứ tự từng bước như thế nào nhé.. 18
QUY TRÌNH 13 BƯỚC VẼ HỘP GIẢM TỐC
BƯỚC 12: GHI KÍCH THƯỚC CHO BẢN VẼ LẮP
Chúng ta sẽ sử dụng tính năng ghi kích thước dung sai trong phần mềm AutoCAD
Mechanical. Đây là một tính năng rất là tuyệt vời chỉ có trong phần mềm AutoCAd
Mechanical mới có, Nó giúp bạn tiết kiệm được rất nhiều thời gian và công sức, còn nếu
như bạn đang sử dụng phần mềm AutoCAD thường thì bắt buộc bạn phải dùng hộp thoại
Propertise để chỉnh sửa lại Dim hoặc thiết lập cho mình một Dimsytle mới để mình làm
việc này. Tôi đã nhắc đi nhắc lại, nếu như bạn đang học Cơ Khí thì bạn sPhải biết ử dụng
AutoCAD Mechanical.
Chú ý: Kích thước được ghi trong bảng vẽ lắp chỉ là kích thước bao và kích thước
dung sai, các kích thước chi tiết không ghi trên bản vẽ lắp
Hình 12: Ghi kích thước dung sai lắp ghép cho hình chiếu bằng 19