








Preview text:
1.CÔNG NGHỆ SẢN XUẤT DẦU NHỜN
Để đáp ứng yêu cầu về thành phần của dầu nhờn cần có, thì dầu cần được phải sản xuất từ dầu thô qua các quá trình chưng cất, chiết bằng dung môi, dùng dung môi tách sáp và xử lý tinh chế. Việc lựa chọn dầu gốc để pha chế thành dầu nhờn thương phẩm phụ thuộc vào độ nhớt, mức độ tinh chế, ổn định nhiệt và khả năng tổng hợp của các hợp chất khác (phụ gia) hoặc các vật liệu mà dầu tiếp xúc trong quá trình sử dụng. Thông thường thì dầu gốc được pha từ dầu chưng cất và phân đoạn thu được từ dầu chưng cất phần cặn.
Trong thành phần hóa học của dầu nhờn ta đã đề cập đến thành phần mong muốn của dầu gốc. Chúng bao gồm cả iso – Parafin và các phân tử có một hoặc hai vòng gắn với mạch nhánh Parafin. Các hợp chất khác như các hydrocarbon có cấu trúc vòng naphten, vòng aromat hoặc các dị vòng là những thành phần không mong muốn (vì chúng có tính nhớt nhiệt kém). Vì vậy cần phải tách những cấu tử này ra trong quá trình lọc dầu.
Việc tách các thành phần không mong muốn trong quá trình sản xuất dầu nhờn gốc nhờ các quá trình lọc dầu sẽ cho phép có thể sản xuất dầu gốc có chất lượng cao, ngay cả với thành phần phân đoạn của dầu thô thích hợp cho mục đích này.
Sơ đồ công nghệ chung để sản xuất dầu nhờn gốc từ dầu mỏ thường, bao gồm các công đoạn được chỉ ra ở hình 1.2, các quá trình chính như sau:
- Chưng cất chân không nguyên liệu cặn mazut
- Chiết, tách, trích ly bằng dung môi.
- Tách các hydrocacbon rắn (sáp hay petrolactum).
- Làm sạch lần cuối bằng hydro hóa.
Quá trình tách asphenten bằng dung môi propane thường áp dụng để sản xuất dầu nhờn có độ nhớt cao từ nguyên liệu cặn gudron cũng được xếp vào quá trình chiết, trích ly bằng dung môi.

Hình 1.2
1.1 Chưng cất chân không

Hình 1.3
Từ sơ đồ hình 1.3 công đoạn trong sản xuất dầu nhờn gốc là chưng chân không để tách lấy các phân đoạn riêng biệt dựa vào khoảng nhiệt độ sôi hay độ nhớt. Nguyên liệu của quá trình này là phần cận của quá trình chưng cất khí quyển AD (còn gọi là mazut). Do đó mục đích của công đoạn này là điều chỉnh độ nhớt và nhiệt độ chớp cháy của phân đoạn dầu gốc.
Chưng cất chân không cho phép nhận các phân đoạn dầu bôi trơn có độ nhớt khác nhau. Phần dầu nhẹ nhất, có độ nhớt nhỏ nhất thu được ở đỉnh tháp và phân đoạn nặng nhất thu được từ đáy tháp. Trong các phân đoạn sẽ có mặt tất cả các cấu tử có trong nguyên liệu của loại dầu mỏ đem chưng cất. Dễ dàng thấy rằng các dầu mỏ do khác nhau về thành phần các cấu tử nên chúng không cho phép nhận các phân đoạn dầu bôi trơn với chất lượng mong muốn. Nhưng nhờ công nghiệp chế biến dầu hiện đại, người ta có thể thu được dầu gốc chất lượng tốt từ bất kỳ dầu thô nào, song giá thành sản phẩm sẽ rất khác nhau và sẽ càng cao nếu nguyên liệu không thuận lợi. Dầu thô tốt nhất cho việc sản xuất dầu gốc là các phân đoạn dầu nhờn có chứa nhiều hydrocarbon naphten và hydrocarbon thơm 1 vòng có nhánh parafin dài phân nhánh và các izo-parafin. Còn dầu thô xấu nhất là loại dầu chứa nhiều hydrocarbon đa vòng và hydrocarbon thơm ngưng tụ cao.
1.2 Quá trình trích ly chiết bằng dung môi:
Khi tiến hành chưng cất không thể nào loại ra hết được các cấu tử không mong muốn. Chúng có trong dầu nhờn gốc sau một thời gian bảo quàn hay sử dụng thì bị biến đổi màu sắc, tăng độ nhớt, xuất hiện các hợp chất có tính axit không tan trong dầu tạo thành cặn nhựa hoặc cặn bùn tan trong dầu nhớn. Vì vậy dung dung môi ở diều kiện thích hợp thíc các cấu tử sẽ bị phân thành hai nhóm: nhóm cấu tử hòa tan tốt trong dung môi tạo thành pha riêng với tên gọi là pha chiết (extract), phần còn lại không hòa tan hoặc hòa tan rất ít vào trong dung môi gọi là Raffinat. Sản phẩm có ích có thể nằm trong pha chiết hay nằm trong pha Raffinat. Nhưng trong thực tế người ta quen gọi pha chứa sản phẩm là pha Raffinat còn pha cần loại là Extract.
Dựa vào bảng chất của dung môi mà ta chia thành dung môi có cực và dung môi không có cực và dung môi không có cực hay dung môi hổn hợp. Nhưng dù cho loại nào thì dung môi được chọn cũng phải thoản mản các yêu cầu sau:
-Phải có tính hòa tan chọn lọc, tức là phải có khả năng phân tách chúng thành hai nhóm cấu tử: nhóm có lợi cho dầu nhờn gốc. Tính chất này còn gọi là độ chọn lọc của dung môi.
- Phải bền bề mặt hóa học, không phản ứng với các cấu tử của nguyên liệu không gây ăn mòn và dễ sử dụng.
-Có giá thành rẻ và dễ kiếm.
- Có nhiệt độ sôi khác xa với các cấu tử cần tách để dễ dàng thu hồi dung môi, tiết kiệm được năng lượng.
Ba loại dung môi có cực thích hợp cho việc tách hydrocarbon thơm và cặc nhựa ra khỏi dầu nhờn cất hiện được sử dụng phổ biến đó là: phenol, furfurol, N- metylpirolydon. Còn để tách nhựa asphanten trong phân đoạn gudron người ta dùng phổ biến là propan lỏng.
1.2.1 Quá trình khử asphan trong phần cần gudron
Do trong gudron có chứa nhiều các cấu tử không có lợi cho dâu gốc, nên nếu dựa trực tiếp vào trích ly sẽ không chớ phép đạt chất lượng và hiệu quả mong muốn, chính vì thế người ta thường tiến hành khử asphan trước. Trong sản xuất dầu nhờn, phố biến dùng propan lông để khử chất nhựa-asphan trong phân đoạn gudron.
Mục đích của quá trình này là ngoài việc tách các hợp chất nhựa- asphan còn cho phép tách cà các hợp chất thơm đa vòng, đã làm giảm độ nhớt, chỉ số khúc xạ, độ cốc hóa và nhân được dầu nhờn năng có độ nhớt cao cho dầu
1.2.2 Các quá trình trích ly bằng dung môi chọn lọc
a. Công dụng
Các quá trình này có nhiệm vụ tách các hợp chất hydrocacbon thơm da vòng, các hợp chất nhựa asphan bằng các dung môi có cực nhằm cải thiện thành phần hóa học của dầu nhờn. Các quá trình này được xem như là các quá trình làm sạch chọn lọc dầu nhờn.
b. Cơ sở lý thuyết
Các hợp chất nhựa và hydrocacbon thơm đa vòng là các hợp chất có hại, không mong muốn có mặt trong dầu nhờn. Sự có mặt chúng không những làm cho chất lượng dâu kém đi, chỉ số nhớt thấp mà chúng còn làm cho màu dầu rất xấu. Các hợp chất này bằng phương pháp chưng cất không thể loại bỏ được. Làm sạch dựa vào tính chất hòa tan chọn lọc của dung môi có cực, cho phép sản xuất ra được đầu góc chất lượng cao từ bát kỳ đầu thô nào. Vai trò quan trọng trong quá trình làm sạch chọn lọc là tính chất của dung môi, đó là tác dụng của lực van der Waals lực định hương, cảm ứng, phân tán) xảy ra giữa dung môi và các hợp chất phân cực cần phải tách đi trong đầu nhờn. Yếu tố quan trọng của quá trình làm sạch chọn lọc là độ chọn lọc và khả năng hòa tan của dung môi
1.3 Quá trình tách sáp
Sáp dầu mỏ là hỗn hợp parafin mạch thẳng và các hydrocacbon khác có nhiệt độ nóng chảy khá cao và hoàn tan kém trong dầu ở nhiệt độ thấp. Vì thế chúng không được phép có mặt trong dầu nhờn thành phần, ngoại trừ khi hàm lượng thấp, hoặc các loại dầu được sử dụng ở điều kiện không phải nhiệt độ thấp (ví dụ như điều kiện nhiệt độ phòng, hoặc điều kiện khí hậu nhiệt đới). Trên thực tế trừ một số loại dầu gốc tách từ một số loại dầu thô có hàm lượng parafin thấp, còn tất cả các loại dầu bôi trơn đều phải trải qua tách parafin, nếu không chúng không có độ linh động hợp lý ở nhiệt độ môi trường.
Tách sáp là một trong những khâu quan trọng nhất và khó khăn nhất trong quá trình chế biến dầu nhờn gốc. Có hai quy trình hiện đang được sử dụng để tách sáp, đó là:
Quy trình thứ nhất: làm lạnh để kết tinh sáp và dùng dung môi để hòa tan thành phần dầu đủ cho phép lọc nhanh để tách sáp khỏi dầu.
Quy trình thứ hai: dùng cracking chọn lọc để bẻ gãy phân tử parafin tạo thành những sản phẩm nhẹ. Phương pháp này còn được gọi là phương pháp tách parafin dung xúc tác. Quá trình này còn được gọi là tách parafin xúc tác
Do parafin cũng là cấu tử có chỉ số nhớt tốt, nên mức độ tách quá sâu parafin là điều không cần thiết. Hơn nữa, chi phí đó tách triệt để parafin tốn kém hơn nhiều. Do đó trong công nghiệp, người ta chỉ tiến hành tách vừa đủ để đáp ứng nhu cầu cần thiết, rồi sau đó người ta pha thêm phụ gia chống đông cho dầu gốc
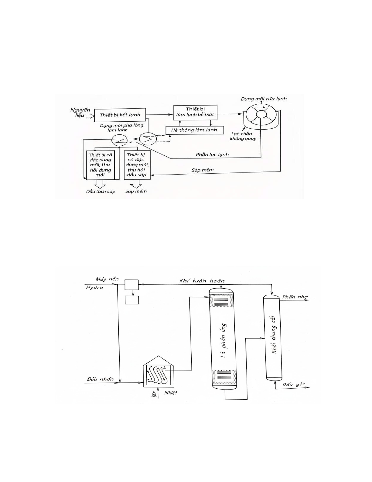
1.3.1 Quá trình tách sáp bằng phương pháp kết tinh
Khi tiến hành làm lạnh phân đoạn dâu nhờn, sáp được tách ra do chúng bị kết tinh. Như vậy bằng cách kết tinh có thể xử lý dầu nhờn chứa sáp trình này dựa vào nguyên lý kết tinh parafin rắn bằng cách làm lạnh sau đó tách chúng khỏi dầu nhờn nhờ lọc hay ly tâm. Trong các dây chuyền sản xuất n dây, dâu được làm lạnh ở các dân lành, sau đó hỗn hợp đặc chứa dầu được chuyển qua bộ phận lọc ép áp suất. Tại đây những tinh thể sáp được giữ lại, còn dầu nhờn được chảy qua. Khi lớp sáp đã đủ dày, xả áp và thị các bánh sáp thô ra. Phương pháp này có các nhược điểm sau:
- Làm việc gián đoạn và rất nhiều khẩu phải dùng tới áp suất;
- Độ nhớt của đầu tách sáp lớn, gây trở ngại cho quá trình lọc, đặc là là với các loại dầu có độ nhớt cao;
- Không áp dụng được cho nguyên liệu là dầu cận vì tách sáp không tre để, do các vị tỉnh thể parafin được tạo ra trong quá trình không thể tách bằng lọc
1.3.2 Tách sáp bằng dung môi chọn lọc
Để khác phục các nhược điểm trên, người ta sử dụng dung môi để tăng độ linh động của dầu nhờn. Do sáp cũng có thể hòa tan vào dung mới, nên phải tiến hành ở nhiệt độ thấp và phải chọn dung môi thích hợp. Với dung môi có độ chọn lọc cao, có thể thu được phân lọc có độ nhớt thấp ngay ở nhiệt độ kết tinh sáp. Nhờ vậy có thể kết tinh được mọi thể loại sáp và lại để tách ra bằng lọc. Độ nhớt của hỗn hợp thấp còn cho phép thay quá trình lọc gián đoạn bằng quá trình lọc chân không liên tục có hiệu quả kinh tế cao. Một dung môi tách sáp tốt phải thỏa mãn các yêu cầu sau:
-Ít (hay không) hòa tan sáp,
-Hòa tan tốt đầu nhờn ở tại nhiệt độ kết tỉnh sáp,
-Sáp ở dạng tỉnh thể lên để để tách hàng lọc,
-Có nhiệt độ sôi thấp để để tách khỏi đâu, tiết kiệm năng lượng,
-Dung môi phải để kiếm, rẻ, không độc hại và không gây ăn môn
-Tỷ lệ dung môi nguyên liệu dầu thấp đã giảm chi phả vận hành.
Người ta còn sử dụng hỗn hợp dung môi sao cho thích hợp với từng loại dầu nhờn nguyên liệu khác nhau. Một số loại dung môi hay được sử dụng trong phương pháp này gồm dung môi chính là các ketone, hydrocarbon thơm và các dẫn xuất cho hữu cơ. Dùng hỗn hợp hai loại dung môi cho hiệu quả tốt hơn. Vì vậy phổ biến nhất là dùng dung môi ketone- hydrocarbon thơm

1.4. Quá trình làm sạch bằng hydro
Quá trình tỉnh chế sản phẩm dầu đã tách sáp là quá trình cần thiết nhằm loại bỏ các chất hoạt động về mặt hóa học, có ảnh hưởng đến độ màu của đầu gốc. Ví dụ, các hợp chất nitơ có ảnh hưởng rất mạnh đến màu sắc cũng như độ bồn mâu của dầu gốc, vì thế phải loại bỏ chúng và đó chính là yêu câu của quá trình tỉnh chế bằng hydro.

Hình 1.4
Sơ đồ của quá trình làm sạch bằng hydro được trình bày trên hình 1.4. Nguyên liệu tiếp xúc với hydro trong điều kiện có xúc tác và nhiệt độ, áp suất cao. Thông thường sử dụng nhiệt độ 300 - 370°C, áp suất 40 đến 60 at (4 đến 5 MPa). Đa số các quá trình làm sạch bằng hydro thường dùng xúc tác coban molipden (Mo - Co). Nguyên liệu dầu nhờn còn chứa các hợp chất của các nguyên tố O, N, S được chuyển hóa thành nước, amoniac và hydro sulfide. Các hydrocarbon thơm một phần bị hydro hóa thành naphten.
1.5 Xu hướng cải tiến công nghệ sản xuất dầu nhờn gốc
Công nghệ sản xuất dầu gốc vừa nêu là công nghệ truyền thống và ngày công được cải thiện nhằm tạo ra sản phẩm có chất lượng cao hơn, hiệu suất lên hơn và kinh tế hơn. Một trong những hướng cải tiến là áp dụng các quá trình xử lý bằng hydro, có xúc tác, chẳng hạn như quá trình hydrocracking và hydroizome hóa.
Nhờ quá trình hydrocracking cho phép sản xuất được loại dầu nhờn có nhiệt độ đông đặc thấp và chỉ số độ nhớt rất cao. Tùy theo điều kiện công nghệ người ta chia hydrocracking thành ba loại sau:
1. Hydrocracking khắt khe tiến hành ở áp suất hydro rất cao, từ 200 đến 250 at (20 đến 25 MPa).
2. Hydrocracking với độ khắt khe vừa phải tiến hành ở áp suất hydro từ 100 đến 150 at.
3. Hydrocracking ở điều kiện mềm tiến hành ở áp suất hydro từ 30 đến 70 at.
Quá trình hydrocracking hay dùng là loại 1 và 2, còn hydrocracking chính là quá trình hydro hóa làm sạch vừa nêu trên.

Nguyên liệu cho quá trình hydrocracking là phần dầu nhờn cất, phần dầu nhờn đã tách nhựa - asphan và hỗn hợp của chúng. Do khả năng linh động của quá trình mà người ta có thể dùng nguyên liệu với độ nhớt rất cao. Sản phẩm nhận được sau hydrocracking được dùng để chế tạo dầu gốc. Đặc điểm nổi bật nhất của dầu gốc nhân được bằng phương pháp này là có màu sắc đẹp và chỉ số nhớt rất cao.
Nguyên liệu cho quá trình hydroizome hóa thường dùng là các parafin mềm (sáp) hoặc phân đoạn cất trực tiếp từ dầu thô chứa nhiều parafin với hàm lượng lưu huỳnh không lớn hơn 0,03 + 0,04%. Sản phẩm chính của quá trình hydroizome hóa là các izo- parafin, sau đó cũng được đưa vào chưng cất và tách parafin rán để nhận dầu góc có chất lượng cao. Dầu nhờn hydroizome hóa có chỉ số nhớt tốt và độ tiếp nhận phụ gia tốt.
Chế độ công nghệ của quá trình hydrocracking và hydro-izome hóa như sau :

Như vậy các quá trình mới này đã cho phép sản xuất từ nguyên liệu chất lượng thấp thành dầu nhờn gốc có chất lượng rất cao với giá thành có thế chấp nhận được.