



















Preview text:
TRƯỜNG ĐẠI HỌC XÂY DỰNG THUYẾT MINH ĐỒ ÁN TỐT NGHIỆP
KHOA XÂY DỰNG DD & CN PHẦN I KIẾN TRÚC (10%)
-----------*------------*-------------*-------------*---------------*---------------*---------------
GIẢNG VIÊN HƯỚNG DẪN : VÕ MẠNH TÙNG
SINH VIÊN THỰC HIỆN : LÊ ANH PHƯƠNG MSSV : 2102.59 LỚP : 59XD3 NHIỆM VỤ:
Sưu tầm công trình thực tế.
Viết thuyết minh kiến trúc, sợ đồ công năng,một số vấn đề kĩ thuật BẢN VẼ:
KT.01- Bản vẽ thể hiện mặt đứng và mặt cắt công trình.
KT.02- Bản vẽ thể hiện mặt bằng kiến trúc tầng 1,điển hình và tầng thượng.
KT.03- Bản vẽ thể hiện mặt bằng kiến trúc tầng áp mái, mái và mặt cắt phòng tầng điển hình.
SVTH: Lê Anh Phương - Lớp: 59XD3 - MSSV: 2102.59 1
TRƯỜNG ĐẠI HỌC XÂY DỰNG THUYẾT MINH ĐỒ ÁN TỐT NGHIỆP
KHOA XÂY DỰNG DD & CN I.
GIỚI THIỆU CÔNG TRÌNH. TÊN CÔNG TRÌNH
KÍ TÚC XÁ 12B ĐẠI HỌC CÔNG ĐOÀN
1. Vị trí, địa điểm xây dựng công trình:
Địa điểm xây dựng : Hà Nội
Chủ đầu tư : Công ty cổ phần Sông Đà – Thăng Long.
Đơn vị thiết kế : Công ty cổ phần tư vấn thiết kế và xây lắp CDS.
Khu đất xây dựng công trình “ Kí túc xá 12B đại học Công đoàn” là một bãi đất
trống, hiện nay khu đất này nằm trong dự án quy hoạch và sử dụng của thành phố Hà Nội.
2. Quy mô, công suất và cấp công trình :
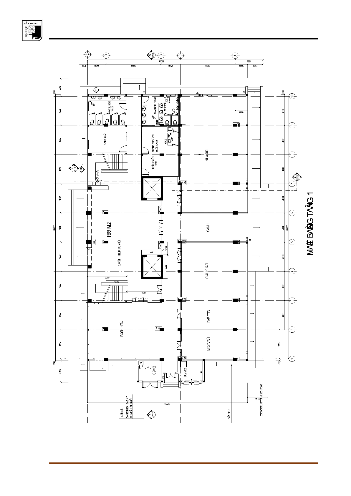
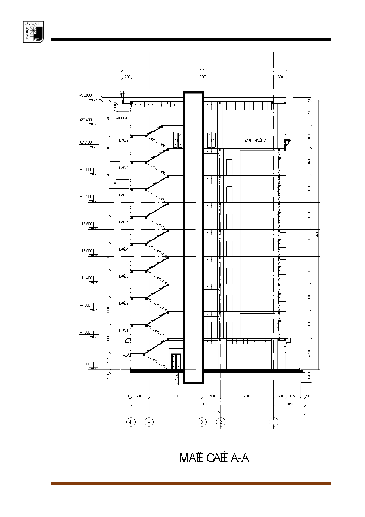
Theo dự án, công trình là tòa nhà cao 35.6 m,diện tích 594 m2 ,bao gồm các công năng như sau :
Tầng 1 dùng làm sảnh đi lại và khu dịch vụ.
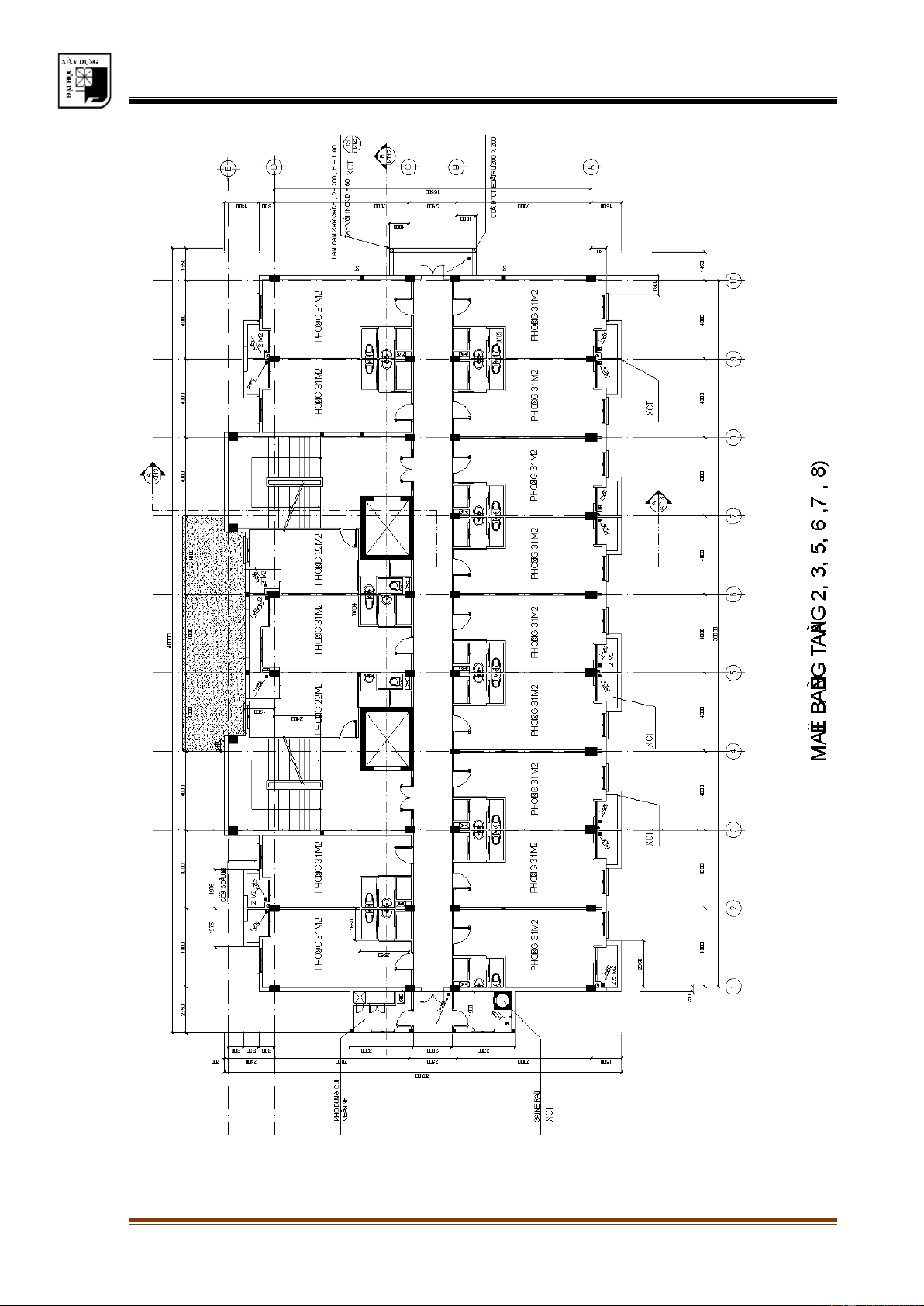
Tầng 2-8 khu vực các phòng ở.
Tầng áp mái khu vực phơi và phòng sinh hoạt tập thể.
Cấp công trình : cấp II ( từ 9-19 tầng)
Các thông số kĩ thuật về quy mô công trình
Chiều cao tới đỉnh mái : 35.6 m.
Chiều cao tầng 1 : 4,2 m.
Chiều cao tầng 2-8 :3.6 m.
Chiều cao tầng 9: 3.0 m.
Chiều cao tầng 10 : 3.2 m.
III. CÁC GIẢI PHÁP THIẾT KẾ
1. Giải pháp mặt bằng :
Tầng 1: Dùng làm sảnh đi lại và khu vực dịch vụ.có 4 cửa ra vào tòa nhà. Tại
tầng 1 có bố trí 2 thang bộ ,2 thang máy để phục vụ giao thông theo chiều đứng
với các tầng phía trên .
Tầng 2-8 : Bố trí các phòng để ở. Tại mỗi tầng có 2 cầu thang bộ,2 thang máy
để phục vụ cho giao thông đi lại.
Tầng 9 : Khu vực sân phơi,phòng sinh hoạt chung.
Mỗi tầng được thiết kế lấy khu lõi thang máy làm trung tâm giao thông. Cầu
thang bộ chung được thiết kế rộng,đặt đối xứng với nhau. Không gian rộng rãi
thoáng mát thuận tiện cho việc giao thông.
SVTH: Lê Anh Phương - Lớp: 59XD3 - MSSV: 2102.59 2
TRƯỜNG ĐẠI HỌC XÂY DỰNG THUYẾT MINH ĐỒ ÁN TỐT NGHIỆP
KHOA XÂY DỰNG DD & CN
SVTH: Lê Anh Phương - Lớp: 59XD3 - MSSV: 2102.59 3
TRƯỜNG ĐẠI HỌC XÂY DỰNG THUYẾT MINH ĐỒ ÁN TỐT NGHIỆP
KHOA XÂY DỰNG DD & CN
SVTH: Lê Anh Phương - Lớp: 59XD3 - MSSV: 2102.59 4
TRƯỜNG ĐẠI HỌC XÂY DỰNG THUYẾT MINH ĐỒ ÁN TỐT NGHIỆP
KHOA XÂY DỰNG DD & CN
SVTH: Lê Anh Phương - Lớp: 59XD3 - MSSV: 2102.59 5
TRƯỜNG ĐẠI HỌC XÂY DỰNG THUYẾT MINH ĐỒ ÁN TỐT NGHIỆP
KHOA XÂY DỰNG DD & CN
SVTH: Lê Anh Phương - Lớp: 59XD3 - MSSV: 2102.59 6
TRƯỜNG ĐẠI HỌC XÂY DỰNG THUYẾT MINH ĐỒ ÁN TỐT NGHIỆP
KHOA XÂY DỰNG DD & CN E 2 D C B A B 1 T K 0 0 9 8 1 0 0 4 2 0 0 0 7 0 0 5 2 0 0 0 7 0 0 2 2 200 0 5 9 1 0 0 7 6 0 0 8 2 0 0 7 6 200 0 5 9 1 200 200 200 0 5 2 850 T1 1 850 10 0 0 0 0 0 0 4 4 0 5 7 7 9 0 5 0 7 0 3 0 4 8 bt YÙ bt A M M G 5. NØ 7 0 3 0 1 O 0 5 A T H 0 0 4 5 K P 3 A 1 T K 7 0 0 0 IÙ 4 A IÙ M NÂ A E L X 6 M O NI Ï U G C PÙ N A 0 0 0 G H 0 0 A T 0 0 0 0 7 5 4 NÏ 0 0 0 - 7 0 0 6 3 2 1 U 4 D 3 O G H K NÈ 5 A B TË 0 0 0 4 A 200 50 0 5 3 1 600 M 4 0 5 0 0 5 0 0 4 3 bt bt 350 0 0 0 5 0 7 4 3 0 5 2 7 7 0 0 0 0 0 0 4 4 1 0 850 5 850 200 2 1 CÙ Ô Ö N 800 0 5 1 1 200 0 0 1 2 200 0 0 1 2 200 0 0 1 2 200 0 0 8 2 200 0 0 1 2 N 200 0 0 1 2 200 0 0 1 2 200 Ô S 200 0 0 4 2 0 0 0 7 0 0 5 2 0 0 0 7 0 0 0 2 2 7 0 0 9 8 1 X m 0 m 8 0 G . 3 NÙ 0 A = T O D C C Ù H T T NÄ 2 Ô B E 1 Ö I G B T N NÂ Ñ K A O H NË L H T N A O Æ T H G TÙ MÂ C R U O N 0 E Ô H H T 0 S P N B 1 T T Ï Ø E C A M L Ô O M U Q A O G A A X L T C L - - -
SVTH: Lê Anh Phương - Lớp: 59XD3 - MSSV: 2102.59 7
TRƯỜNG ĐẠI HỌC XÂY DỰNG THUYẾT MINH ĐỒ ÁN TỐT NGHIỆP
KHOA XÂY DỰNG DD & CN
SVTH: Lê Anh Phương - Lớp: 59XD3 - MSSV: 2102.59 8
TRƯỜNG ĐẠI HỌC XÂY DỰNG THUYẾT MINH ĐỒ ÁN TỐT NGHIỆP
KHOA XÂY DỰNG DD & CN
2. Giải pháp cấu tạo và mặt cắt :
Các tầng điển hình cao 3.6 m phù hợp vs điều kiện khí hậu Việt Nam,là các phòng để ở
Cấu tạo các lớp sàn như sau
Sàn tầng điển hình :
Lớp gạch Granite 600x600x10 mm
Lớp vữa xi măng mác 75 dày 15 mm
Lớp vật liệu chống thấm dày 20 mm
Sàn BTCT đổ tại chỗ
Lớp trát trần dày 15 mm
Sàn mái đổ bê tông đồ dốc 2%.
SVTH: Lê Anh Phương - Lớp: 59XD3 - MSSV: 2102.59 9
TRƯỜNG ĐẠI HỌC XÂY DỰNG THUYẾT MINH ĐỒ ÁN TỐT NGHIỆP
KHOA XÂY DỰNG DD & CN
SVTH: Lê Anh Phương - Lớp: 59XD3 - MSSV: 2102.59 10
TRƯỜNG ĐẠI HỌC XÂY DỰNG THUYẾT MINH ĐỒ ÁN TỐT NGHIỆP
KHOA XÂY DỰNG DD & CN
SVTH: Lê Anh Phương - Lớp: 59XD3 - MSSV: 2102.59 11
TRƯỜNG ĐẠI HỌC XÂY DỰNG THUYẾT MINH ĐỒ ÁN TỐT NGHIỆP
KHOA XÂY DỰNG DD & CN
SVTH: Lê Anh Phương - Lớp: 59XD3 - MSSV: 2102.59 12
TRƯỜNG ĐẠI HỌC XÂY DỰNG THUYẾT MINH ĐỒ ÁN TỐT NGHIỆP
KHOA XÂY DỰNG DD & CN
3. Giải pháp thiết kế mặt đứng, hình khối không gian công trình.
Mặt đứng thể hiện phần kiến trúc bên ngoài công trình, góp phần để tạo thành
quần thể kiến trúc, quyết định đến nhịp điệu kiến trúc của toàn bộ khu vực kiến trúc.
Công trình được phát triển lên cao một cách liên tục và đơn điệu từ tầng 2 trở
lên. Không có sự thay đổi đột ngột nhà theo chiều cao do đó không gây ra
nhưng biên độ dao động tập trung lớn ở đó. Từ tầng 1 đến tầng mái công trình
sử dụng hệ lưới cột kết hợp với lõi thang máy.
Tòa nhà thiết kế có 4 mặt lấy sang, các tầng đều bố trí cửa rộng đảm bảo nhu
cầu chiều sang tự nhiên.
Tòa nhà được thiết kế bằng các giải pháp nhằm tối ưu công năng sử dụng cho
khối nhà ở tập thể
Công trình được thiết kế hiện đại, được áp dụng rộng rãi.
4. Giải pháp vật liệu kiến trúc.
Vật liệu kiến trúc được sử dụng chủ yếu là vật liệu nội địa và liên doanh như :
gạch, cát , xi măng, bê tông cốt thép,lát nền gạch hoa Granite,Ceramic, mái bê
tông cốt thép,tường bả matit và sơn. Nhà vệ sinh ốp gạch Ceramic,thiết bị vệ
sinh dùng hang Vigracera. Cửa đi là cửa gỗ công nghiệp, sơn PU. Cửa khu vệ
sinh là cửa nhôm kính dày 5 mm, cửa sổ, vách kính sử dụng khung nhôm dày 8 mm.
III. CÁC GIẢI PHÁP KĨ THUẬT CÔNG TRÌNH.
1. Giải pháp bố trí giao thông
a. Giao thồn trên mặt bằng :
Giao thông theo phương ngang được đảm bảo nhờ hệ thống hành lang. Các
hành lang được thiết kế rộng 2.5 m, đảm bảo rộng rãi, đủ cho người qua lại.
Các hành lang nối với nút giao thông theo phương đứng là cầu thang bộ và cầu thang máy.
b. Giao thông theo phương đứng :
Giao thông theo phương đứng gồm 2 cầu thang bộ và 2 cầu thang máy. Cầu
thang bộ được thiết kế rộng 4.6 m. Hệ thống thang bộ được thiết kế theo kiểu
thang kép làm tang khả năng thoát người. Các hệ thống thang bộ và thang máy
được đặt ở trung tâm ngôi nhà , đảm bảo thuận tiện cho giao thông cho không gian.
2. Giải pháp thông gió chiếu sáng :
a. Giải pháp thông gió :
Thông gió là một trong những yêu cầu quan trọng trong thiết kế kiến trúc ,
nhằm đảm bảo vệ sinh,sức khỏe con người trong khi làm việc và nghỉ ngơi.
Tòa nhà sử dụng hệ thống điều hòa không khí bán trung tâm, độc lập phân tầng
có công suất lạnh đáp ứng được nhu cầu sử dụng.
Hệ thống thông gió sử dụng quạt hút gió kiểu treo tầng(treo tường) được tính
toán theo bội số trao đổi không khí phù hợp với tiêu chuẩn vệ sinh.
SVTH: Lê Anh Phương - Lớp: 59XD3 - MSSV: 2102.59 13
TRƯỜNG ĐẠI HỌC XÂY DỰNG THUYẾT MINH ĐỒ ÁN TỐT NGHIỆP
KHOA XÂY DỰNG DD & CN
Về tổng thể, toàn bộ công trình nằm trong khu đất thoáng mát, diện tích rộng rãi
đảm bảo khoảng cách vệ sinh so với các nhà khác. Do đó cũng đảm bảo yêu cầu
thông gió của công trình.
Nhìn chung, bố trí mặt bằng công trình đảm bảo thông gió và ánh sáng tự nhiên mức tối đa.
b. Giải pháp chiếu sáng :
Kết hợp cả chiếu sáng tự nhiên lẫn chiếu sáng nhân tạo .
Hệ thống chiếu sáng trong nhà được thiết kế theo tiêu chuẩn ánh sáng nhân tạo
trong công trình dân dụng (TCXD 16-1986), chiếu sáng dùng đèn huỳnh
quang,bóng compack, đảm bảo độ dọi tối thiểu các khu vực .
Hệ thống chiếu sáng được bảo vệ bằng hệ thống áp-tô-mát lắp trong các bảng
điện,điều khiển chiếu sáng bằng các công tắc lắp trên tường cạnh cửa ra vào lối
đi lại,ở những vị trí thuật lợi nhất.
3. Giải pháp cấp điện, nước và thông tin : a. Cấp điện:
Nguồn điện cung cấp cho công trình là nguồn hạ thế 380/220v được lấy từ trạm biến áp khu vực
Toàn bộ dây dẫn điện trong tòa nhà được dùng là dây lõi đồng được bọc nhựa PVC cách điện.
b. Cấp thoát nước :
Nguồn nước cấp được lấy từ mạng lưới thành phố,được chứa vào bể chửa của
tòa nhà,nước từ bể chứa theo các đường ống đứng chính, đứng nhánh và các
van khóa cung cấp cho tất cả các tầng.
Hệ thống đường ống được bố trí trong tường
THOÁT NƯỚC : hệ thống thoát nước mưa, nước thải sinh hoạt được bố trí theo
tuyến riêng,nước được thoát vào hệ thống ống đứng sau đó thoát ra ngoài nhà.
Chất thải từ các khu vực vệ sinh được thu vào hệ thống ống đứng sau đó thoát
xuống bể tự hoại.
c. Giải pháp thông tin :
Thông tin với bên ngoài được thiết kế mạng điện thoại, hệ thống truyền hình
cáp VCTV. Ngoài ra còn các hình thức thông thường như internet…..
4. Hệ thống thu gom giác :
Trong nhà cao tầng công tác vệ sinh rất được coi trọng, nhất là hệ thống thug
om rác thải bao gồm ống đổ giác được bố trí trong một phòng riêng, rác theo
ống này đi xuống ngăn chứa rác. Hàng ngày sẽ có xe rác vào lấy rác tại ngăn
chứa và chở đến bãi thu gom giác của thành phố.
5. Giải pháp phòng cháy, chữa cháy.
Phương án cứu hỏa được kết hợp giữa hệt thống cứu hỏa cơ động của thành phố
với hệ thống cứu hỏa đặt sẵn trong các tầng.
Hệ thống phòng cháy, chữa cháy được bố trí theo TCVN 2737-1995 quy định
mỗi họng chữa cháy cho mỗi điểm bên trong nhà và lượng chữa cháy mỗi họng.
SVTH: Lê Anh Phương - Lớp: 59XD3 - MSSV: 2102.59 14
TRƯỜNG ĐẠI HỌC XÂY DỰNG THUYẾT MINH ĐỒ ÁN TỐT NGHIỆP
KHOA XÂY DỰNG DD & CN
Hệ thống cấp nước chữa cháy trong nhà được tính cho một đám cháy xảy ra đồng thời
Hệ thống chữa cháy cho công trình được kết hợp giữa hệ thống chữa cháy vách
tường và hệ thống chữa cháy tự động Splinker, bao gồm : máy bơm cấp nước
chữa cháy, hệ thống đường ống, van khóa, hệ thống chữa cháy vòi phun chữa
cháy tự động, các bình chữa cháy đặt ở vách tường mỗi tường, họng chờ nối với
xe chữa cháy, bình chữa cháy xách tay(bình CO2). Bể nước chữa cháy được
dùng với bể nước sinh hoạt.
Hộp chữa cháy được lấy theo thiết kế điển hình của Bộ Xây dựng ( bao gồm :1
van khóa D50, 1 lăng phun, 1 cuộn dậy vải gai đường kình D=50 mm dài 20 m).
Tại chân các hộp cứu hỏa đặt them 4 bình bọt CO2-MF4 và một hộp nút bấm khi
có hãy báo về cho máy bơm.
6. Vấn đề thoát người của công trình khi có sự cố :
Cửa phòng cánh được mở ra bên ngoài .
Từ các phòng thoát trực tiếp ra hành lang rồi ra bộ phận thoát hiểm bằng thang
bộ và thang máy mà không qua bộ phận trung tâm nào khác .
Lối thoát nạn được coi là an toàn vì đảm bảo điều kiện sau :
Đi từ sảnh tầng 1 trực tiếp ra ngoài.
Đi từ phòng các tầng bất kì ( ngoài tầng 1) ra hành lang có lối thoát .
7. Giải pháp thiết kế chống sét và nối đất.
Khi thiết kế nhà ở cao tầng phải đặt biệt chú ý đến các giải pháp chống sét để
tránh khả năng bị sét đánh thẳng, chống cảm ứng tĩnh điện và chống điện áp cao
của sét lan truyền theo hệ thống đường dây cấp điện hạ áp trong công trình.
Khuyến khích sử dụng hệ thống chống sét tiên tiến, đảm bảo thẩm mĩ kiến trúc
và chống thấm, dột mái.
SVTH: Lê Anh Phương - Lớp: 59XD3 - MSSV: 2102.59 15
TRƯỜNG ĐẠI HỌC XÂY DỰNG THUYẾT MINH ĐỒ ÁN TỐT NGHIỆP
KHOA XÂY DỰNG DD & CN PHẦN II KẾT CẤU (45%)
-----------*------------*-------------*-------------*---------------*---------------*---------------
GIẢNG VIÊN HƯỚNG DẪN : VÕ MẠNH TÙNG
SINH VIÊN THỰC HIỆN : LÊ ANH PHƯƠNG MSSV : 2102.59 LỚP : 59XD3 NHIỆM VỤ:
Lập mặt bằng kết cấu.
Lập phương án móng,tính toán cọc,đài móng.
Tính toán khung trục 2. BẢN VẼ:
3 bản vẽ.+ KC-01 Bản vẽ bố trí thép khung trục 2.
+ KC-02 Bản vẽ thép sàn tầng điển hình.
+ KC-03 Bản vẽ thiết kế móng.
SVTH: Lê Anh Phương - Lớp: 59XD3 - MSSV: 2102.59 16
TRƯỜNG ĐẠI HỌC XÂY DỰNG THUYẾT MINH ĐỒ ÁN TỐT NGHIỆP
KHOA XÂY DỰNG DD & CN
CHƯƠNG I. LẬP MẶT BẰNG KẾT CẤU VÀ TỔ HỢP NỘI LỰC
I. LỰA CHỌN GIẢI PHÁP KẾT CẤU
Chọn vật liệu sử dụng
Chọn bê tông cấp bền B25: Rb=14.5MPa, Rbt=1.05 MPa
Chọn thép >=Ø10 dùng thép AII: Rs = Rsc=280 MPa;
Chọn thép < Ø10 dùng thép AI: Rs = Rsc=225 MPa
1. CÁC GIẢI PHÁP KẾT CẤU
1.1 Giải pháp kết cấu theo phương đứng
Hệ kết cấu của nhà nhiều tầng phải chịu lực khá phức tạp. Trước hết,tải trọng
thẳng đứng và tải trọng ngang ở các tầng dưới rất lớn, đồng thời có nhiều khả năng
xuất hiện momen xoắn tổng thể cả ngôi nhà với giá trị gió lớn và động đất. Điều đó nguy hiểm cho kết cấu.
Trong nhà nhiều tầng người ta phải bố trí một hệ thống kết cấu không gian gồm
các kết cấu phát triển theo phương đứng như khung,vách,lõi và các kết cấu phát triển
theo phương ngang là sàn các tầng. Các kết cấu này liên kết với nhau thành một hệ
không gian chống lại các lực dọc, momen uốn và momen xoắn xuất hiện trong kết cấu.
Hê ̣ kết cấu chi ̣u lực thẳng đứng có vai trò quan tro ̣ng đối với kết cấu nhà nhiều tầng bởi vì:
Chi ̣u tải tro ̣ng của dầm sàn truyền xuống móng và xuống nền đất.
Chi ̣u tải trọng ngang của gió và áp lực đất lên công trình.
Liên kết với dầm sàn ta ̣o thành hê ̣ khung cứng, giữ ổn đi ̣nh tổng thể cho công
trình, ha ̣n chế dao đô ̣ng và chuyển vi ̣ đỉnh của công trình.
Căn cứ vào sơ đồ làm việc thì kết cấu nhà cao tầng có thể phân loại như sau:
Các hệ kết cấu cơ bản: kết cấu khung,kết cấu tường chịu lực,kết cấu lõi cứng và kết cấu ống.
Các hệ kết cấu hỗn hợp: kết cấu khung giằng,kết cấu khung vách, kết cấu vách
lõi và kết cấu ống tổ hợp.
Các hệ kết cấu đặc biệt: hệ kết cấu tầng cứng,hệ kết cấu có dầm truyền,hệ kết
cấu có hệ giằng liên tầng và kết cấu có khung ghép.
Mỗi loại kết cấu trên có những ưu điểm nhược điểm riêng tùy thuộc vào nhu
cầu và khả năng thi công thực tế của từng công trình.
Hệ kết cấu khung có ưu điểm là có khả năng tạo ra những không gian lớn, linh
hoạt, có sơ đồ làm việc rõ ràng. Tuy nhiên, hệ kết cấu này có khả năng chịu tải trọng
ngang kém (khi công trình có chiều cao lớn, hay nằm trong vùng có cấp động đất lớn).
Hệ kết cấu này được sử dụng tốt cho công trình có chiều cao đến 15 tầng đối với công
SVTH: Lê Anh Phương - Lớp: 59XD3 - MSSV: 2102.59 17
TRƯỜNG ĐẠI HỌC XÂY DỰNG THUYẾT MINH ĐỒ ÁN TỐT NGHIỆP
KHOA XÂY DỰNG DD & CN
trình nằm trong vùng tính toán chống động đất cấp 7, 10 -12 tầng cho công trình nằm
trong vùng tính toán chống động đất cấp 8, và không nên áp dụng cho công trình nằm
trong vùng tính toán chống động đất cấp 9.
Hệ kết cấu khung – vách, khung – lõi chiếm ưu thế trong thiết kế nhà cao tầng
do khả năng chịu tải trong ngang khá tốt. Tuy nhiên, hệ kết cấu này đòi hỏi tiêu tốn vật
liệu nhiều hơn và thi công phức tạp hơn đối với công trình sử dụng hệ khung.
Hệ kết cấu ống tổ hợp thích hợp cho công trình siêu cao tầng do khả năng làm
việc đồng đều của kết cấu và chống chịu tải trọng ngang rất lớn.
Tuỳ thuộc vào yêu cầu kiến trúc, quy mô công trình, tính khả thi và khả năng
đảm bảo ổn đi ̣nh của công trình mà có lựa cho ̣n phù hợp cho hê ̣ kết cấu chi ̣u lực theo phương đứng.
Phương án hệ kết cấu khung lõi là kết cấu phát triển thêm từ kết cấu khung dưới
dạng tổ hợp giữa kết cấu khung và lõi cứng. Lõi cứng làm bằng bêtông cốt thép.
Chúng có thể dạng lõi kín hoặc vách hở thường bố trí tại khu vực thang máy và thang
bộ. Hệ thống khung bố trí ở các khu vực còn lại. Hai hệ thống khung và lõi được liên
kết với nhau qua hệ thống sàn. Trong trường hợp này hệ sàn liền khối có ý nghĩa rất
lớn. Thường trong hệ thống kết cấu này hệ thống lõi vách đóng vai trò chủ yếu chịu tải
trọng ngang, hệ khung chủ yếu chịu tải trọng đứng. Sự phân chia rõ chức năng này tạo
điều kiện để tối ưu hoá các cấu kiện, giảm bớt kích thước cột dầm, đáp ứng yêu cầu
kiến trúc. Trong thực tế hệ kết cấu khung-lõi tỏ ra là hệ kết cấu tối ưu cho nhiều loại
công trình cao tầng. Loại kết cấu này sử dụng hiệu quả cho các ngôi nhà đến 40 tầng.
1.2. Giải pháp kết cấu theo phương ngang
Việc lựa chọn giải pháp kết cấu sàn hợp lý là việc làm rất quan trọng, quyết
định tính kinh của công trình. Theo thống kê thì khối lượng bê tông sàn có thể chiếm
30 ÷ 40% khối lượng bê tông của công trình và trọng lượng bê tông sàn trở thành một
loại tải trọng tĩnh chính. Công trình càng cao, tải trọng này tích lũy xuống cột các tầng
dưới và móng càng lớn, làm tăng chi phí móng, cột, tăng tải trọng ngang do động đất.
Vì vậy cần ưu tiên lựa chọn giải pháp sàn nhẹ để giảm tải trọng thẳng đứng.
- Các loại kết cấu sàn đang được sử dụng rông rãi hiện nay gồm :
1.2.1. Hệ sàn sườn
Cấu tạo bao gồm hệ dầm và bản sàn.
Ưu điểm: Tính toán đơn giản
Được sử dụng phổ biến ở nước ta với các công nghệ thi công phong phú nên
thuận tiện cho việc lựa chọn công nghệ thi công.
SVTH: Lê Anh Phương - Lớp: 59XD3 - MSSV: 2102.59 18
TRƯỜNG ĐẠI HỌC XÂY DỰNG THUYẾT MINH ĐỒ ÁN TỐT NGHIỆP
KHOA XÂY DỰNG DD & CN
Bản sàn được kê lên các dầm truyền lực thông qua hệ dầm phụ,dầm chính về hệ
thống cột vách rồi truyền xuống móng,nên bản sàn mỏng tiết kiệm được vật liệu.
hợp sử dụng với các công trình: có thể sử dụng hệ thống kết cấu vách đỡ dầm
để làm giảm kích thước dầm chính, đồng thời chia thêm các dầm phụ để làm
giảm chiều dày của ô sàn.
Nhược điểm:
Chiều cao dầm và độ vỏng của bản sàn bị ảnh hưởng khi nhịp vượt khẩu độ
lớn,ảnh hưởng đến chiều cao thông thủy của phòng và làm tăng chiều cao của
toàn công trình gây bất lợn cho kết cấu công trình khi chịu tải trọng ngang.
1.2.2. Hệ sàn ô cờ
Cấu tạo gồm hệ dầm vuông góc với nhau theo hai phương,chia nhỏ ô sàn thành
các ô bản kê bốn cạnh có nhịp bé.
Ưu điểm:
Giảm bới được số lượng cột bên trong,làm tăng không gian sử dụng và có kiến
trúc đẹp, thích hợp cho các công trình yêu cầu tính thẩm mỹ cao.
Nhược điểm:
Không tiết kiệm chi phí,thi công phức tạp.
Khi nhịp lớn vẫn cần bố trí dầm chính để truyền tải trọng,do đó vẫn có những
hạn chế do chiều cao dầm chính.
1.2.3. Sàn không dầm
Cấu tạo gồm các bản sàn kê trực tiếp lên cột.
Ưu điểm:
Hạn chế được chiều cao của các dầm bo nên giảm được chiều cao công trình.
Tiết kiệm được không gian sử dụng,dễ dàng phân chia không gian.
Dễ bố trí hệ thống ME.
Việc thi công đơn giản hơn hệ kết cấu khác do hệ thống trần phẳng, ổn định.
Nhược điểm:
Hệ kết cấu sử dụng sàn với chiều dày lớn,tăng khối lượng công trình truyền
xuống móng,dẫn đến hệ kết cấu móng lớn,nên không thích hợp với các công trình nhà cao tầng.
Không tiết kiệm vật liệu,chi phí .
Sàn phải có chiều dày lớn đảm bảo đủ khả nắng chống chọc thủng tại vị trí cột.
→ Căn cứ vào yêu cầu kiến trúc, hệ kết cấu làm việc theo phương đứng và công
năng của công trình, lựa chọn giải pháp sàn sườn bê tông cốt thép toàn khối.
SVTH: Lê Anh Phương - Lớp: 59XD3 - MSSV: 2102.59 19
TRƯỜNG ĐẠI HỌC XÂY DỰNG THUYẾT MINH ĐỒ ÁN TỐT NGHIỆP
KHOA XÂY DỰNG DD & CN
Sàn bê tông cốt thép được kể trực tiếp lên hệ dầm chính trền tải trọng về hệ
thống kết cấu làm việc theo phương đứng và truyền xuống móng.
1.3. Giải pháp kết cấu móng
Do công trình là kết cấu nhà cao tầng (10 tầng ) nên tải trọng truyền xuống
móng lớn,đòi hỏi móng có độ ổn định cao. Nên lựa chọn phương án móng sâu là hợp
lý nhất để truyền tải trọng từ công trình xuống nền.
1.4. Lựa chọn giải pháp kết cấu
Kết cấu móng sâu: sử dụng phương án móng cọc ép để chịu tải trọng để truyền
tải trọng từ công trình xuống nền đất.
Kết cấu làm việc theo phương ngang: sử dụng kết cấu sàn sườn bê tông cốt thép toàn khối.
Kết cấu làm việc theo phương đứng: kết cấu khung lõi liên kết với nhau qua hệ thống sàn.
2. PHƯƠNG PHÁP TÍNH TOÁN 2.1. Sơ đồ tính
- Nhờ sự phát triển mạnh mẽ của công nghệ thông tin,việc tính toán kết cấu
công trình đã được tính toán đơn giản hơn nhờ sự hỗ trợ của máy tính điện tử. Do vậy
sự làm việc của kết cấu công trình có thể được mô hình hóa gần đúng vào chương
trình máy tính để mô tả một cách gần đúng với sự làm việc thực tế của công trình.
2.2. Các giả thuyết tính toán
- Sàn là tuyệt đói cứng trong mặt phẳng ngang
- Liên kết ngàm các phần tử cột,vách cứng ở mặt đài móng.
- Mọi thành phần hệ chịu lực trên từng tầng đều có chuyển vị ngang như nhau
- Khi tải trọng ngang tác dụng thì tải trọng tác dụng này sẽ truyền vào công
trình dưới dạng lực tập trung trên các sàn ( vị trí tâm cứng của từng tầng) vì có sàn
nên các lực này được trền sang các vách.
- Biến dạng dọc trục của sàn ,dầm được xem như không đáng kể
2.3. Phương pháp tính toán nội lực
- Theo phương pháp phần tử hữu hạn,vật thể thực liên tục được thay thế bằng
một số hữu hạn các phần tử rời rạc có hình dạng đơn giản,có kích thước càng nhỏ cang
tốt nhưng hữu hạn, chúng được nối voiaw nhau bằng một số điểm quy định gọi là nút.
Các vật thể này vẫn được giữ nguyên là các vật thể liên tục trong phạm vi của mỗi
SVTH: Lê Anh Phương - Lớp: 59XD3 - MSSV: 2102.59 20