


















Preview text:
LỜI CẢM ƠN
Người thực hiện xin cảm ơn Công ty Phương Á Lan đã tạo điều kiện cho người thực hiện
được thực tập và học hỏi trong thời gian vừa qua. Người thực hiện xin gửi lời cảm ơn đến anh Tô
Viết Lưỡng cán bộ hướng dẫn tại công ty đã tận tình chỉ bảo, giúp đỡ người thực hiện trong quá
trình làm việc, giúp người thực hiện tích lũy thêm nhiều kiến thức và kinh nghiệm thực tiễn quý báu cho bản thân.
Người thực hiện cảm ơn thầy Lưu Thanh Tùng bộ môn kỹ thuật máy xây dựng – nâng
chuyển đã giúp đỡ người thực hiện trong quá trình thực tập, giúp người thực hiện kết nối với công
ty và có được một kỳ thực tập trọn vẹn. 1 MỤC LỤC
CHƯƠNG 1: GIỚI THIỆ VỀ CÔNG TY.......................................................3
1.1. Sản xuất và lắp đặt thiết bị kỹ thuật – công nghiệp...............................3
1.2. Thi công và xây dựng công trình kỹ thuật.............................................3
1.3. Tư vấn – giám sát kỹ thuật công trình...................................................3
1.4. Thương mại – phân phối thiết bị và vật tư.............................................4
CHƯƠNG 2: CÔNG VIỆC CHÍNH TẠI CÔNG TY.....................................5
2.1. Thiết kế bản vẽ sản phẩm bằng phần mềm AutoCAD...........................5
2.2. Quan sát và hỗ trợ sửa chữa máy tiện....................................................6
2.3. Tìm hiểu hệ thống máy đóng gói và nguyên lý vận hành......................8
2.4. Thực hành tháo lắp xe nâng tay thấp....................................................9
2.5. Thực hành hàn cơ bản...........................................................................9
2.6. Lập phương án tập kết và vận chuyển máy móc....................................9
CHƯƠNG 3: BẢNG KẾ HOẠCH THEO TUẦN..........................................11
CHƯƠNG 4: KẾT LUẬN..............................................................................14
CHƯƠNG 5: PHỤ LỤC.................................................................................16 2
CHƯƠNG 1: GIỚI THIỆU VỀ CÔNG TY
Công ty trách nhiệm hữu hạn Phương Á Lan
Địa chỉ: 25 Bàu Cát 3, Phường Tân Bình, Thành phố Hồ Chí Minh
Giám đốc: Tô Viết Lưỡng
Công ty TNHH Phương Á Lan là doanh nghiệp hoạt động đa ngành trong lĩnh vực
cơ khí chế tạo, điện tự động hóa, xây lắp công trình kỹ thuật, thương mại thiết bị
công nghiệp và môi trường. Trong đó, các hoạt động chủ lực của công ty có thể
được nhóm thành các lĩnh vực sau:
1.1. Sản xuất và lắp đặt thiết bị kỹ thuật – công nghiệp
Công ty tham gia sản xuất và lắp đặt nhiều loại thiết bị kỹ thuật chuyên dụng như:
Thiết bị điện tự động, hệ thống làm lạnh, điều hòa, cấp thoát nước, xử lý
nước và chất thải rắn/lỏng/khí.
Các hệ thống điện trung - hạ thế, chiếu sáng, phòng cháy chữa cháy, thông
tin liên lạc, bảo vệ và giám sát.
Các sản phẩm cơ khí, thiết bị ngành môi trường và dây chuyền thiết bị ngành
thực phẩm, dược phẩm, xây dựng, kho lạnh
1.2. Thi công và xây dựng công trình kỹ thuật
Xây dựng các công trình dân dụng, công nghiệp.
Thực hiện san lấp mặt bằng, phá dỡ công trình.
Lắp đặt hệ thống kỹ thuật công trình như điện, nước, điều hòa, thông gió và thiết bị công nghệ.
1.3. Tư vấn – giám sát kỹ thuật công trình 3
Khảo sát địa hình và địa chất cho xây dựng.
Giám sát thi công các công trình dân dụng và công nghiệp.
Giám sát lắp đặt phần điện, thiết bị điện và thiết bị công nghệ công trình.
1.4. Thương mại – phân phối thiết bị và vật tư
Đại lý, môi giới, ký gửi hàng hóa.
Bán buôn đa dạng các nhóm hàng như:
Thiết bị điện lạnh, điện tử, máy vi tính và phần mềm, linh kiện điện thoại.
Máy móc, dây chuyền thiết bị ngành công - nông nghiệp, ngành y tế, ngành môi trường.
Sắt thép, hóa chất công nghiệp (trừ hóa chất độc hại), vật tư công nghiệp và vật liệu xây dựng. 4
CHƯƠNG 2: CÔNG VIỆC CHÍNH TẠI CÔNG TY
Trong thời gian thực tập tại Công ty TNHH Phương Á Lan, người thực hiện đã
được tạo điều kiện tiếp cận với nhiều lĩnh vực hoạt động của công ty, đặc biệt là
trong mảng cơ khí chế tạo, lắp ráp, sửa chữa thiết bị và xây dựng phương án kỹ
thuật. Nhờ đó, người thực hiện có cơ hội áp dụng những kiến thức lý thuyết đã học
tại trường vào thực tế sản xuất và kỹ thuật công trình. Cụ thể, các công việc chính
mà người thực hiện đã tham gia bao gồm:
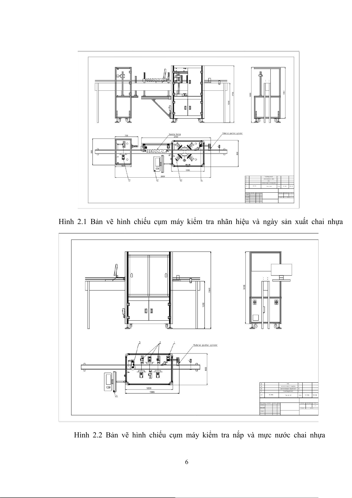
2.1. Thiết kế bản vẽ sản phẩm bằng phần mềm AutoCAD
Tuần đầu, người thực hiện được giao nhiệm vụ thiết kế mô hình các chi tiết cơ khí
bằng phần mềm AutoCAD. Công việc này bao gồm:
Phân tích yêu cầu kỹ thuật của sản phẩm.
Dựng bản vẽ 2D hình chiếu và kết cấu của sản phẩm.
Thể hiện kích thước, dung sai, ký hiệu kỹ thuật đúng chuẩn. 5
Hình 2.1 Bản vẽ hình chiếu cụm máy kiểm tra nhãn hiệu và ngày sản xuất chai nhựa
Hình 2.2 Bản vẽ hình chiếu cụm máy kiểm tra nắp và mực nước chai nhựa 6
Qua quá trình làm việc, người thực hiện đã nâng cao khả năng sử dụng phần mềm
và có thêm kinh nghiệm trong việc đọc, hiểu và triển khai bản vẽ kỹ thuật phục vụ sản xuất.
2.2. Quan sát và hỗ trợ sửa chữa máy tiện
Tại xưởng cơ khí của công ty, người thực hiện được trực tiếp quan sát và tham gia
hỗ trợ công tác sửa chữa máy tiện cơ khí. Quá trình này giúp người thực hiện nắm
rõ hơn về cấu tạo, nguyên lý hoạt động của máy tiện cũng như nhận diện các lỗi
thường gặp trong quá trình vận hành. Dưới sự hướng dẫn của kỹ thuật viên, người
thực hiện thực hiện các bước kiểm tra bộ phận cơ khí, mạch điện đơn giản và tiến
hành thay thế một số linh kiện hỏng hóc cơ bản. Mặc dù ban đầu gặp nhiều khó
khăn do chưa có kinh nghiệm thực tế, nhưng sau một thời gian thực hành, người
thực hiện đã có thể tự tin thực hiện một số thao tác kiểm tra và khắc phục các lỗi thông thường.
Hình 2.3 Máy tiện tại xưởng 7
Hình 2.4 Sơ đồ mạch điện máy tiện
2.3. Tìm hiểu hệ thống máy đóng gói và nguyên lý vận hành
Thông qua việc quan sát và phân tích nguyên lý hoạt động của các dòng máy đóng
gói mà công ty đang sản xuất, người thực hiện đã nắm được quy trình vận hành cơ
bản của hệ thống này, bao gồm các bước: cấp liệu và đóng gói sản phẩm.
Người thực hiện cũng hiểu thêm về vai trò của cảm biến, bộ điều khiển và cơ cấu
truyền động trong hệ thống đóng gói tự động. 8
Hình 2.5 Máy đóng gói thùng hàng
Hình 2.6 Máy đóng gói hàng hoá
2.4. Thực hành tháo lắp xe nâng tay thấp
Người thực hiện được giao nhiệm vụ tháo rời, kiểm tra và lắp ráp lại một số bộ phận
của xe nâng tay thấp, như pittông thủy lực, bánh xe, cụm điều khiển... Qua đó,
người thực hiện hiểu rõ hơn về nguyên lý hoạt động của thiết bị, quy trình bảo
dưỡng, và kỹ năng sử dụng dụng cụ tháo lắp đúng kỹ thuật.
2.5. Thực hành hàn cơ bản 9
Trong thời gian thực tập tại xưởng, người thực hiện cũng được tiếp xúc với công
việc hàn điện hồ quang. Người thực hiện học cách chuẩn bị mối hàn, điều chỉnh
dòng điện phù hợp và thực hành hàn các chi tiết đơn giản. Công việc này giúp
người thực hiện cải thiện kỹ năng thực hành và tăng sự hiểu biết về các công nghệ
hàn thông dụng trong ngành cơ khí.
2.6. Lập phương án tập kết và vận chuyển máy móc
Một trong những nhiệm vụ quan trọng mà người thực hiện được giao trong quá
trình thực tập là xây dựng phương án tập kết máy móc từ kho đến nhà máy. Công
việc này bao gồm các bước: khảo sát thực địa, xác định khối lượng và chủng loại
thiết bị cần vận chuyển, lựa chọn phương tiện phù hợp (xe container 40 feet, xe
nâng…), bố trí sơ đồ tập kết và trình bày phương án dưới dạng văn bản kèm sơ đồ
kỹ thuật. Trong giai đoạn đầu, do chưa quen với quy trình lập phương án và thiếu
kinh nghiệm thực tế nên việc triển khai còn gặp nhiều khó khăn. Tuy nhiên, sau
nhiều lần thực hành và tiếp thu ý kiến góp ý, người thực hiện đã nắm vững cách xây
dựng và trình bày một phương án tập kết đảm bảo tính khoa học, an toàn và hiệu quả.
Chi tiết phương án tập kết được trình bày tại Phụ lục 1.
Hình 2.7 Máy kiểm tra cân nặng 10
Hình 2.8 Cụm máy kiểm tra chai nhựa cần vận chuyển Tổng kết: 0
Các công việc mà người thực hiện được tiếp cận trong suốt thời gian thực tập đều
mang tính thực tiễn cao, giúp người thực hiện rèn luyện kỹ năng chuyên môn, củng
cố kiến thức đã học, đồng thời làm quen với tác phong làm việc tại doanh nghiệp.
Những trải nghiệm quý báu này sẽ là hành trang quan trọng để người thực hiện tiếp
tục học tập và phát triển trong lĩnh vực kỹ thuật cơ khí trong tương lai.
CHƯƠNG 3: BẢNG KẾ HOẠCH THEO TUẦN
Bảng 3.1: Bảng kế hoạch làm việc theo tuần Tuần
Công việc đã thực hiện Khó khăn gặp phải
Lợi thế đã học được Tuần 1
- Làm quen môi trường - Chưa nắm rõ các - Làm quen được với
công ty, được giới thiệu quy trình kỹ thuật cách thức tổ chức
về cơ cấu tổ chức, lĩnh và các yêu cầu thực sản xuất tại doanh 11 vực hoạt động và các tế tại xưởng. nghiệp, nắm bắt vai
quy trình sản xuất chính.
trò của kỹ sư thiết kế trong quy trình sản - Được tiếp cận công xuất.
việc thiết kế bằng phần mềm AutoCAD. Tuần 2 - Nghiên cứu và lập - Chưa biết cách - Biết cách tiếp cận
phương án thiết kế tời bắt đầu một một bài toán kỹ
nâng. Phân tích nguyên phương án thiết kế thuật từ yêu cầu thực
lý hoạt động, tải trọng, hoàn chỉnh, thiếu tế.
cơ cấu nâng và sơ đồ bố kinh nghiệm tính - Hiểu rõ hơn về trí thiết bị.
toán và chọn thiết thiết bị tời nâng và bị phù hợp. - Học cách trình bày các yếu tố cần quan phương án kỹ thuật sơ tâm khi thiết kế. bộ. Tuần 3
- Thiết kế bản vẽ chi tiết
- Chưa thành thạo - Biết cách sử dụng của tời nâng bằng phần mềm AutoCAD thành AutoCAD.
AutoCAD, gặp khó thạo hơn. khăn trong việc - Bắt đầu quan sát và - Có kiến thức cơ trình bày đúng quy tham gia sửa chữa máy bản về cấu tạo và chuẩn bản vẽ kỹ
tiện tại xưởng sản xuất. cách kiểm tra lỗi ở thuật. máy tiện. - Chưa biết quy trình sửa máy tiện. Tuần 4
- Hoàn thiện các bản vẽ - Cần nhiều thời - Nâng cao kỹ năng
kỹ thuật, chỉnh sửa theo gian để chỉnh sửa trình bày bản vẽ kỹ
góp ý từ kỹ sư hướng bản vẽ do chưa thuật đúng chuẩn. 12 dẫn. hiểu hết các ký - Học được tác hiệu kỹ thuật và phong làm việc tỉ
- Tham gia thực tế một quy định bản vẽ mỉ, chính xác khi
số công đoạn lắp ráp tại công nghiệp. tiếp xúc với sản xưởng. phẩm thực tế. Tuần 5
- Lập phương án tập kết -Không biết bắt - Biết cách lên
thiết bị từ kho đến nhà đầu từ đâu để xây khung phương án sơ máy.
dựng một phương bộ, nắm được quy án vận chuyển trình kiểm tra một số
- Học cách khảo sát mặt hoàn chỉnh. lỗi cơ bản trên máy
bằng, xác định đường đi, tiện.
lựa chọn thiết bị vận - Thiếu kinh chuyển. nghiệm kiểm tra và sửa lỗi hệ thống cơ
- Tiếp tục sửa chữa máy điện. tiện. Tuần 6
- Phối hợp với kỹ thuật - Không có mẫu - Biết cách lập
để khảo sát hiện trường phương án để tham phương án thực tế
và hoàn thiện phương án khảo, dẫn đến việc dựa trên dữ liệu tập kết.
diễn giải còn lúng khảo sát. túng.
- Học cách bố trí vị trí - Hiểu rõ vai trò của
đặt máy, đánh giá thiết từng thiết bị trong bị hỗ trợ phù hợp. quá trình di chuyển máy móc. Tuần 7
- Hoàn thiện bản trình- Chưa nắm rõ cách - Biết cách viết
bày phương án tập kết. trình bày một thuyết minh phương
phương án chuyên án hợp lý, trình bày
- Viết thuyết minh, vẽ sơnghiệp. logic.
đồ, phân tích các yếu tố 13 an toàn và tiến độ.
- Còn thiếu kinh - Cải thiện khả năng nghiệm diễn đạt
lập kế hoạch thực tế bằng văn bản kỹ cho việc di chuyển thuật. thiết bị. Tuần 8
- Tổng hợp toàn bộ nội - Việc chọn lọc và - Biết cách tổng hợp,
dung thực tập, chỉnh sửa trình bày nội dung đánh giá và viết báo
bản vẽ, phương án và phù hợp trong báo cáo khoa học. viết báo cáo. cáo gặp khó khăn do khối lượng công
- Chuẩn bị tài liệu nộp việc thực hiện khá cho công ty và nhà đa dạng. trường. 14
CHƯƠNG 4: KẾT LUẬN
Sau thời gian thực tập tại Công ty TNHH Phương Á Lan, người thực hiện đã có cơ
hội tiếp cận môi trường làm việc thực tế và tích lũy được nhiều kiến thức, kỹ năng
quan trọng để bổ trợ cho quá trình học tập và phát triển nghề nghiệp trong tương lai.
Qua quá trình tham gia thiết kế, sửa chữa, lắp ráp thiết bị và xây dựng phương án kỹ
thuật, người thực hiện đã rút ra được một số bài học như sau:
Những điều đã học được:
Về chuyên môn kỹ thuật: Người thực hiện đã được củng cố và mở rộng kiến
thức chuyên ngành cơ khí thông qua các công việc thực tế như: thiết kế bản
vẽ bằng phần mềm AutoCAD, sửa chữa máy tiện, quan sát hệ thống đóng
gói, thực hành hàn và tháo lắp xe nâng. Những công việc này giúp người
thực hiện hiểu rõ hơn về nguyên lý vận hành thiết bị, quy trình bảo trì, cũng
như cách thức tổ chức sản xuất trong môi trường công nghiệp.
Về tư duy tổ chức và lập kế hoạch: Thông qua việc xây dựng phương án tập
kết máy móc, người thực hiện đã học được cách tiếp cận bài toán kỹ thuật từ
góc độ tổng thể – từ khảo sát thực tế, lên kế hoạch, lựa chọn phương tiện và
thiết bị phù hợp, cho đến trình bày phương án một cách logic và rõ ràng. Đây
là kỹ năng cần thiết cho một kỹ sư khi bước vào làm việc trong các dự án thực tế.
Về kỹ năng mềm: Quá trình làm việc với các anh/chị trong công ty giúp
người thực hiện cải thiện kỹ năng giao tiếp, làm việc nhóm, tiếp thu ý kiến
và phối hợp với các bộ phận khác nhau để hoàn thành công việc được giao.
Các vấn đề cần cải tiến:
Kiến thức nền tảng cần bổ sung: Người thực hiện nhận thấy kiến thức về
điện điều khiển, thủy lực và khí nén của bản thân vẫn còn hạn chế, đặc biệt 15
khi tiếp cận các hệ thống máy móc tự động như máy đóng gói hay xe nâng.
Người thực hiện cần chủ động tìm hiểu và học thêm để hiểu sâu hơn về các lĩnh vực này.
Kỹ năng thực hành và xử lý tình huống: Một số thao tác kỹ thuật như kiểm
tra mạch điện, hàn chi tiết hoặc xử lý lỗi máy còn lúng túng do thiếu kinh
nghiệm. Người thực hiện cần thực hành nhiều hơn trong các buổi học tại
trường và tham gia các buổi workshop, mô phỏng kỹ thuật để cải thiện khả
năng xử lý tình huống thực tế.
Trình bày và lập tài liệu kỹ thuật: Trong thời gian đầu, người thực hiện còn
gặp khó khăn khi trình bày phương án kỹ thuật, đặc biệt là việc sử dụng ngôn
ngữ chuyên ngành và bố cục logic trong báo cáo. Đây là điểm người thực
hiện sẽ tiếp tục rèn luyện trong các học kỳ tiếp theo. Tổng kết::
Thực tập tại Công ty TNHH Phương Á Lan là một trải nghiệm quý báu, giúp người
thực hiện rút ngắn khoảng cách giữa lý thuyết và thực tế. Người thực hiện chân
thành cảm ơn công ty và các anh kỹ sư đã tạo điều kiện cho người thực hiện học hỏi
trong suốt thời gian qua. Người thực hiện sẽ nỗ lực hơn nữa để hoàn thiện kỹ năng
chuyên môn và trở thành một kỹ sư có năng lực, đáp ứng yêu cầu ngày càng cao của ngành công nghiệp. 16
CHƯƠNG 5: PHỤ LỤC
Phụ lục 1: Phương án tập kết
SƠ ĐỒ KHỐI QUY TRÌNH THỰC HIỆN Kiểm tra Quy và Danh Phương chuẩn trình bị sách án lắp tại nhận và kho dỡ thiết bị đặt hàng
I. KIỂM TRA VÀ CHUẨN BỊ TẠI KHO
1. Kiểm tra hồ sơ – chứng từ
2. Kiểm tra tình trạng thiết bị và đóng gói
3. Chuẩn bị vật tư và phụ kiện đi kèm
4. Chuẩn bị phương tiện và thiết bị nâng hạ
5. Đánh dấu và dán nhãn nhận diện 6. Thông báo và bàn giao 17
II. QUY TRÌNH NHẬN VÀ DỠ HÀNG
1. Nhận thông báo & chuẩn bị tiếp nhận
2. Xe container đến cổng nhà máy
3. Mở cửa container và kiểm tra sơ bộ
4. Dỡ hàng bằng xe nâng hoặc cẩu
5. Kiểm đếm và đối chiếu thực tế
6. Tập kết tạm thiết bị tại khu vực chờ lắp đặt
7. Hoàn tất và lưu hồ sơ
III. DANH SÁCH THIẾT BỊ
Bảng PL1.1: Danh sách thiết bị vận chuyển Số STT Thiết bị Model
Thông số kỹ thuật chính lượng
- Năng suất: 16,000 chai/giờ
Hệ thống camera kiểm tra WL- - Độ chính xác: 99.9% 1 02 bộ mức nước & nắp chai
- Sai số mức nước: ±2mm LLC18K-4C
- Kiểm tra: nắp lệch ±1.5mm, màu sai, thiếu vòng
- Năng suất: 16,000 chai/giờ
Hệ thống camera kiểm tra WL- - Độ chính xác: 99.9% 2 nhãn và ngày in 02 bộ LLC18K-5C
- Kiểm tra: mất nhãn, nhăn,
rách ≥2mm, ngày in sai/mờ - Nguồn vào: 220V/50Hz, 2 pha
Tủ điều khiển điện cho hệ 3 - 02 bộ - Điều khiển qua HMI thống camera
- Lưu ảnh lỗi, xuất báo cáo Excel
- Chiều cao làm việc: H = 1100
Giá đỡ, chân máy điều chỉnh ± 100 mm 4 - 04 bộ độ cao
- Băng tải đi xuyên máy, B = 200 mm
- Dây điện tiêu chuẩn công
Phụ kiện đi kèm (dây điện, Theo nghiệp 5 -
dây tín hiệu, ống khí, van...) bộ - Ống khí PU 8mm – 10mm
- Van điều áp, bộ tách nước 18
IV. PHƯƠNG ÁN LẮP ĐẶT
Bước 1: Đưa thiết bị vào vị trí
Bước 2: Lắp đặt tủ điều khiển
Bước 3: Kiểm tra và chạy thử 19