



















Preview text:
lOMoAR cPSD| 40551442 Đề số: 1
Họ và tên sinh viên 1: .................................................... Lớp: ..................
Họ và tên sinh viên 2: .................................................... Lớp: ..................
Giảng viên hướng dẫn : ............................................................................................ NỘI DUNG
THIẾT KẾ HỆ DẪN ĐỘNG BĂNG TẢI
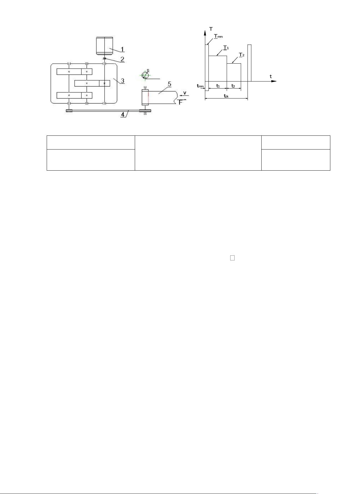
Loại hộp: Hộp giảm tốc phân đôi cấp chậm T mm = . . . . . .T 1 T 2 = . . . . . .T 1 t 1 = . . . . …s t 2 = . . . . . ..s t ck = . . . . …s 1. Động cơ 4. Bộ truyền xích 3. Hộp giảm tốc 5. Băng tải làm 2. Nối trục đàn hồi
(1 cấp thẳng – 1 cấp nghiêng) việc 1 chiều
Các số liệu cho trước: 1. Lực kéo băng tải: F = …………….. N 2. Vận tốc băng tải: v = …………….. m/s 3. Đường kính tang: D = …………….. mm 4. Thời hạn phục vụ: lh = …………….. giờ 5. Số ca làm việc: ……. ca
6. Góc nghiêng đường nối tâm bộ truyền ngoài: = ………… độ 7. Đặc tính làm việc: □ Êm □ Va đập nhẹ □ Va đập vừa
Yêu cầu thực hiện I. Phần thuyết minh:
Trình bầy đầy đủ các nội dung tính toán thiết kế, bao gồm: lOMoAR cPSD| 40551442
TRƯỜNG ĐẠI HỌC KINH TẾ - KỸ THUẬT CÔNG NGHIỆP KHOA CƠ KHÍ
ĐỒ ÁN I - CHI TIẾT MÁY -
CHƯƠNG 1: TÍNH TOÁN CHỌN ĐỘNG CƠ ĐIỆN, PHÂN PHỐI TỶ
SỐ TRUYỀN VÀ MÔ MEN XOẮN TRÊN CÁC TRỤC -
CHƯƠNG 2: TÍNH TOÁN BỘ TRUYỀN NGOÀI (bộ truyền đai hoặc xích) -
CHƯƠNG 3: TÍNH TOÁN THIẾT KẾ BỘ TRUYỀN BÁNH RĂNG -
CHƯƠNG 4: TÍNH TOÁN THIẾT KẾ TRỤC - CHƯƠNG 5: TÍNH TOÁN
CHỌN Ổ ĐỠ TRỤC, THEN, KHỚP NỐI, CÁC CHI
TIẾT KHÁC VÀ BÔI TRƠN HỘP GIẢM TỐC - CHƯƠNG 6: TÍNH
TOÁN THIẾT KẾ KẾT CẤU HỘP II. Phần bản vẽ: TT Tên bản vẽ
Khổ giấy Số lượng 1
Bản vẽ lắp 2D hộp giảm tốc A0 1 2
Bản vẽ chế tạo chi tiết: 1 trục hoặc 1 bánh răng A3 1 Ngày giao đề: Ngày hoàn thành:
Hà Nội, ngày tháng năm
GIẢNG VIÊN HƯỚNG DẪN Đề số: 2
Họ và tên sinh viên 1: .................................................... Lớp: ..................
Họ và tên sinh viên 2: .................................................... Lớp: ..................
Giảng viên hướng dẫn : ............................................................................................ NỘI DUNG
THIẾT KẾ HỆ DẪN ĐỘNG BĂNG TẢI
Loại hộp: Hộp giảm tốc phân đôi cấp chậm lOMoAR cPSD| 40551442 T mm = . . . . . .T 1 T 2 = . . . . . .T 1 t 1 = . . . . …s t 2 = . . . . . ..s t ck = . . . . …s 1. Động cơ 4. Bộ truyền đai 3. Hộp giảm tốc
(1 cấp thẳng – 1 cấp nghiêng) 5. Băng tải làm 2. Nối trục đàn hồi việc 1 chiều
Các số liệu cho trước: 1. Lực kéo băng tải: F = …………….. N 2. Vận tốc băng tải: v = …………….. m/s 3. Đường kính tang: D = …………….. mm 4. Thời hạn phục vụ: lh = …………….. giờ 5. Số ca làm việc: ……. ca
6. Góc nghiêng đường nối tâm bộ truyền ngoài: = ………… độ 7. Đặc tính làm việc: □ Êm □ Va đập nhẹ □ Va đập vừa lOMoAR cPSD| 40551442
TRƯỜNG ĐẠI HỌC KINH TẾ - KỸ THUẬT CÔNG NGHIỆP KHOA CƠ KHÍ
ĐỒ ÁN I - CHI TIẾT MÁY -
CHƯƠNG 1: TÍNH TOÁN CHỌN ĐỘNG CƠ ĐIỆN, PHÂN PHỐI TỶ
SỐ TRUYỀN VÀ MÔ MEN XOẮN TRÊN CÁC TRỤC -
CHƯƠNG 2: TÍNH TOÁN BỘ TRUYỀN NGOÀI (bộ truyền đai hoặc xích) -
CHƯƠNG 3: TÍNH TOÁN THIẾT KẾ BỘ TRUYỀN BÁNH RĂNG -
CHƯƠNG 4: TÍNH TOÁN THIẾT KẾ TRỤC - CHƯƠNG 5: TÍNH TOÁN
CHỌN Ổ ĐỠ TRỤC, THEN, KHỚP NỐI, CÁC CHI
TIẾT KHÁC VÀ BÔI TRƠN HỘP GIẢM TỐC - CHƯƠNG 6: TÍNH
TOÁN THIẾT KẾ KẾT CẤU HỘP II. Phần bản vẽ: TT Tên bản vẽ
Khổ giấy Số lượng 1
Bản vẽ lắp 2D hộp giảm tốc A0 1 2
Bản vẽ chế tạo chi tiết: 1 trục hoặc 1 bánh răng A3 1 Ngày giao đề: Ngày hoàn thành:
Hà Nội, ngày tháng năm
GIẢNG VIÊN HƯỚNG DẪN Đề số: 3
Họ và tên sinh viên 1: .................................................... Lớp: ..................
Họ và tên sinh viên 2: .................................................... Lớp: ..................
Giảng viên hướng dẫn : ............................................................................................ NỘI DUNG
THIẾT KẾ HỆ DẪN ĐỘNG BĂNG TẢI
Loại hộp: Hộp giảm tốc phân đôi cấp nhanh lOMoAR cPSD| 40551442
Yêu cầu thực hiện
I. Phần thuyết minh:
Trình bầy đầy đủ các nội dung tính toán thiết kế, bao gồm: T mm = . . . . . .T 1 T 2 = . . . . . .T 1 t 1 = . . . . …s t 2 = . . . . . ..s t ck = . . . . …s 1. Động cơ 4. Bộ truyền xích 3. Hộp giảm tốc 2. Nối trục đàn hồi
(1 cấp thẳng – 1 cấp nghiêng) 5. Băng tải làm việc 1 chiều
Các số liệu cho trước: 1. Lực kéo băng tải: F = …………….. N 2. Vận tốc băng tải: v = …………….. m/s 3. Đường kính tang: D = …………….. mm 4. Thời hạn phục vụ: lh = …………….. giờ 5. Số ca làm việc: ……. ca
6. Góc nghiêng đường nối tâm bộ truyền ngoài: = ………… độ 7. Đặc tính làm việc: □ Êm □ Va đập nhẹ □ Va đập vừa -
CHƯƠNG 1: TÍNH TOÁN CHỌN ĐỘNG CƠ ĐIỆN, PHÂN PHỐI TỶ
SỐ TRUYỀN VÀ MÔ MEN XOẮN TRÊN CÁC TRỤC -
CHƯƠNG 2: TÍNH TOÁN BỘ TRUYỀN NGOÀI (bộ truyền đai hoặc xích) -
CHƯƠNG 3: TÍNH TOÁN THIẾT KẾ BỘ TRUYỀN BÁNH RĂNG -
CHƯƠNG 4: TÍNH TOÁN THIẾT KẾ TRỤC - CHƯƠNG 5: TÍNH TOÁN
CHỌN Ổ ĐỠ TRỤC, THEN, KHỚP NỐI, CÁC CHI
TIẾT KHÁC VÀ BÔI TRƠN HỘP GIẢM TỐC - CHƯƠNG 6: TÍNH
TOÁN THIẾT KẾ KẾT CẤU HỘP II. Phần bản vẽ: TT Tên bản vẽ
Khổ giấy Số lượng lOMoAR cPSD| 40551442
TRƯỜNG ĐẠI HỌC KINH TẾ - KỸ THUẬT CÔNG NGHIỆP KHOA CƠ KHÍ
ĐỒ ÁN I - CHI TIẾT MÁY 1
Bản vẽ lắp 2D hộp giảm tốc A0 1 2
Bản vẽ chế tạo chi tiết: 1 trục hoặc 1 bánh răng A3 1 Ngày giao đề: Ngày hoàn thành:
Hà Nội, ngày tháng năm
GIẢNG VIÊN HƯỚNG DẪN Đề số: 4
Họ và tên sinh viên 1: .................................................... Lớp: ..................
Họ và tên sinh viên 2: .................................................... Lớp: ..................
Giảng viên hướng dẫn : ............................................................................................ NỘI DUNG
THIẾT KẾ HỆ DẪN ĐỘNG BĂNG TẢI
Loại hộp: Hộp giảm tốc phân đôi cấp nhanh T mm = . . . . . .T 1 T 2 = . . . . . .T 1 t 1 = . . . . …s t 2 = . . . . . ..s t ck = . . . . …s 1. Động cơ 4. Bộ truyền đai 3. Hộp giảm tốc 5. Băng tải làm 2. Nối trục đàn hồi
(1 cấp thẳng – 1 cấp nghiêng) việc 1 chiều
Các số liệu cho trước: 1. Lực kéo băng tải: F = …………….. N 2. Vận tốc băng tải: v = …………….. m/s lOMoAR cPSD| 40551442
Yêu cầu thực hiện
I. Phần thuyết minh:
Trình bầy đầy đủ các nội dung tính toán thiết kế, bao gồm: 3. Đường kính tang: D = …………….. mm 4. Thời hạn phục vụ: lh = …………….. giờ 5. Số ca làm việc: ……. ca
6. Góc nghiêng đường nối tâm bộ truyền ngoài: = ………… độ 7. Đặc tính làm việc: □ Êm □ Va đập nhẹ □ Va đập vừa -
CHƯƠNG 1: TÍNH TOÁN CHỌN ĐỘNG CƠ ĐIỆN, PHÂN PHỐI TỶ
SỐ TRUYỀN VÀ MÔ MEN XOẮN TRÊN CÁC TRỤC -
CHƯƠNG 2: TÍNH TOÁN BỘ TRUYỀN NGOÀI (bộ truyền đai hoặc xích) -
CHƯƠNG 3: TÍNH TOÁN THIẾT KẾ BỘ TRUYỀN BÁNH RĂNG -
CHƯƠNG 4: TÍNH TOÁN THIẾT KẾ TRỤC - CHƯƠNG 5: TÍNH TOÁN
CHỌN Ổ ĐỠ TRỤC, THEN, KHỚP NỐI, CÁC CHI
TIẾT KHÁC VÀ BÔI TRƠN HỘP GIẢM TỐC - CHƯƠNG 6: TÍNH
TOÁN THIẾT KẾ KẾT CẤU HỘP II. Phần bản vẽ: TT Tên bản vẽ
Khổ giấy Số lượng 1
Bản vẽ lắp 2D hộp giảm tốc A0 1 2
Bản vẽ chế tạo chi tiết: 1 trục hoặc 1 bánh răng A3 1 Ngày giao đề: Ngày hoàn thành:
Hà Nội, ngày tháng năm
GIẢNG VIÊN HƯỚNG DẪN Đề số: 5
Họ và tên sinh viên 1: .................................................... Lớp: ..................
Họ và tên sinh viên 2: .................................................... Lớp: .................. lOMoAR cPSD| 40551442
TRƯỜNG ĐẠI HỌC KINH TẾ - KỸ THUẬT CÔNG NGHIỆP KHOA CƠ KHÍ
ĐỒ ÁN I - CHI TIẾT MÁY
Giảng viên hướng dẫn : ............................................................................................ NỘI DUNG
THIẾT KẾ HỆ DẪN ĐỘNG BĂNG TẢI
Loại hộp: Hộp giảm tốc khai triển T mm = . . . . . .T 1 T 2 = . . . . . .T 1 t 1 = . . . . …s t 2 = . . . . . ..s t ck = . . . . …s 1. Động cơ 4. Bộ truyền xích 3. Hộp giảm tốc 5. Băng tải làm 2. Nối trục đàn hồi
(1 cấp thẳng – 1 cấp nghiêng) việc 1 chiều
Các số liệu cho trước: 1. Lực kéo băng tải: F = …………….. N 2. Vận tốc băng tải: v = …………….. m/s 3. Đường kính tang: D = …………….. mm 4. Thời hạn phục vụ: lh = …………….. giờ 5. Số ca làm việc: ……. ca
6. Góc nghiêng đường nối tâm bộ truyền ngoài: = ………… độ 7. Đặc tính làm việc: □ Êm □ Va đập nhẹ □ Va đập vừa lOMoAR cPSD| 40551442
Yêu cầu thực hiện I. Phần thuyết minh:
Trình bầy đầy đủ các nội dung tính toán thiết kế, bao gồm: -
CHƯƠNG 1: TÍNH TOÁN CHỌN ĐỘNG CƠ ĐIỆN, PHÂN PHỐI TỶ
SỐ TRUYỀN VÀ MÔ MEN XOẮN TRÊN CÁC TRỤC -
CHƯƠNG 2: TÍNH TOÁN BỘ TRUYỀN NGOÀI (bộ truyền đai hoặc xích) -
CHƯƠNG 3: TÍNH TOÁN THIẾT KẾ BỘ TRUYỀN BÁNH RĂNG -
CHƯƠNG 4: TÍNH TOÁN THIẾT KẾ TRỤC - CHƯƠNG 5: TÍNH TOÁN
CHỌN Ổ ĐỠ TRỤC, THEN, KHỚP NỐI, CÁC CHI
TIẾT KHÁC VÀ BÔI TRƠN HỘP GIẢM TỐC - CHƯƠNG 6: TÍNH
TOÁN THIẾT KẾ KẾT CẤU HỘP II. Phần bản vẽ: TT Tên bản vẽ
Khổ giấy Số lượng 1
Bản vẽ lắp 2D hộp giảm tốc A0 1 2
Bản vẽ chế tạo chi tiết: 1 trục hoặc 1 bánh răng A3 1 Ngày giao đề: Ngày hoàn thành:
Hà Nội, ngày tháng năm
GIẢNG VIÊN HƯỚNG DẪN Đề số: 6
Họ và tên sinh viên 1: .................................................... Lớp: ..................
Họ và tên sinh viên 2: .................................................... Lớp: ..................
Giảng viên hướng dẫn : ............................................................................................ NỘI DUNG
THIẾT KẾ HỆ DẪN ĐỘNG BĂNG TẢI
Loại hộp: Hộp giảm tốc khai triển lOMoAR cPSD| 40551442
TRƯỜNG ĐẠI HỌC KINH TẾ - KỸ THUẬT CÔNG NGHIỆP KHOA CƠ KHÍ
ĐỒ ÁN I - CHI TIẾT MÁY T mm = . . . . . .T 1 T 2 = . . . . . .T 1 t 1 = . . . . …s t 2 = . . . . . ..s t ck = . . . . …s 1. Động cơ 4. Bộ truyền đai 3. Hộp giảm tốc 5. Băng tải làm 2. Nối trục đàn hồi
(1 cấp thẳng – 1 cấp nghiêng) việc 1 chiều
Các số liệu cho trước: 1. Lực kéo băng tải: F = …………….. N 2. Vận tốc băng tải: v = …………….. m/s 3. Đường kính tang: D = …………….. mm 4. Thời hạn phục vụ: lh = …………….. giờ 5. Số ca làm việc: ……. ca
6. Góc nghiêng đường nối tâm bộ truyền ngoài: = ………… độ 7. Đặc tính làm việc: □ Êm □ Va đập nhẹ □ Va đập vừa
Yêu cầu thực hiện I. Phần thuyết minh:
Trình bầy đầy đủ các nội dung tính toán thiết kế, bao gồm: -
CHƯƠNG 1: TÍNH TOÁN CHỌN ĐỘNG CƠ ĐIỆN, PHÂN PHỐI TỶ
SỐ TRUYỀN VÀ MÔ MEN XOẮN TRÊN CÁC TRỤC -
CHƯƠNG 2: TÍNH TOÁN BỘ TRUYỀN NGOÀI (bộ truyền đai hoặc xích) -
CHƯƠNG 3: TÍNH TOÁN THIẾT KẾ BỘ TRUYỀN BÁNH RĂNG -
CHƯƠNG 4: TÍNH TOÁN THIẾT KẾ TRỤC - CHƯƠNG 5: TÍNH TOÁN
CHỌN Ổ ĐỠ TRỤC, THEN, KHỚP NỐI, CÁC CHI
TIẾT KHÁC VÀ BÔI TRƠN HỘP GIẢM TỐC - CHƯƠNG 6: TÍNH
TOÁN THIẾT KẾ KẾT CẤU HỘP II. Phần bản vẽ: lOMoAR cPSD| 40551442 TT Tên bản vẽ
Khổ giấy Số lượng 1
Bản vẽ lắp 2D hộp giảm tốc A0 1 2
Bản vẽ chế tạo chi tiết: 1 trục hoặc 1 bánh răng A3 1 Ngày giao đề: Ngày hoàn thành:
Hà Nội, ngày tháng năm
GIẢNG VIÊN HƯỚNG DẪN Đề số: 7
Họ và tên sinh viên 1: .................................................... Lớp: ..................
Họ và tên sinh viên 2: .................................................... Lớp: ..................
Giảng viên hướng dẫn : ............................................................................................ NỘI DUNG
THIẾT KẾ HỆ DẪN ĐỘNG BĂNG TẢI
Loại hộp: Hộp giảm tốc đồng trục T mm = . . . . . .T 1 T 2 = . . . . . .T 1 t 1 = . . . . …s t 2 = . . . . . ..s t ck = . . . . …s 1. Động cơ 4. Bộ truyền xích 3. Hộp giảm tốc 5. Băng tải làm 2. Nối trục đàn hồi
(1 cấp thẳng – 1 cấp nghiêng) việc 1 chiều
Các số liệu cho trước: 1. Lực kéo băng tải: F = …………….. N lOMoAR cPSD| 40551442
TRƯỜNG ĐẠI HỌC KINH TẾ - KỸ THUẬT CÔNG NGHIỆP KHOA CƠ KHÍ
ĐỒ ÁN I - CHI TIẾT MÁY 2. Vận tốc băng tải: v = …………….. m/s 3. Đường kính tang: D = …………….. mm 4. Thời hạn phục vụ: lh = …………….. giờ 5. Số ca làm việc: ……. ca
6. Góc nghiêng đường nối tâm bộ truyền ngoài: = ………… độ 7. Đặc tính làm việc: □ Êm □ Va đập nhẹ □ Va đập vừa
Yêu cầu thực hiện I. Phần thuyết minh:
Trình bầy đầy đủ các nội dung tính toán thiết kế, bao gồm: -
CHƯƠNG 1: TÍNH TOÁN CHỌN ĐỘNG CƠ ĐIỆN, PHÂN PHỐI TỶ
SỐ TRUYỀN VÀ MÔ MEN XOẮN TRÊN CÁC TRỤC -
CHƯƠNG 2: TÍNH TOÁN BỘ TRUYỀN NGOÀI (bộ truyền đai hoặc xích) -
CHƯƠNG 3: TÍNH TOÁN THIẾT KẾ BỘ TRUYỀN BÁNH RĂNG -
CHƯƠNG 4: TÍNH TOÁN THIẾT KẾ TRỤC - CHƯƠNG 5: TÍNH TOÁN
CHỌN Ổ ĐỠ TRỤC, THEN, KHỚP NỐI, CÁC CHI
TIẾT KHÁC VÀ BÔI TRƠN HỘP GIẢM TỐC - CHƯƠNG 6: TÍNH
TOÁN THIẾT KẾ KẾT CẤU HỘP II. Phần bản vẽ: TT Tên bản vẽ
Khổ giấy Số lượng 1
Bản vẽ lắp 2D hộp giảm tốc A0 1 2
Bản vẽ chế tạo chi tiết: 1 trục hoặc 1 bánh răng A3 1 Ngày giao đề: Ngày hoàn thành:
Hà Nội, ngày tháng năm
GIẢNG VIÊN HƯỚNG DẪN Đề số: 8 lOMoAR cPSD| 40551442
Họ và tên sinh viên 1: .................................................... Lớp: ..................
Họ và tên sinh viên 2: .................................................... Lớp: ..................
Giảng viên hướng dẫn : ............................................................................................ NỘI DUNG
THIẾT KẾ HỆ DẪN ĐỘNG BĂNG TẢI
Loại hộp: Hộp giảm tốc đồng trục T mm = . . . . . .T 1 T 2 = . . . . . .T 1 t 1 = . . . . …s t 2 = . . . . . ..s t ck = . . . . …s 1. Động cơ 4. Bộ truyền đai 3. Hộp giảm tốc 5. Băng tải làm 2. Nối trục đàn hồi
(1 cấp thẳng – 1 cấp nghiêng) việc 1 chiều
Các số liệu cho trước: 1. Lực kéo băng tải: F = …………….. N 2. Vận tốc băng tải: v = …………….. m/s 3. Đường kính tang: D = …………….. mm 4. Thời hạn phục vụ: lh = …………….. giờ 5. Số ca làm việc: ……. ca
6. Góc nghiêng đường nối tâm bộ truyền ngoài: = ………… độ 7. Đặc tính làm việc: □ Êm □ Va đập nhẹ □ Va đập vừa
Yêu cầu thực hiện I. Phần thuyết minh:
Trình bầy đầy đủ các nội dung tính toán thiết kế, bao gồm: lOMoAR cPSD| 40551442
TRƯỜNG ĐẠI HỌC KINH TẾ - KỸ THUẬT CÔNG NGHIỆP KHOA CƠ KHÍ
ĐỒ ÁN I - CHI TIẾT MÁY -
CHƯƠNG 1: TÍNH TOÁN CHỌN ĐỘNG CƠ ĐIỆN, PHÂN PHỐI TỶ
SỐ TRUYỀN VÀ MÔ MEN XOẮN TRÊN CÁC TRỤC -
CHƯƠNG 2: TÍNH TOÁN BỘ TRUYỀN NGOÀI (bộ truyền đai hoặc xích) -
CHƯƠNG 3: TÍNH TOÁN THIẾT KẾ BỘ TRUYỀN BÁNH RĂNG -
CHƯƠNG 4: TÍNH TOÁN THIẾT KẾ TRỤC - CHƯƠNG 5: TÍNH TOÁN
CHỌN Ổ ĐỠ TRỤC, THEN, KHỚP NỐI, CÁC CHI
TIẾT KHÁC VÀ BÔI TRƠN HỘP GIẢM TỐC - CHƯƠNG 6: TÍNH
TOÁN THIẾT KẾ KẾT CẤU HỘP II. Phần bản vẽ: TT Tên bản vẽ
Khổ giấy Số lượng 1
Bản vẽ lắp 2D hộp giảm tốc A0 1 2
Bản vẽ chế tạo chi tiết: 1 trục hoặc 1 bánh răng A3 1 Ngày giao đề: Ngày hoàn thành:
Hà Nội, ngày tháng năm
GIẢNG VIÊN HƯỚNG DẪN lOMoAR cPSD| 40551442
TRƯỜNG ĐẠI HỌC KINH TẾ - KỸ THUẬT CÔNG NGHIỆP KHOA CƠ KHÍ
ĐỒ ÁN I - CHI TIẾT MÁY Đề số: 9
Họ và tên sinh viên 1: .................................................... Lớp: ..................
Họ và tên sinh viên 2: .................................................... Lớp: ..................
Giảng viên hướng dẫn : ............................................................................................ NỘI DUNG
THIẾT KẾ HỆ DẪN ĐỘNG BĂNG TẢI
Loại hộp: Hộp giảm tốc phân đôi cấp chậm T mm = . . . . . .T 1 T 2 = . . . . . .T 1 t 1 = . . . . …s t 2 = . . . . . ..s t ck = . . . . …s 1. Động cơ 4. Bộ truyền xích 3. Hộp giảm tốc 5. Băng tải làm 2. Nối trục đàn hồi
(1 cấp thẳng – 1 cấp nghiêng) việc 1 chiều
Các số liệu cho trước: 1. Lực kéo băng tải: F = …………….. N 2. Vận tốc băng tải: v = …………….. m/s 3. Đường kính tang: D = …………….. mm 4. Thời hạn phục vụ: lh = …………….. giờ 5. Số ca làm việc: ……. ca
6. Góc nghiêng đường nối tâm bộ truyền ngoài: = ………… độ 7. Đặc tính làm việc: □ Êm □ Va đập nhẹ □ Va đập vừa
Yêu cầu thực hiện I. Phần thuyết minh: lOMoAR cPSD| 40551442
TRƯỜNG ĐẠI HỌC KINH TẾ - KỸ THUẬT CÔNG NGHIỆP KHOA CƠ KHÍ
ĐỒ ÁN I - CHI TIẾT MÁY
Trình bầy đầy đủ các nội dung tính toán thiết kế, bao gồm: -
CHƯƠNG 1: TÍNH TOÁN CHỌN ĐỘNG CƠ ĐIỆN, PHÂN PHỐI TỶ
SỐ TRUYỀN VÀ MÔ MEN XOẮN TRÊN CÁC TRỤC -
CHƯƠNG 2: TÍNH TOÁN BỘ TRUYỀN NGOÀI (bộ truyền đai hoặc xích) -
CHƯƠNG 3: TÍNH TOÁN THIẾT KẾ BỘ TRUYỀN BÁNH RĂNG -
CHƯƠNG 4: TÍNH TOÁN THIẾT KẾ TRỤC - CHƯƠNG 5: TÍNH TOÁN
CHỌN Ổ ĐỠ TRỤC, THEN, KHỚP NỐI, CÁC CHI
TIẾT KHÁC VÀ BÔI TRƠN HỘP GIẢM TỐC - CHƯƠNG 6: TÍNH
TOÁN THIẾT KẾ KẾT CẤU HỘP II. Phần bản vẽ: TT Tên bản vẽ
Khổ giấy Số lượng 1
Bản vẽ lắp 2D hộp giảm tốc A0 1 2
Bản vẽ chế tạo chi tiết: 1 trục hoặc 1 bánh răng A3 1 Ngày giao đề: Ngày hoàn thành:
Hà Nội, ngày tháng năm
GIẢNG VIÊN HƯỚNG DẪN Đề số: 10
Họ và tên sinh viên 1: .................................................... Lớp: ..................
Họ và tên sinh viên 2: .................................................... Lớp: ..................
Giảng viên hướng dẫn : ............................................................................................ NỘI DUNG
THIẾT KẾ HỆ DẪN ĐỘNG BĂNG TẢI
Loại hộp: Hộp giảm tốc phân đôi cấp chậm lOMoAR cPSD| 40551442 T mm = . . . . . .T 1 T 2 = . . . . . .T 1 t 1 = . . . . …s t 2 = . . . . . ..s t ck = . . . . …s 1. Động cơ 4. Bộ truyền đai 3. Hộp giảm tốc
(1 cấp thẳng – 1 cấp nghiêng) 5. Băng tải làm 2. Nối trục đàn hồi việc 1 chiều
Các số liệu cho trước: 1. Lực kéo băng tải: F = …………….. N 2. Vận tốc băng tải: v = …………….. m/s 3. Đường kính tang: D = …………….. mm 4. Thời hạn phục vụ: lh = …………….. giờ 5. Số ca làm việc: ……. ca
6. Góc nghiêng đường nối tâm bộ truyền ngoài: = ………… độ 7. Đặc tính làm việc: □ Êm □ Va đập nhẹ □ Va đập vừa lOMoAR cPSD| 40551442
TRƯỜNG ĐẠI HỌC KINH TẾ - KỸ THUẬT CÔNG NGHIỆP KHOA CƠ KHÍ
ĐỒ ÁN I - CHI TIẾT MÁY -
CHƯƠNG 1: TÍNH TOÁN CHỌN ĐỘNG CƠ ĐIỆN, PHÂN PHỐI TỶ
SỐ TRUYỀN VÀ MÔ MEN XOẮN TRÊN CÁC TRỤC -
CHƯƠNG 2: TÍNH TOÁN BỘ TRUYỀN NGOÀI (bộ truyền đai hoặc xích) -
CHƯƠNG 3: TÍNH TOÁN THIẾT KẾ BỘ TRUYỀN BÁNH RĂNG -
CHƯƠNG 4: TÍNH TOÁN THIẾT KẾ TRỤC - CHƯƠNG 5: TÍNH TOÁN
CHỌN Ổ ĐỠ TRỤC, THEN, KHỚP NỐI, CÁC CHI
TIẾT KHÁC VÀ BÔI TRƠN HỘP GIẢM TỐC - CHƯƠNG 6: TÍNH
TOÁN THIẾT KẾ KẾT CẤU HỘP II. Phần bản vẽ: TT Tên bản vẽ
Khổ giấy Số lượng 1
Bản vẽ lắp 2D hộp giảm tốc A0 1 2
Bản vẽ chế tạo chi tiết: 1 trục hoặc 1 bánh răng A3 1 Ngày giao đề: Ngày hoàn thành:
Hà Nội, ngày tháng năm
GIẢNG VIÊN HƯỚNG DẪN Đề số: 11
Họ và tên sinh viên 1: .................................................... Lớp: ..................
Họ và tên sinh viên 2: .................................................... Lớp: ..................
Giảng viên hướng dẫn : ............................................................................................ NỘI DUNG
THIẾT KẾ HỆ DẪN ĐỘNG BĂNG TẢI
Loại hộp: Hộp giảm tốc phân đôi cấp nhanh lOMoAR cPSD| 40551442
Yêu cầu thực hiện
I. Phần thuyết minh:
Trình bầy đầy đủ các nội dung tính toán thiết kế, bao gồm: T mm = . . . . . .T 1 T 2 = . . . . . .T 1 t 1 = . . . . …s t 2 = . . . . . ..s t ck = . . . . …s 1. Động cơ 4. Bộ truyền xích 3. Hộp giảm tốc 2. Nối trục đàn hồi
(1 cấp thẳng – 1 cấp nghiêng) 5. Băng tải làm việc 1 chiều
Các số liệu cho trước: 1. Lực kéo băng tải: F = …………….. N 2. Vận tốc băng tải: v = …………….. m/s 3. Đường kính tang: D = …………….. mm 4. Thời hạn phục vụ: lh = …………….. giờ 5. Số ca làm việc: ……. ca
6. Góc nghiêng đường nối tâm bộ truyền ngoài: = ………… độ 7. Đặc tính làm việc: □ Êm □ Va đập nhẹ □ Va đập vừa -
CHƯƠNG 1: TÍNH TOÁN CHỌN ĐỘNG CƠ ĐIỆN, PHÂN PHỐI TỶ
SỐ TRUYỀN VÀ MÔ MEN XOẮN TRÊN CÁC TRỤC -
CHƯƠNG 2: TÍNH TOÁN BỘ TRUYỀN NGOÀI (bộ truyền đai hoặc xích) -
CHƯƠNG 3: TÍNH TOÁN THIẾT KẾ BỘ TRUYỀN BÁNH RĂNG -
CHƯƠNG 4: TÍNH TOÁN THIẾT KẾ TRỤC - CHƯƠNG 5: TÍNH TOÁN
CHỌN Ổ ĐỠ TRỤC, THEN, KHỚP NỐI, CÁC CHI
TIẾT KHÁC VÀ BÔI TRƠN HỘP GIẢM TỐC - CHƯƠNG 6: TÍNH
TOÁN THIẾT KẾ KẾT CẤU HỘP II. Phần bản vẽ: TT Tên bản vẽ
Khổ giấy Số lượng lOMoAR cPSD| 40551442
TRƯỜNG ĐẠI HỌC KINH TẾ - KỸ THUẬT CÔNG NGHIỆP KHOA CƠ KHÍ
ĐỒ ÁN I - CHI TIẾT MÁY 1
Bản vẽ lắp 2D hộp giảm tốc A0 1 2
Bản vẽ chế tạo chi tiết: 1 trục hoặc 1 bánh răng A3 1 Ngày giao đề: Ngày hoàn thành:
Hà Nội, ngày tháng năm
GIẢNG VIÊN HƯỚNG DẪN Đề số: 12
Họ và tên sinh viên 1: .................................................... Lớp: ..................
Họ và tên sinh viên 2: .................................................... Lớp: ..................
Giảng viên hướng dẫn : ............................................................................................ NỘI DUNG
THIẾT KẾ HỆ DẪN ĐỘNG BĂNG TẢI
Loại hộp: Hộp giảm tốc phân đôi cấp nhanh T mm = . . . . . .T 1 T 2 = . . . . . .T 1 t 1 = . . . . …s t 2 = . . . . . ..s t ck = . . . . …s 1. Động cơ 4. Bộ truyền đai 3. Hộp giảm tốc 5. Băng tải làm 2. Nối trục đàn hồi
(1 cấp thẳng – 1 cấp nghiêng) việc 1 chiều
Các số liệu cho trước: 1. Lực kéo băng tải: F = …………….. N 2. Vận tốc băng tải: v = …………….. m/s