















Preview text:
TRƯỜNG ĐẠI HỌC KIẾN TRÚC TP.HCM
KHOA XÂY DỰNG
BỘ MÔN THỰC NGHIỆM XÂY DỰNG BÁO CÁO
THÍ NGHIỆM SỨC BỀN VẬT LIỆU
SINH VIÊN THỰC HIỆN :Nguyễn Văn Trường Tín NHÓM
: Nhóm 4 LỚP :
GIẢNG VIÊN HƯỚNG DẪN: --- 2022 --- 1
MÔN HỌC: SỨC BỀN VẬT LIỆU
THỰC HÀNH: THÍ NGHIỆM KÉO – NÉN MẪU VẬT LIỆU
- Ngành đào tạo: Kỹ sư xây dựng
- Số tiết thí nghiệm: 10 tiết - Ngày thí nghiệm: - Ngày viết báo cáo:
A. MỤC ĐÍCH YÊU CẦU:
Sau bài học thí nghiệm các sinh viên đạt được các yêu cầu sau:
- Nâng cao sự hiểu biết về quá trình chịu lực của vật liệu từ khi bắt đầu gia tải đến khi vật liệu bị phá hoại
- Vẽ được biểu đồ quan hệ giữa ứng suất và biến dạng của vật liệu khi chịu lực
- Xác định được các chỉ tiêu cơ lý của vật liệu σ - σ - σ - E – μ – G dh ch b
- Hiểu được tính năng sử dụng của các thiết bị thí nghiệm: biết cách sử dụng thước kẹp
& đồng hồ đo chuyển vị
B. TỔ CHỨC THÍ NGHIỆM:
- Một nhóm thí nghiệm gồm 15 sinh viên, các sinh viên phải trực tiếp thực hành thí
nghiệm kéo – nén vật liệu.
- Số lượng thí nghiệm: 6 thí nghiệm
• 1 thí nghiệm kéo mẫu vật liệu dẻo.
• 1 thí nghiệm kéo mẫu vật liệu giòn.
• 1 thí nghiệm nén mẫu vật liệu giòn.
• 1 thí nghiệm kéo mẫu vật liệu gỗ.
• 1 thí nghiệm nén mẫu vật liệu gỗ.
• 1 thí nghiệm uốn mẫu vật liệu gỗ.
- Giảng viên hướng dẫn cho từng nhóm sinh viên các nội dung chính:
• Cách sử dụng và đọc các loại đồng hồ trong thí nghiệm.
• Các bước thí nghiệm với từng mẫu vật liệu.
• Cách ghi chép và xử lý số liệu thí nghiệm.
• Lập báo cáo kết quả thí nghiệm.
C. TRANG THIẾT BỊ THÍ NGHIỆM:
- Thiết bị gây tải: máy kéo nén vạn năng 100T.
- Đồng hồ đo chuyển vị khuếch đại cao tầng.
- Thước kẹp khuếch đại 10 lần.
D. KẾT QUẢ THÍ NGHIỆM: 2
Được trình bày theo nội dung của từng bài thí nghiệm 3 BÀI 1:
THÍ NGHIỆM KÉO THÉP (VẬT LIỆU DẺO)
1. Kích thước mẫu:
a. Trước khi thí nghiệm: - Mẫu hình trụ.
- Chiều dài l0 = 17,5cm= 175mm ; l =350 mm
- Đường kính d0 = 14mm.
b. Sau khi thí nghiệm:
- Chiều dài: l0 = 221,72 ; l= 396,72 mm
- Đường kính thường: 140mm
- Đường kính nơi thắt:11mm
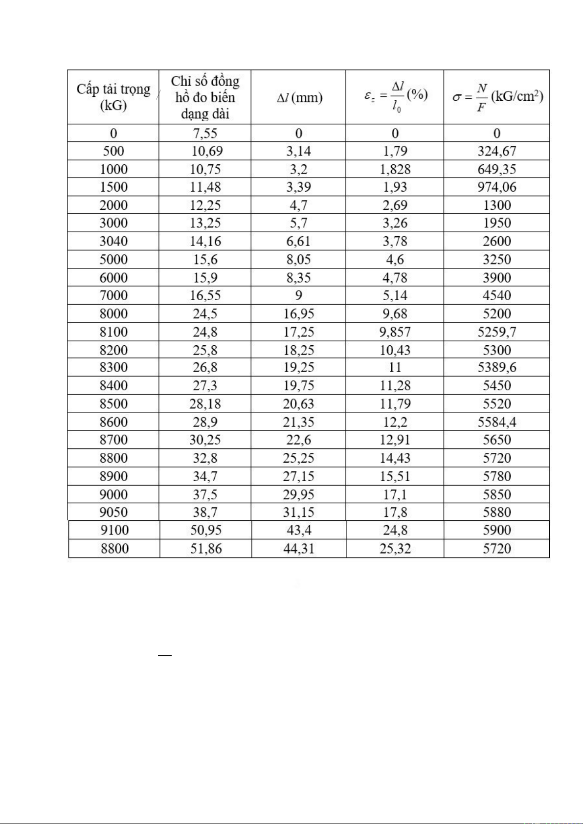
2. Các số liệu thí nghiệm: 4
3. Vẽ đồ thị quan hệ ứng suất σ z và biến dạng dài tương đối
4. Xác định các chỉ tiêu cơ lý vật liệu: Pdh
−Giớihạnđànhồi : σ= =4575,2 kG/cm2 F 0 Pch
−Giớihạn chảy : σ =
=5294,1 kG / cm 2 F 0 Pb
−Giớihạnbền : σ = =5947 kG / cm 2 F 0 5
5. Nhận xét quá trình thí nghiệm kéo mẫu thép:
- Sau khi kẹp mẫu ở tải trọng 0 kG bắt đầu tăng lực từng cấp. trong giai đoạn tải
trọng từ 0- 7000 kG ta thấy lực tăng và biến dạng cũng tăng theo, đồ thị có dạng
đường thẳng, giai đoạn này gọi là giai đoạn đàn hồi, giới hạn đàn hồi là 4575.2 (kG/cm2).
- sau đó tiếp tục gia tải nhưng đồng hồ tải trọng tăng không đáng kể trong khi
đồng hồ đo biến dạng tăng nhanh. Đồ thị có dạng đường cong gần như nằm
ngang, giai đoạn này gọi là giai đoạn chảy, tải trọng lớn nhất là 7700 kG. ứng với
giới hạn chảy 4873.417722 (kG/cm2).
- sau đó tiếp tục gia tải nhưng đồng hồ tải trọng tăng không đáng kể trong
khi dồng hồ đo biến dạng tăng nhanh đồ thị có đường cong gần như nằm
ngang, giai đoạn này gọi là giai đoạn chảy, tải trọng lớn nhất là 8100kG. ứng
với giới hạn chảy là 5294,1kg/cm2
- Tiếp tục gia tải đồng hồ đo tải trọng tăng và đồng hồ biến dạng cũng tăng , như
vậy vật liệu bắt đầu đối phó với lực, đồ thị có dạng đường cong. Gọi là giai đoạn
bền, lực lớn nhất là 9100 kG ứng với giới hạn bền 9547(kG/cm2) và tại vị trí này
mẫu bắt đầu xuất hiện eo thắt.
- Tiếp tục gia tải ta thấy đồng hồ đo biến dạng tăng nhưng đồng hồ tải trọng có
hiện tượng dao động và tách kim đến vị trí lực 5200 kG thì có tiếng nổ và mẫu bị
đứt tại vị trí eo thắt.
- Sau đó lấy mẫu ra kiểm tra thì ta thấy đường kính tại eo thắt chỉ còn 11mm, giảm
3 mm so với ban đầu. Như vậy thép là vật liệu dẻo các kết quả thu được phù hợp với lý thuyết.
- Kết luận: thép là vật liệu dẻo chịu kéo tốt BÀI 2:
THÍ NGHIỆM KÉO GANG (VẬT LIỆU DÒN)
1. Kích thước mẫu:
a. Trước khi thí nghiệm: - Mẫu hình trụ.
- Chiều dài l0 = 165mm
- Đường kính d0 = 20mm.
b. Sau khi thí nghiệm:
- Chiều dài: l0 = 171,82 mm - Đường kính:d0 = 20mm
2. Các số liệu thí nghiệm: 6 7
3. Vẽ đồ thị quan hệ ứng suất σ z và biến dạng dài tương đối ε z
4. Xác định các chỉ tiêu cơ lý vật liệu: Pb
−Giớihạnbền : σ = =2038,2 kG/ cm2 F 0
5. Nhận xét quá trình thí nghiệm kéo mẫu gang:
- Tiến hành thí nghiệm với mức tải trọng 500kg. Khi tải trọng tăng thì đồng hồ đo biến dạng cũng tăng
nhưng rất chậm. Tiếp tục tăng tải trọng tới mức 6400kg thì có tiếng nổ và thanh gang gãy đột ngột đồ 8
thị là đường cong liên tục không chia ra như thép, và cũng không có giới hạn chảy mà chỉ có giới hạn bền 2038kg/cm2
- Sau thí nghiệm lấy mẫu ra kiểm tra lại không xuất hiện eo thắt đường kính trên thanh gần như bảo
toàn. Biến dạng dài rất ít. Như vậy gang là vật liệu giòn, kết quả thí nghiệm phù hợp với lí thuyết. -Kết
luận: gang là vật liệu giòn chịu kéo kém 9 BÀI 3:
THÍ NGHIỆM NÉN GANG (VẬT LIỆU DÒN)
1. Kích thước mẫu:
a. Trước khi thí nghiệm: - Mẫu hình trụ.
- Chiều dài l0 = 22mm.
- Đường kính d0 = 14mm.
b. Sau khi thí nghiệm:
- Chiều dài: l0 = 25,4mm
- Đường kính: d0 = 14mm
2. Các số liệu thí nghiệm: Chỉ số Đường Cấp tải đồng l N hồ đo kính mẫu l (mm) ε = (%) σ = trọng (kG) biến dạng z l khi phá (kG/cm2) dài 0 hoại F 0 31,18 0 0 0 500 31,2 0,02 0,09 324,8 1000 31,23 0,05 0,227 649,6 2000 31,31 0,31 0,59 1299,2 3500 31,42 0,24 1,09 2273,6 4000 31,46 0,28 1,27 2598,4 4500 31,51 0,33 1,5 2923,2 5000 31,56 0,38 1,72 3248 5500 31,63 0,45 2,045 3572,9 6000 31,7 0,52 2,36 3897,7 6500 31,79 0,61 2,772 4222,5 7000 31,89 0,71 3,227 4547,3 7500 32,02 0,84 3,81 4872,1 8000 32,17 0,99 4,5 5196,9 8500 32,33 1,15 5,227 5521,7 9000 33,54 1,36 6,18 5846,5 9200 32,67 1,49 6,772 5976,4 9500 32,87 1,69 7,681 6171,3 9600 32,98 1,8 8,18 6235,3 9800 33,14 1,96 8,9 6366,2 9900 33,22 2,04 9,27 6431,2 10000 33,36 2,18 9,9 6496,1 10100 33,47 2,29 10.4 656,1 10200 33,59 2,41 10,954 6626 10300 33,75 2,57 11,681 6691 10400 33,96 2,78 12,63 6755,9 10450 34,18 3 13,62 6788,4 10500 34,58 3,4 15,45 6820,9 10
3. Vẽ đồ thị quan hệ ứng suất σ z và biến dạng dài tương đối ε z
4. Xác định các chỉ tiêu cơ lý vật liệu:
- Giới hạn bền: σ = b P b F - Mô đun đàn hồi: 0 E = tgα
- Hệ số nở hông: μ = ε y ε = ε x z ε z
- Mô đun đàn hồi trượt: G = E 2 1 μ 3
5. Nhận xét quá trình thí nghiệm nén mẫu gang:
-khi tiến hành nén gang gia tải tăng thì đồng hồ biến dạng tăng nhưng rất chậm lúc này đồ thị
có dạng bậc nhất - tiếp tục tăng tải đến khi vật liệu bị phá hủy phần bụng nở ra cà nứt xiên 11
góc gần 45 độ so với phương tác dụng ứng với Giới hạn bền: 6820,9 kg/cm2 Biểu đồ nén
gang cũng tương tự như biểu đồ nén gang cũng không có giai đoạn chảy dẻo. Biểu đồ là
đường cong dốc ngay từ khi lực còn nhỏ. Tuy nhiên vẫn có thể coi như một đường thẳng và
tuân theo định luật Hooke. -Kết Luận: gang là vật liệu chịu nén tốt hơn kéo 12 BÀI 4:
THÍ NGHIỆM KÉO GỖ DỌC THỚ
1. Mục đích:
Xác định cường độ chịu kéo giới hạn dọc thớ của mẫu gỗ ở độ ẩm tự nhiên.
2. Mẫu thí nghiệm:
- Gỗ có tiết diện 20 x 20, dài 350mm, b=20mm, h=4mm, L0=90mm.
- Được gia công đưa về mẫu chịu kéo theo TCVN 364 – 70.
- Độ ẩm mẫu gỗ: trong điều kiện tự nhiên. 20x20 b 20x20
3. Sơ đồ thí nghiệm: h N N
- Sơ đồ đặt tải kéo mẫu:
- Tốc độ gia tải: 2KG/s 30 30 100L0100
4. Số liệu và kết quả thí nghiệm: Kích thước mẫu (mm) Cường độ Số Diện Lực TT tích kéo Dài Rộng Cao chịu kéo mẫu chịu kéo giới hạn giới hạn F (cm2) Ngh (kG) Rk (kG/cm2) L0 b h 30 5,4 1,62 1250 772 1 30 5,4 1,62 850 525 2 30 5.,4 1,62 1050 636 3 R tb = 644 k
5. Nhận xét và kết luận:
- Sau khi kẹp mẫu vào bàn kéo ta tiến hành gia tải. Ta thấy thời gian gia tải cho mẫu bị
phá hoại là nhanh ,khi kéo gỗ biến dạng rất nhiều, xuất hiện 1 vết đứt ngang và khi đứt
nó mẫu bị tách ngang ra. Không có giảm yếu tiết diện như khi thí nghiệm kéo thép. -
Điều này chứng gỗ chịu kéo theo dọc thớ là không tốt.
- Qua 2 lần thì nghiệm ta thấy kết quả sai lệch nhiều cho thấy gỗ không đồng nhất. ⇨ Kết luận:
- Gỗ là vật liệu không đồng nhất, tính chịu lực không giống nhau theo phương và vị trí
bởi cấu trúc gỗ chỉ xếp theo phương dọc có tính xếp lớp. Từ thí nghiệm trên cho thấy
gỗ chịu kéo không bằng thép và gang. 13 BÀI 5:
THÍ NGHIỆM NÉN GỖ DỌC THỚ
1. Mục đích:
Xác định cường độ chịu nén giới hạn dọc thớ của mẫu gỗ ở độ ẩm tự nhiên.
2. Mẫu thí nghiệm:
- Gỗ dầu có tiết diện 20 x 20, dài 30.
- Được gia công đưa về mẫu chịu kéo theo TCVN 363 – 70.
- Độ ẩm mẫu gỗ: trong điều kiện tự nhiên. N
3. Sơ đồ thí nghiệm:
- Sơ đồ đặt tải kéo mẫu: h
- Tốc độ gia tải: 2KG/s N Kích thước mẫu (mm)
Diện tích chịu Lực nén Cường độ chịu Khối lượng Số Dài Rộng Cao TT mẫu nén giới hạn nén giới hạn (g) F (cm2)
Ngh (kG) Rn (kG/cm2) a b h 45 30 30 50 9 3987 443 1 37,029 30 30 50 9 3094 343,78 2 34,29 30 30 50 9 4290 476,67 3 Rtb=421,15 n
4. Số liệu và kết quả thí nghiệm:
5. Nhận xét và kết luận:
- Sau khi đặt mẫu vào bàn nén, tiến hành gia tải cho đến khi mẫu bị phá hoại và không có tiếng nổ
- Cường độ chịu nén của gỗ tương đối cao - Rtb=¿ n
421,15 (kG/cm2), khả năng chịu nén ngang với bê tông.
- Lực nén giới hạn trong 3 thí nghiệm với 3 mẫu gỗ khá chênh lệch chứng tỏ gỗ là vật
liệu không đồng nhất. Khả năng chịu nén thấp nhất là mẫu số 2 (343,78 kG/cm2). Khả
năng chịu nén cao nhất là mẫu số 3 (476,67 kG/cm2). -
Gỗ là vật liệu không đồng nhất và có khả năng chịu nén tốt..
⇨ Kết luận: Gỗ là vật liệu không đồng nhất và có khả năng chịu nén tốt.. 14 BÀI 6:
THÍ NGHIỆM UỐN PHẲNG MẪU GỖ
1. Mục đích:
Xác định cường độ chịu uốn giới hạn của mẫu gỗ ở độ ẩm tự nhiên.
2. Mẫu thí nghiệm:
- Gỗ dầu có tiết diện 20 x 20, dài 300mm, L0=240mm.
- Được gia công đưa về mẫu chịu kéo theo TCVN 365 – 70.
- Độ ẩm mẫu gỗ: trong điều kiện tự nhiên.
3. Sơ đồ thí nghiệm:
- Sơ đồ đặt tải uốn mẫu: Nn 20 h 20 L0/3 L0/3 L0/3 30 L 30 0
- Tốc độ gia tải: 1KG/s
- Gối tựa truyền tải: 4 con lăn kim loại hình trụ D = 20, L = 30
4. Số liệu và kết quả thí nghiệm: Kích thước mẫu Lực uốn Moment (mm) Moment Chỉ giới hạn uốn giới Cường Số số độ kháng lực kế Nu=Nn/2 hạn chịu uốn TT Dài Rộng Cao uốn mẫu N (kG) Mgh giới hạn n Wx (kG) (kGcm) Ru (kG/cm2) (cm3) L0 b h 240 30 30 4,5 588 294 3528 776 1 240 30 30 4,5 523 261,5 3138 697,3 2 240 30 30 4,5 582 291 3492 776 3
R tb = 752,43 u
- Nhận xét và kết luận:
Lúc mới gia tải thì gỗ chưa có hiện tượng gì, sau khi tăng tải dần lên thì thanh gỗ bắt
đầu biến dạng võng xuống và khi tải càng lớn thì gỗ bắt đầu rạn nứt, gỗ bị võng rất 15
nhiều, sau đó có tiếng tách và mẫu bị gãy làm đôi. Thí nghiệm uốn gỗ khác với thí
nghiệm uốn gạch là trước khi mẫu bị phá hoại sẽ có dự báo trước bằng độ võng của
mẫu, âm thanh phát ra từ mẫu, mẫu bị rạn nứt. Còn đối với thí nghiệm uốn gạch, khi ta
vừa đặt mẫu vào máy và gia tải thì mẫu bị gãy làm đôi ngay lập tức và không có dự báo trước.
Khả năng chịu uốn của gỗ rất đa dạng, tùy thuộc vào đặc điểm của từng loại gỗ mà
có khả năng chịu uốn khác nhau. Ta thấy, cường độ chịu uốn của 3 mẫu gỗ là rất khác
nhau. Mẫu gỗ thứ 1 và mẫu 3 có khả năng chịu uốn cao nhất lên đến 776(kG/cm2) và
thấp nhất đó chính là mẫu thứ 2 (697,3 kG/cm2).
⇨ Gỗ trong xây dựng thường được dùng để bố trí vào những nơi cần khả năng chịu uốn cao. 16