



















Preview text:
BỘ GIÁO DỤC VÀ ĐÀO TẠO CỘNG HÒA XÃ HỘI CHỦ NGHĨA VIỆT NAM
TRƢỜNG ĐẠI HỌC TÔN ĐỨC THẮNG
Độc lập – Tự do – Hạnh phúc
CHƢƠNG TRÌNH TRÌNH ĐỘ (ĐẠI HỌC)
KHOA: MỸ THUẬT CÔNG NGHIỆP
NỘI DUNG GIẢNG DẠY
1. Tên môn học: VẼ KỸ THUẬT Giảng viên biên soạn: Ngô Văn Đức, Trần Công Quốc 2. Mã môn học: 103041
3. Số tín chỉ: 2 TC (3.0)
4. Giờ lên lớp: 1 buổi/tuần (5 tiết).
5. Năm thứ: 1. (Học kỳ 1)
6. Phân bổ thời gian (tiết):
- Lên lớp: 30 tiết, gồm các giờ lý thuyết và vẽ bài tập tại lớp.
- Yêu cầu SV chuẩn bị các dụng cụ vẽ: Bảng vẽ A3 có gắn thƣớc T dây, bộ thƣớc Eke, thƣớc cong,
compa, bút chì min 0.3,0.5,0.7, gôm, giấy vẽ khổ A3, A1.
Ghi chú: Yêu cầu về họa cụ đƣợc thông tin trên môn học để SV có sự chuẩn bị trƣớc.
7. Mục tiêu của học phần:
Kiến thức: Cung cấp các khái niệm cơ bản cũng nhƣ cách thức trình bày, đọc hiểu một bản vẽ kỹ thuật.
Kỹ năng: Nắm đƣợc qui cách của một bản vẽ kỹ thuật, biết cách vẽ (bằng tay) và biểu di n vật thể
với các hình chiếu của nó, hiểu và vẽ đƣợc các bản vẽ kỹ thuật về l nh vực chuyên ngành .
Thái độ, chuyên cần: Đi học đầy đủ và đúng giờ, t ch cực học tập lớp và nhà, nâng cao t nh chủ
động học tập phù hợp với yêu cầu của đào tạo theo t n chỉ.
8. Mô tả vắn tắt nội dung học phần:
Môn học cung cấp cho sinh viên cách thể hiện một bản vẽ kỹ thuật thông qua các kiến thức về: tỉ lệ,
k ch thƣớc, các hình chiếu, hình cắt, mặt cắt,v,v,…
9. Yêu cầu và kỳ vọng của môn học:
Về mặt nội dung : Nắm vững nguyên tắc Vẽ kỹ thuật. Đủ cơ s khoa học để lập bản vẽ kỹ thuật
phục vụ l nh vực thiết kế sản phẩm liên quan.
Tăng cƣờng kỹ năng đọc, hiểu và tƣ duy về diện, hình khối đối tƣợng thiết kế trong không gian.
Về mặt kỹ năng thể hiện: Yêu cầu kỹ năng vẽ tay, xử lý di n giải trình tự thực hiện bản vẽ kỹ thuật chuyên ngành.
10. Đánh giá môn học: Thời Tóm tắt biện Trọng Thành phần Thời điểm lƣợng pháp đánh giá số
Kiểm tra trên lớp: Vẽ hình chiếu 60 phút Vẽ 20% Buổi 4,6
Tập A3 (BT nhà, BT trên lớp) 4 buổi Vẽ 20% Buổi 6 + 1 tuần
Bài thi cuối kỳ: Vẽ hình chiếu trên Lịch thi cuối kỳ 90 phút giấy A3. Vẽ 60% của trƣờng Tổng 100% 1
BUỔI 1- GIỚI THIỆU MÔN HỌC :
Giới thiệu môn học bằng hình ảnh cụ thể:
Đƣa ra một hình ảnh sản phẩm cụ thể và song song với nó là bản vẽ kỹ thuật thể hiện thiết kế đó
nhằm giúp sinh viên hình dung đƣợc môn học.
Di n giải các thông tin mà bản vẽ kỹ thuật thể hiện: khung bo, khung tên, tỉ lệ, k ch thƣớc, thông
tin về ký hiệu, ghi chú,vv,…. Giới thiệu sơ bộ các nguyên tắc chung đối với một bản vẽ kỹ thuật tùy
theo loại hình thiết kế: sản phẩm đồ họa, tạo dáng (bao bì, đồ gỗ, kim loại,…), công trình nội thất,
kiến trúc (nhà , cửa hàng, trƣờng học,…)
1. Giới thiệu về họa cụ & cách sử dụng:
GV chuẩn bị sẵn họa cụ và giới thiệu cho SV thông tin cùng ứng dụng của nó khi thể hiện bản vẽ kỹ thuật.
3.Các tiêu chuẩn cơ bản trong bản vẽ kỹ thuật:
I/ KHỔ GIẤY,KHUNG BẢN VẼ, KHUNG TÊN:
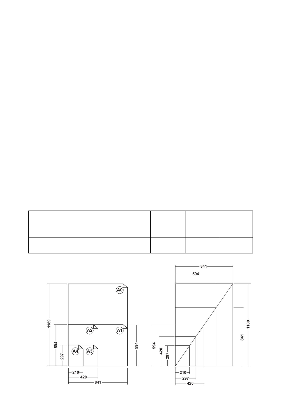
Khổ giấy: Có 5 khổ giấy ch nh, ký hiệu và k ch thƣớc nhƣ sau:
- Mỗi khổ giấy ch nh trên nhận đƣợc bằng cách chia đôi khổ lớn hơn kề với nó bằng cách rọc đôi, song song cạnh ngắn.
- Các khổ giấy đều đồng dạng nhau.
Ngoài ra còn những hệ thống giấy khác B,C để phù hợp với nhu cầu chuyên môn.
Việc sắp xếp các khổ giấy nhằm mục đ ch phục vụ nhu cầu sử dụng và d dàng trong lƣu trữ, bảo quản.
LƯU Ý: Từ khổ A3 đến A0 phải vẽ bố cục ngang.
Ký hiệu khổ giấy 44 24 22 12 11
Kích thước các cạnh 1189 X 841 594 X 841 594 X 420 297 X 420 297 X 210
của khổ giấy (mm)
Ký hiệu tờ giấy A0 A1 A2 A3 A4 tương ứng 2
Khung bản vẽ: Mỗi bản vẽ đều phải có khung, đó là hình chữ nhật vẽ bằng nét liền đậm cách mép
giấy 5mm (đối với khổ giấy A4, A3) và 10mm (với khổ giấy A2, A1, A0). Nếu phải đóng tập thì
ph a trái, khung bản vẽ cách mép giấy 20-25mm hoặc 30mm.
Mục đ ch: Tạo sự ngăn nắp và bảo vệ nội dung bản vẽ bên trong.
Khung tên: Mỗi bản vẽ phải có khung tên, đó là một hình chữ nhật vẽ bằng nét liền đậm và luôn
luôn góc ph a dƣới, bên phải sát với khung bản vẽ. Dƣới đây là một kiểu khung tên dùng trong nhà trƣờng. Tên bản vẽ
Ghi trị số tỉ lệ bản vẽ Ngày vẽ xong.
Chữ ký ngƣời kiểm tra.
Tên trƣờng, lớp và tên ngƣời vẽ. Số thứ tự bản vẽ.
Sinh viên cần tham khảo thêm khung tên bản vẽ kỹ thuật của các công ty thiết kế. 3
Đƣa ra một hình ảnh bản vẽ cụ thể và phân t ch các thông tin trên từng khung tên, đối chiếu so sánh
với khung tên trong trƣờng học nhằm giúp sinh viên hình dung về các mối liên hệ trong một hồ sơ
thiết kế. Nhắc lại: yếu tố đóng tập bản vẽ nên cần nới rộng khoảng cách mép giấy bên trái.
So sánh các k ch thƣớc đƣờng nét trong khung bản vẽ A2, A3 hay A4, A0 bằng cách giới thiệu
khung tên của một số công ty nhằm giúp sinh viên hiểu không có sự khác nhau nhiều về k ch cỡ hay
chữ số ghi chú, đề mục, khung tên. Một khung bản vẽ lớn hơn chỉ nhằm truyền tải nhiều nội dung hơn. 4 II/ TỈ LỆ:
Tỉ lệ của hình biểu di n là tỉ số giữa k ch thƣớc đo trên hình biểu di n và k ch thƣớc đo trên thực tế.
Tùy theo độ lớn và mức độ phức tạp của vật thể mà ngƣời ta chọn tỉ lệ nguyên hình (1:1), tỉ lệ thu nhỏ hay phóng to.
Những tỉ lệ ghi trong dấu ngoặc ( ) nên hạn chế dùng.
Thƣờng dùng các tỉ lệ sau: •
Mặt bằng quy hoạch khu vực lớn, dùng tỉ lệ: 1/1000, 1/5000 •
Mặt bằng quy hoạch khu vự nhỏ, dùng tỉ lệ: 1/2000, 1/1000, 1/500 •
Mặt bằng, mặt đứng công trình, dùng tỉ lệ: 1/200, 1/100, 1/50. •
Mặt cắt công trình, dùng tỉ lệ: 1/100, 1/50, 1/20 •
Các chi tiết, vật dụng, dùng tỉ lệ: 1/20, 1/10, 1/5, 1/2, 1/1
Tỉ lệ được ghi ngay cạnh tên của hình vẽ hoặc trong khung tên. III/ VẼ NÉT:
Phân biệt độ dày, đậm nhạt của các nét vẽ, ký hiệu nét vẽ theo quy định, cách kẻ và tô đậm theo thứ tự.
1. Các đƣờng trục, đƣờng tâm.
2. Các đƣờng bao quanh thấy lần lƣợt:
- Các đƣờng tròn, cung tròn, cung lƣợn.
- Các đƣờng bằng từ trên xuống dƣới.
- Các đƣờng thẳng đứng từ trái sang phải (dùng ê-ke kiểm tra lại thƣờng xuyên). - Các đƣờng xiên.
3. Các đƣờng bao quanh khuất (theo thứ tự nhƣ trên)
4. Các đƣờng gióng và đƣờng ghi k ch thƣớc, con số k ch thƣớc.
5. Các đƣờng gạch trên hình cắt và mặt cắt.
6. Khung bản vẽ và khung tên.
7. Tẩy xoá những nét thừa. 5
Diễn giải khái niệm bằng hình ảnh cụ thể:
Đưa ra một bản vẽ thiết kế cụ thể và phân tích các nét thấy, nét kích thước, đường bao khuất,
v v….Diễn giải các thông tin mà từng nét vẽ cung cấp trên bản vẽ kỹ thuật thể hiện ( thông tin
về kích thước, thông tin về ghi chú…)
3.Bài tập trên lớp: Không có
4.Bài tập về nhà: Chuẩn bị họa cụ theo yêu cầu, kẻ khung bo, khung tên, tập vẽ nét trên giấy A3. 6
BUỔI 2- CHỮ VÀ SỐ
GIỚI THIỆU KIỂU CHỮ BATON
Chữ nằm trong hệ lƣới ô vuông – khổ chữ nằm trong hình vuông ngoại tiếp.
Dùng để ghi chú vào thành phần kỹ thuật. Cao từ 2.5 – 3.5mm
Dùng để ghi tiêu đề.VD: MẶT BẰNG, MẶT ĐỨNG, MẶT CẮT. Cao độ từ 5.0 – 8.0mm
Dùng để ghi tựa đề bản vẽ. Cao từ 8-12mm
Kiểu chữ này phổ biến trong bản vẽ, không cần tô đậm hoặc đồ nét.
Giới thiệu chữ dạng gầy, nét đậm.
Có đặc điểm là chữ đứng, đều nét. Bề rộng chữ và số nói chung bằng 3/10 chiều cao chữ,
thƣờng dùng để ghi các tựa đề lớn. 7 4mm 8
1. BT trên lớp :
Kẻ chữ BATON và chữ GOTHIC
Kẻ KHUNG TÊN
2. Bài tập về nhà :
Kẻ khung tên trên bản vẽ A3, hoàn thiện bài kẻ chữ BATON và GOTHIC. 9
NHỮNG TIÊU CHUẨN CƠ BẢN TRÌNH BÀY BẢN VẼ KỸ THUẬT V/ GHI KÍCH THƢỚC
K ch thƣớc trên các hình vẽ cho biết độ lớn của các vật thể đƣợc biểu di n.Việc ghi chú k ch
thƣớc cần phải theo các quy định chung.
Muốn ghi k ch thƣớc, cần vẽ các thành phần:
Đƣờng gióng k ch thƣớc: Dùng để giới hạn phần tử k ch thƣớc, đƣợc vẽ bằng nét liền mảnh và
quá đƣờng k ch thƣớc một đoạn bằng 3mm, có hƣớng vuông góc với đƣờng bao càn k ch thƣớc.
Cho phép việc dùng các đƣờng trục, đƣờng tâm, đƣờng bao làm đƣờng gióng.
Đƣờng kích thƣớc: Vị trí song song với đƣờng bao càn kích thƣớc, đƣợc giới hạn bằng 1 trong 3 cách sau:
Dùng mũi tên: Mũi tên nhọn, thuôn, đầu mũi tên chạm vào đƣờng gióng.
Dùng gạch chéo: Gạch chéo nghiêng 45 độ so với đƣờng gióng, dài 3mm.
Dùng chấm tròn: Dùng dấu chấm tròn từ 0.5mm-0.8mm.
Cách ghi kích thƣớc:
Chọn cách giới hạn nào phải thống nhất trên toàn bộ bản vẽ.Trƣờng hợp đƣờng k ch thƣớc
nhô ra khỏi đƣờng gióng, đoạn nhô ra có độ dài từ 3 -5mm
Con số k ch thƣớc: Các con số nằm trên đƣờng k ch thƣớc, song song với đƣờng k ch thƣớc,
cách đƣờng k ch thƣớc 1mm và chữ số cao từ 2,5mm- 3,5mm.
Nếu các phần tử đƣợc ghi k ch thƣớc cạnh nhau bé đến nỗi không thể ghi các con số cùng nằm trên
đƣờng gióng thì cho phép ghi con số xen kẽ nhau lần lƣợt nằm trên và dƣới đƣờng k ch thƣớc. 10 11 12 13 LƯU Ý:
Hƣớng các con số k ch thƣớc đƣợc quy định luôn luôn là từ trái qua phải, từ dƣới lên trên.
Các k ch thƣớc nên ghi bên ngoài hình biểu di n và mỗi k ch thƣớc chỉ ghi 1 lần trên cùng một hình vẽ.
Bản vẽ Kỹ thuật thƣờng dùng đơn vị là mm và không ghi đơn vị sau con số k ch thƣớc.
Đối với độ cao so với mặt phẳng chuẩn của công trình (cao trình), thƣờng dùng đơn vị là mét
với ba số lẻ. (xem phần vẽ nhà).
Ngoài ra, cần lƣu ý đến các k ch thƣớc riêng dành cho các hình vẽ đƣờng tròn, cung tròn, độ dốc,… 14
VI/ KÝ HIỆU VẬT LIỆU:
Đƣợc dùng trên các hình vẽ cắt và có khi trên cả mặt đứng công trình. Dùng để chỉ rõ vật liệu sử
dụng (xem bảng ký hiệu) 15
BUỔI 3: VẼ HÌNH HỌC
I/ Một số bài toán vẽ hình học đơn giản.
1. Chia đƣờng tròn thành nhiều phần bằng nhau:
a/ Chia làm 4 phần bằng nhau:
Sử dụng 2 êke có góc 45 độ
b/ Chia làm 3 phần bằng nhau: 02 phƣơng pháp.
Phƣơng pháp 1: Sử dụng 2 êke có góc nhọn 30 độ.
Phƣơng pháp 2: Sử dụng compa
c/ Chia làm 5 phần bằng nhau: Sử dụng compa
d/ Chia làm 5,7,9,…phần bằng nhau: Sử dụng compa 16
2.Vẽ nối tiếp hai đƣờng
Theo một quy luật hình học nhất định,sao cho tại vị tr chuyển tiếp không có sự gãy khúc.
a/ Nối tiếp một điểm với một đƣờng tròn bằng một đoạn thẳng ( tức vẽ tiếp tuyến với đƣờng tròn qua một điểm cho trƣớc).
b/ Nối tiếp hai đƣờng tròn bằng một đoạn thẳng (tức vẽ tiếp tuyến chung của hai đƣờng tròn) -Nối tiếp ngoài. -Nối tiếp trong 17 Định nghĩa hình Elip:
Elip là tập hợp của những điểm thuộc mặt phẳng, có tổng khoảng cách tới hai điểm cố định F1 và F2
của mặt phẳng đó bằng hằng số lớn hơn khoảng cách giữa 2 điểm đó MF1+MF2=2a
F1, F2 gọi là các tiêu điểm,
Khoảng cách F1,F2=2C (a>c)
Đoạn AB=2a gọi là trục dài của Elip, đoạn CD gọi là trục ngắn của Elip 18
Vẽ đƣờng xoắn ốc. 19
BUỔI 3: BIỂU DIẼN VẬT THỂ TRÊN BẢN VẼ KỸ THUẬT
I/ PHƢƠNG PHÁP HÌNH CHIẾU THẲNG GÓC.
Đây là phƣơng pháp phổ biến nhất trong các bản vẽ thiết kế kỹ thuật
1-Các hình chiếu cơ bản của một vật thể:
Thep phƣơng pháp này,vật thể đƣợc đặt giữa mắt ngƣời quan sát (tâm chiếu) và mặt phẳng hình chiếu tƣơng ứng.
Hình chiếu của một vật thể là hình chiếu của tất cả các điểm thuộc vật thể ấy lên mặt phẳng hình
chiếu tƣơng ứng.Đối với các bản vẽ kiến trúc xây dựng chỉ thể hiện những yếu tố thuộc phần nó,khi
cần thiết mới vẽ thêm phần khuất.
Một vật thể trong không gian đƣợc giả định đặt trong một hình hộp. Khi chiếu vật thể lên các
mặt phẳng hình hộp, ta đƣợc 6 hình chiếu cơ bản của vật thể ấy và có tên gọi tƣơng ứng nhƣ sau:
- Hình chiếu đứng (trên P1), còn gọi là hình chiếu từ trƣớc hay mặt đứng.
- Hình chiếu bằng (trên P2), còn gọi là hình chiếu từ trên hay mặt bằng.
- Hình chiếu từ trái (trên P3), còn gọi là hình chiếu cạnh hay mặt bên trái.
- Hình chiếu từ bên phải (trên P4), còn gọi là hình chiếu cạnh hay mặt bên phải.
- Hình chiếu từ dƣới (trên P5), còn gọi là mặt phẳng chiếu ngƣợc
- Hình chiếu từ sau (trên P6), còn gọi là mặt sau. 20